Your email has been sent.
Highlights
- This property is on the corner of 8th Ave and W 35th.
All Available Spaces(6)
Display Rental Rate as
- Space
- Size
- Term
- Rental Rate
- Space Use
- Condition
- Available
Corner unit has wood floors, exposed ceilings and LED lights
- Listed lease rate plus proportional share of electrical cost
- Mostly Open Floor Plan Layout
- Fully Built-Out as Standard Office
- Space is in Excellent Condition
This corner units has wood floors, exposed ceilings and LED lights and is built with 1 office.
- Listed lease rate plus proportional share of electrical cost
- Mostly Open Floor Plan Layout
- Fully Built-Out as Standard Office
- Space is in Excellent Condition
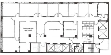
Approximately 10 offices, 2 conf rooms, open area and a pantry. Great for law firms, accounting firms or any office tenant
- Listed lease rate plus proportional share of electrical cost
- 10 Private Offices
- Space is in Excellent Condition
- Fully Built-Out as Standard Office
- 2 Conference Rooms
Entire 10th Floor: 5,875 RSF, direct from Landlord is divisible with units ranging in size from 1,185 RSF to 5,875RSF. This space is virtually column free and newly white boxed with concrete floors, exposed ceilings, LED lights and new bathrooms. Landlord will build a new installation including glass fronted offices, conference rooms and a pantry. The asking rent for the corner is $37 PSF the balance is $35psf.
- Listed lease rate plus proportional share of electrical cost
- Mostly Open Floor Plan Layout
- Central Air Conditioning
- Fully Built-Out as Standard Office
- Can be combined with additional space(s) for up to 11,750 SF of adjacent space
Entire 11th Floor: 5,875 RSF, direct from Landlord. This space is virtually column free and built showroom with exposed ceilings and great light and views. Landlord will modify with new LED lights, glass fronted offices, conference rooms and a pantry. Each floor can be locked off by the tenant, has their own tenant-controlled AC unit and direct meter for electric. The asking rent is $34 PSF.
- Fully Built-Out as Standard Office
- Can be combined with additional space(s) for up to 11,750 SF of adjacent space
- Mostly Open Floor Plan Layout
- Natural Light
This space is prebuilt with 1 glass corner conference room and 2 glass offices. The floor is virtually column free with concrete floors, exposed ceilings, LED lights, partially furnished and new bathrooms. Landlord can modify buildout. Each floor can be locked off by the tenant, has their own tenant-controlled AC unit and direct meter for electric. The asking rent is $39 PSF
- Fully Built-Out as Standard Office
- Central Air Conditioning
- Open Floor Plan Layout
| Space | Size | Term | Rental Rate | Space Use | Condition | Available |
| 5th Floor, Ste 500 | 1,143 SF | Negotiable | $50.58 CAD/SF/YR $4.22 CAD/SF/MO $57,814 CAD/YR $4,818 CAD/MO | Office | Full Build-Out | Now |
| 5th Floor, Ste 501 | 1,991 SF | Negotiable | $50.58 CAD/SF/YR $4.22 CAD/SF/MO $100,706 CAD/YR $8,392 CAD/MO | Office | Full Build-Out | Now |
| 7th Floor | 5,875 SF | Negotiable | $50.58 CAD/SF/YR $4.22 CAD/SF/MO $297,163 CAD/YR $24,764 CAD/MO | Office | Full Build-Out | Now |
| 10th Floor, Ste E10 | 1,185-5,875 SF | Negotiable | $43.75 CAD/SF/YR $3.65 CAD/SF/MO $257,005 CAD/YR $21,417 CAD/MO | Office | Full Build-Out | Now |
| 11th Floor, Ste Full Floor | 5,875 SF | Negotiable | $46.48 CAD/SF/YR $3.87 CAD/SF/MO $273,068 CAD/YR $22,756 CAD/MO | Office | Full Build-Out | Now |
| 19th Floor | 5,000 SF | Negotiable | $53.31 CAD/SF/YR $4.44 CAD/SF/MO $266,575 CAD/YR $22,215 CAD/MO | Office | Full Build-Out | Now |
5th Floor, Ste 500
| Size |
| 1,143 SF |
| Term |
| Negotiable |
| Rental Rate |
| $50.58 CAD/SF/YR $4.22 CAD/SF/MO $57,814 CAD/YR $4,818 CAD/MO |
| Space Use |
| Office |
| Condition |
| Full Build-Out |
| Available |
| Now |
5th Floor, Ste 501
| Size |
| 1,991 SF |
| Term |
| Negotiable |
| Rental Rate |
| $50.58 CAD/SF/YR $4.22 CAD/SF/MO $100,706 CAD/YR $8,392 CAD/MO |
| Space Use |
| Office |
| Condition |
| Full Build-Out |
| Available |
| Now |
7th Floor
| Size |
| 5,875 SF |
| Term |
| Negotiable |
| Rental Rate |
| $50.58 CAD/SF/YR $4.22 CAD/SF/MO $297,163 CAD/YR $24,764 CAD/MO |
| Space Use |
| Office |
| Condition |
| Full Build-Out |
| Available |
| Now |
10th Floor, Ste E10
| Size |
| 1,185-5,875 SF |
| Term |
| Negotiable |
| Rental Rate |
| $43.75 CAD/SF/YR $3.65 CAD/SF/MO $257,005 CAD/YR $21,417 CAD/MO |
| Space Use |
| Office |
| Condition |
| Full Build-Out |
| Available |
| Now |
11th Floor, Ste Full Floor
| Size |
| 5,875 SF |
| Term |
| Negotiable |
| Rental Rate |
| $46.48 CAD/SF/YR $3.87 CAD/SF/MO $273,068 CAD/YR $22,756 CAD/MO |
| Space Use |
| Office |
| Condition |
| Full Build-Out |
| Available |
| Now |
19th Floor
| Size |
| 5,000 SF |
| Term |
| Negotiable |
| Rental Rate |
| $53.31 CAD/SF/YR $4.44 CAD/SF/MO $266,575 CAD/YR $22,215 CAD/MO |
| Space Use |
| Office |
| Condition |
| Full Build-Out |
| Available |
| Now |
5th Floor, Ste 500
| Size | 1,143 SF |
| Term | Negotiable |
| Rental Rate | $50.58 CAD/SF/YR |
| Space Use | Office |
| Condition | Full Build-Out |
| Available | Now |
Corner unit has wood floors, exposed ceilings and LED lights
- Listed lease rate plus proportional share of electrical cost
- Fully Built-Out as Standard Office
- Mostly Open Floor Plan Layout
- Space is in Excellent Condition
5th Floor, Ste 501
| Size | 1,991 SF |
| Term | Negotiable |
| Rental Rate | $50.58 CAD/SF/YR |
| Space Use | Office |
| Condition | Full Build-Out |
| Available | Now |
This corner units has wood floors, exposed ceilings and LED lights and is built with 1 office.
- Listed lease rate plus proportional share of electrical cost
- Fully Built-Out as Standard Office
- Mostly Open Floor Plan Layout
- Space is in Excellent Condition
7th Floor
| Size | 5,875 SF |
| Term | Negotiable |
| Rental Rate | $50.58 CAD/SF/YR |
| Space Use | Office |
| Condition | Full Build-Out |
| Available | Now |
Approximately 10 offices, 2 conf rooms, open area and a pantry. Great for law firms, accounting firms or any office tenant
- Listed lease rate plus proportional share of electrical cost
- Fully Built-Out as Standard Office
- 10 Private Offices
- 2 Conference Rooms
- Space is in Excellent Condition
10th Floor, Ste E10
| Size | 1,185-5,875 SF |
| Term | Negotiable |
| Rental Rate | $43.75 CAD/SF/YR |
| Space Use | Office |
| Condition | Full Build-Out |
| Available | Now |
Entire 10th Floor: 5,875 RSF, direct from Landlord is divisible with units ranging in size from 1,185 RSF to 5,875RSF. This space is virtually column free and newly white boxed with concrete floors, exposed ceilings, LED lights and new bathrooms. Landlord will build a new installation including glass fronted offices, conference rooms and a pantry. The asking rent for the corner is $37 PSF the balance is $35psf.
- Listed lease rate plus proportional share of electrical cost
- Fully Built-Out as Standard Office
- Mostly Open Floor Plan Layout
- Can be combined with additional space(s) for up to 11,750 SF of adjacent space
- Central Air Conditioning
11th Floor, Ste Full Floor
| Size | 5,875 SF |
| Term | Negotiable |
| Rental Rate | $46.48 CAD/SF/YR |
| Space Use | Office |
| Condition | Full Build-Out |
| Available | Now |
Entire 11th Floor: 5,875 RSF, direct from Landlord. This space is virtually column free and built showroom with exposed ceilings and great light and views. Landlord will modify with new LED lights, glass fronted offices, conference rooms and a pantry. Each floor can be locked off by the tenant, has their own tenant-controlled AC unit and direct meter for electric. The asking rent is $34 PSF.
- Fully Built-Out as Standard Office
- Mostly Open Floor Plan Layout
- Can be combined with additional space(s) for up to 11,750 SF of adjacent space
- Natural Light
19th Floor
| Size | 5,000 SF |
| Term | Negotiable |
| Rental Rate | $53.31 CAD/SF/YR |
| Space Use | Office |
| Condition | Full Build-Out |
| Available | Now |
This space is prebuilt with 1 glass corner conference room and 2 glass offices. The floor is virtually column free with concrete floors, exposed ceilings, LED lights, partially furnished and new bathrooms. Landlord can modify buildout. Each floor can be locked off by the tenant, has their own tenant-controlled AC unit and direct meter for electric. The asking rent is $39 PSF
- Fully Built-Out as Standard Office
- Open Floor Plan Layout
- Central Air Conditioning
Property Overview
This property was constructed in 1928 and then renovated in 2000.
- 24 Hour Access
- Concierge
- Property Manager on Site
- Security System
- Storage Space
- Air Conditioning
- Fiber Optic Internet
Property Facts
Presented by
494 Eighth Ave
Hmm, there seems to have been an error sending your message. Please try again.
Thanks! Your message was sent.















