Your email has been sent.
4985-4995 W Rochelle Rd - Mustang Crossing 1.08 - 3.12 Acre Commercial Land Lots Offered at $1,705,300 - $4,229,144 CAD Per Lot in Irving, TX 75062



Investment Highlights
- Land Location - 2 minutes from the Airport!
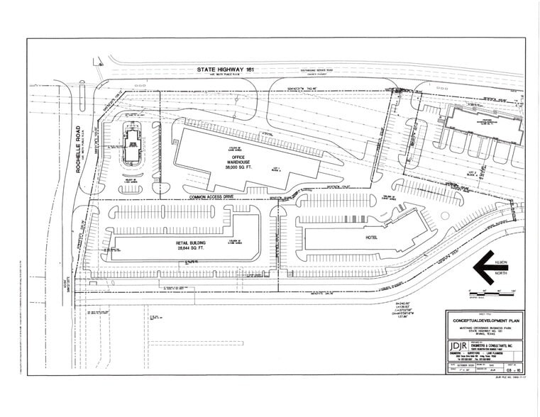
Executive Summary
Property Facts
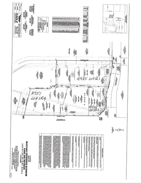
3 Lots Available
Lot 4995
| Price | $1,705,300 CAD | Lot Size | 1.08 AC |
| Price Per AC | $1,578,981.54 CAD |
| Price | $1,705,300 CAD |
| Price Per AC | $1,578,981.54 CAD |
| Lot Size | 1.08 AC |
Lots can be purchased together or separately Lots can be purchased together or separately ZONING - PD - S-P-2 IN THE C - C DISTRICT allows a large variety of buildings such as Gas Station with Mini-Mart, Restaurant, Retail Strip Center, Warehouse.
Lot 4985
| Price | $4,229,144 CAD | Lot Size | 3.12 AC |
| Price Per AC | $1,355,494.92 CAD |
| Price | $4,229,144 CAD |
| Price Per AC | $1,355,494.92 CAD |
| Lot Size | 3.12 AC |
Lots can be purchased together or separately Lots can be purchased together or separately ZONING -PD-S-P-2 IN THE C - C DISTRICT allows a large variety of buildings such as Warehouses, Gas Station with Mini-Mart, Hotels with Mod, Retail Strip Center.
Lot 2751
| Price | $1,718,942 CAD | Lot Size | 2.26 AC |
| Price Per AC | $760,594.01 CAD |
| Price | $1,718,942 CAD |
| Price Per AC | $760,594.01 CAD |
| Lot Size | 2.26 AC |
Lots can be purchased together or separately Lots can be purchased together or separately ZONING-PD-S-P-2 IN THE C - C DISTRICT allows a large variety of buildings such as Warehouses, Gas Station with Mini-Mart, Hotels with Mod, Retail Strip Center.
Presented by
4985-4995 W Rochelle Rd - Mustang Crossing
Hmm, there seems to have been an error sending your message. Please try again.
Thanks! Your message was sent.
