Your email has been sent.
Park Highlights
- 24-hour access
- Easily accessible from major Routes
- Property manager on-site
- Column-free clear span space
Park Facts
Features and Amenities
- 24 Hour Access
- Property Manager on Site
- Signage
All Available Space(1)
Display Rental Rate as
- Space
- Size
- Term
- Rental Rate
- Space Use
- Build-Out
- Available
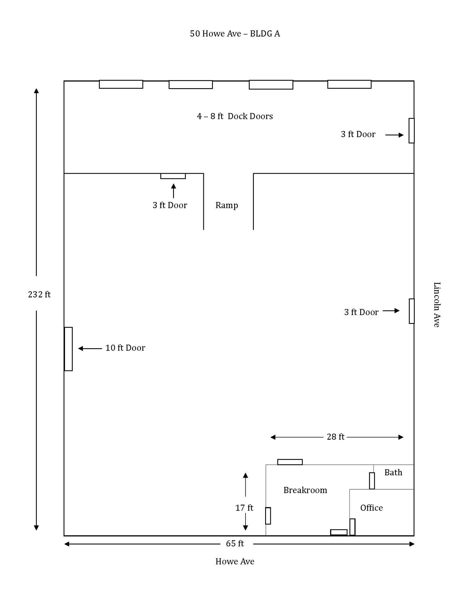
30,870 SF - column-free space with 16' clear ceiling height. 3 internal loading docks, 1 drive-in door. Outdoor yard area available as well.
- Lease rate does not include utilities, property expenses or building services
- Space is in Excellent Condition
- Secure Storage
- Natural Light
- Column Free Space
- Yard space available
- 1 Drive Bay
- 3 Loading Docks
- Plug & Play
- Yard
- On-site ownership and management
- Convenient highway access
| Space | Size | Term | Rental Rate | Space Use | Build-Out | Available |
| 1st Floor - Building K | 30,870 SF | Negotiable | $15.75 CAD/SF/YR $1.31 CAD/SF/MO $486,265 CAD/YR $40,522 CAD/MO | Industrial | - | Now |
50 Howe Ave - 1st Floor - Building K
50 Howe Ave - 1st Floor - Building K
| Size | 30,870 SF |
| Term | Negotiable |
| Rental Rate | $15.75 CAD/SF/YR |
| Space Use | Industrial |
| Build-Out | - |
| Available | Now |
30,870 SF - column-free space with 16' clear ceiling height. 3 internal loading docks, 1 drive-in door. Outdoor yard area available as well.
- Lease rate does not include utilities, property expenses or building services
- 1 Drive Bay
- Space is in Excellent Condition
- 3 Loading Docks
- Secure Storage
- Plug & Play
- Natural Light
- Yard
- Column Free Space
- On-site ownership and management
- Yard space available
- Convenient highway access
Park Overview
The Howe Avenue Industrial Park is located within five minutes of Route 20 and Route 146, providing easy access to the Mass Pike and I-290. The space is located in Building K with 30,870 SF of column-free space. 3 loading docks, 1 drive-in door - outdoor yard area available as well.
Presented by
Howe Avenue Industrial Park | Millbury, MA 01527
Hmm, there seems to have been an error sending your message. Please try again.
Thanks! Your message was sent.






