Your email has been sent.
Highlights
- 50 S Main is a sweeping 12-story, Class A office tower with move-in-ready suites and beautiful downtown views.
- Located in the epicenter of downtown, adjacent to new mixed-use projects, Akron Art Museum, restaurants and bars, and the University of Akron.
- Planned lobby upgrades and improvements currently underway to be completed in 2026!
- Enjoy on-site amenities like a Chase Bank branch, a hair salon, and convenient parking options with a 1,300-space attached parking garage.
- Situated near major area thoroughfares with easy access to Interstate 77, Interstate 76, Route 8, and the Ohio Turnpike.
All Available Spaces(14)
Display Rental Rate as
- Space
- Size
- Term
- Rental Rate
- Space Use
- Build-Out
- Available
Open space and two offices.
- Listed rate may not include certain utilities, building services and property expenses
Second generation restaurant space.
- Listed rate may not include certain utilities, building services and property expenses
- Located in-line with other retail
- Partially Built-Out as Standard Retail Space
- Space is in Excellent Condition
Elevator lobby exposure, open floor plan allowing for lots of natural light throughout the space.
- Listed rate may not include certain utilities, building services and property expenses
- Open Floor Plan Layout
- Fully Built-Out as Standard Office
Elevator lobby exposure with good balance of perimeter offices and workstations throughout.
- Listed rate may not include certain utilities, building services and property expenses
- Mostly Open Floor Plan Layout
- Can be combined with additional space(s) for up to 14,303 SF of adjacent space
- Fully Built-Out as Standard Office
- Space is in Excellent Condition
- Central Air Conditioning
- Listed rate may not include certain utilities, building services and property expenses
- 3 Private Offices
- Space is in Excellent Condition
- Mostly Open Floor Plan Layout
- 1 Conference Room
- Can be combined with additional space(s) for up to 14,303 SF of adjacent space
Move-in-ready condition with all new finishes throughout the space. Elevator lobby exposure and corner window line.
- Listed rate may not include certain utilities, building services and property expenses
- Mostly Open Floor Plan Layout
- Fully Built-Out as Standard Office
- Space is in Excellent Condition
Plug & play office space with open window line and interior offices, located right off the elevator lobby.
- Listed rate may not include certain utilities, building services and property expenses
- Mostly Open Floor Plan Layout
- Fully Built-Out as Standard Office
- Space is in Excellent Condition
- Listed rate may not include certain utilities, building services and property expenses
Conference room, open space situated on corner with two window lines
- Listed rate may not include certain utilities, building services and property expenses
- Mostly Open Floor Plan Layout
- Fully Built-Out as Standard Office
- Space is in Excellent Condition
Move-in ready space, two perimeter offices, and large board room.
- Listed rate may not include certain utilities, building services and property expenses
- Mostly Open Floor Plan Layout
- Fully Built-Out as Standard Office
- Space is in Excellent Condition
Corner office space, mix of open and office space.
- Listed rate may not include certain utilities, building services and property expenses
- Mostly Open Floor Plan Layout
- Central Air Conditioning
- Fully Built-Out as Standard Office
- Space is in Excellent Condition
Corner suite with perimeter offices and open space for workstations. Space is in move in ready condition.
- Listed rate may not include certain utilities, building services and property expenses
- 5 Private Offices
- Space is in Excellent Condition
- Fully Built-Out as Standard Office
- 1 Conference Room
- Can be combined with additional space(s) for up to 5,033 SF of adjacent space
Newly renovated space, elevator lobby exposure, open floor plan with kitchenette.
- Listed rate may not include certain utilities, building services and property expenses
- Open Floor Plan Layout
- Central Air Conditioning
- Fully Built-Out as Standard Office
- Can be combined with additional space(s) for up to 5,033 SF of adjacent space
- Kitchen
Plug & play smaller office with two window lined offices and interior huddle room.
- Listed rate may not include certain utilities, building services and property expenses
- Mostly Open Floor Plan Layout
- Fully Built-Out as Standard Office
| Space | Size | Term | Rental Rate | Space Use | Build-Out | Available |
| 1st Floor, Ste 127 | 683 SF | Negotiable | $28.09 CAD/SF/YR $2.34 CAD/SF/MO $19,188 CAD/YR $1,599 CAD/MO | Office | - | Now |
| 1st Floor, Ste 160 | 936 SF | Negotiable | $28.09 CAD/SF/YR $2.34 CAD/SF/MO $26,295 CAD/YR $2,191 CAD/MO | Retail | Partial Build-Out | Now |
| 2nd Floor, Ste 202 | 7,399 SF | Negotiable | $28.09 CAD/SF/YR $2.34 CAD/SF/MO $207,863 CAD/YR $17,322 CAD/MO | Office | Full Build-Out | Now |
| 4th Floor, Ste 401 | 10,096 SF | Negotiable | $28.09 CAD/SF/YR $2.34 CAD/SF/MO $283,631 CAD/YR $23,636 CAD/MO | Office | Full Build-Out | Now |
| 4th Floor, Ste 402 | 4,207 SF | Negotiable | $28.09 CAD/SF/YR $2.34 CAD/SF/MO $118,189 CAD/YR $9,849 CAD/MO | Office | - | 2026-05-01 |
| 5th Floor, Ste 502 | 4,279 SF | Negotiable | $28.09 CAD/SF/YR $2.34 CAD/SF/MO $120,212 CAD/YR $10,018 CAD/MO | Office | Full Build-Out | Now |
| 6th Floor, Ste 600 | 6,141 SF | Negotiable | $28.09 CAD/SF/YR $2.34 CAD/SF/MO $172,522 CAD/YR $14,377 CAD/MO | Office | Full Build-Out | Now |
| 6th Floor, Ste 615 | 4,013 SF | Negotiable | $28.09 CAD/SF/YR $2.34 CAD/SF/MO $112,739 CAD/YR $9,395 CAD/MO | Office | - | Now |
| 6th Floor, Ste 620 | 2,468 SF | Negotiable | $28.09 CAD/SF/YR $2.34 CAD/SF/MO $69,335 CAD/YR $5,778 CAD/MO | Office | Full Build-Out | Now |
| 7th Floor, Ste 703 | 1,195 SF | Negotiable | $28.78 CAD/SF/YR $2.40 CAD/SF/MO $34,390 CAD/YR $2,866 CAD/MO | Office | Full Build-Out | Now |
| 7th Floor, Ste 705 | 2,219 SF | Negotiable | $28.09 CAD/SF/YR $2.34 CAD/SF/MO $62,339 CAD/YR $5,195 CAD/MO | Office | Full Build-Out | Now |
| 7th Floor, Ste 709 | 2,882 SF | Negotiable | $28.09 CAD/SF/YR $2.34 CAD/SF/MO $80,965 CAD/YR $6,747 CAD/MO | Office | Full Build-Out | Now |
| 7th Floor, Ste 711 | 2,151 SF | Negotiable | $28.09 CAD/SF/YR $2.34 CAD/SF/MO $60,429 CAD/YR $5,036 CAD/MO | Office | Full Build-Out | Now |
| 7th Floor, Ste 720 | 894 SF | Negotiable | $28.09 CAD/SF/YR $2.34 CAD/SF/MO $25,116 CAD/YR $2,093 CAD/MO | Office | Full Build-Out | Now |
1st Floor, Ste 127
| Size |
| 683 SF |
| Term |
| Negotiable |
| Rental Rate |
| $28.09 CAD/SF/YR $2.34 CAD/SF/MO $19,188 CAD/YR $1,599 CAD/MO |
| Space Use |
| Office |
| Build-Out |
| - |
| Available |
| Now |
1st Floor, Ste 160
| Size |
| 936 SF |
| Term |
| Negotiable |
| Rental Rate |
| $28.09 CAD/SF/YR $2.34 CAD/SF/MO $26,295 CAD/YR $2,191 CAD/MO |
| Space Use |
| Retail |
| Build-Out |
| Partial Build-Out |
| Available |
| Now |
2nd Floor, Ste 202
| Size |
| 7,399 SF |
| Term |
| Negotiable |
| Rental Rate |
| $28.09 CAD/SF/YR $2.34 CAD/SF/MO $207,863 CAD/YR $17,322 CAD/MO |
| Space Use |
| Office |
| Build-Out |
| Full Build-Out |
| Available |
| Now |
4th Floor, Ste 401
| Size |
| 10,096 SF |
| Term |
| Negotiable |
| Rental Rate |
| $28.09 CAD/SF/YR $2.34 CAD/SF/MO $283,631 CAD/YR $23,636 CAD/MO |
| Space Use |
| Office |
| Build-Out |
| Full Build-Out |
| Available |
| Now |
4th Floor, Ste 402
| Size |
| 4,207 SF |
| Term |
| Negotiable |
| Rental Rate |
| $28.09 CAD/SF/YR $2.34 CAD/SF/MO $118,189 CAD/YR $9,849 CAD/MO |
| Space Use |
| Office |
| Build-Out |
| - |
| Available |
| 2026-05-01 |
5th Floor, Ste 502
| Size |
| 4,279 SF |
| Term |
| Negotiable |
| Rental Rate |
| $28.09 CAD/SF/YR $2.34 CAD/SF/MO $120,212 CAD/YR $10,018 CAD/MO |
| Space Use |
| Office |
| Build-Out |
| Full Build-Out |
| Available |
| Now |
6th Floor, Ste 600
| Size |
| 6,141 SF |
| Term |
| Negotiable |
| Rental Rate |
| $28.09 CAD/SF/YR $2.34 CAD/SF/MO $172,522 CAD/YR $14,377 CAD/MO |
| Space Use |
| Office |
| Build-Out |
| Full Build-Out |
| Available |
| Now |
6th Floor, Ste 615
| Size |
| 4,013 SF |
| Term |
| Negotiable |
| Rental Rate |
| $28.09 CAD/SF/YR $2.34 CAD/SF/MO $112,739 CAD/YR $9,395 CAD/MO |
| Space Use |
| Office |
| Build-Out |
| - |
| Available |
| Now |
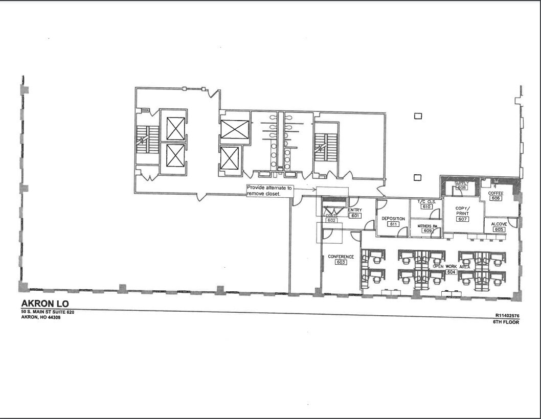
6th Floor, Ste 620
| Size |
| 2,468 SF |
| Term |
| Negotiable |
| Rental Rate |
| $28.09 CAD/SF/YR $2.34 CAD/SF/MO $69,335 CAD/YR $5,778 CAD/MO |
| Space Use |
| Office |
| Build-Out |
| Full Build-Out |
| Available |
| Now |
7th Floor, Ste 703
| Size |
| 1,195 SF |
| Term |
| Negotiable |
| Rental Rate |
| $28.78 CAD/SF/YR $2.40 CAD/SF/MO $34,390 CAD/YR $2,866 CAD/MO |
| Space Use |
| Office |
| Build-Out |
| Full Build-Out |
| Available |
| Now |
7th Floor, Ste 705
| Size |
| 2,219 SF |
| Term |
| Negotiable |
| Rental Rate |
| $28.09 CAD/SF/YR $2.34 CAD/SF/MO $62,339 CAD/YR $5,195 CAD/MO |
| Space Use |
| Office |
| Build-Out |
| Full Build-Out |
| Available |
| Now |
7th Floor, Ste 709
| Size |
| 2,882 SF |
| Term |
| Negotiable |
| Rental Rate |
| $28.09 CAD/SF/YR $2.34 CAD/SF/MO $80,965 CAD/YR $6,747 CAD/MO |
| Space Use |
| Office |
| Build-Out |
| Full Build-Out |
| Available |
| Now |
7th Floor, Ste 711
| Size |
| 2,151 SF |
| Term |
| Negotiable |
| Rental Rate |
| $28.09 CAD/SF/YR $2.34 CAD/SF/MO $60,429 CAD/YR $5,036 CAD/MO |
| Space Use |
| Office |
| Build-Out |
| Full Build-Out |
| Available |
| Now |
7th Floor, Ste 720
| Size |
| 894 SF |
| Term |
| Negotiable |
| Rental Rate |
| $28.09 CAD/SF/YR $2.34 CAD/SF/MO $25,116 CAD/YR $2,093 CAD/MO |
| Space Use |
| Office |
| Build-Out |
| Full Build-Out |
| Available |
| Now |
1st Floor, Ste 127
| Size | 683 SF |
| Term | Negotiable |
| Rental Rate | $28.09 CAD/SF/YR |
| Space Use | Office |
| Build-Out | - |
| Available | Now |
Open space and two offices.
- Listed rate may not include certain utilities, building services and property expenses
1st Floor, Ste 160
| Size | 936 SF |
| Term | Negotiable |
| Rental Rate | $28.09 CAD/SF/YR |
| Space Use | Retail |
| Build-Out | Partial Build-Out |
| Available | Now |
Second generation restaurant space.
- Listed rate may not include certain utilities, building services and property expenses
- Partially Built-Out as Standard Retail Space
- Located in-line with other retail
- Space is in Excellent Condition
2nd Floor, Ste 202
| Size | 7,399 SF |
| Term | Negotiable |
| Rental Rate | $28.09 CAD/SF/YR |
| Space Use | Office |
| Build-Out | Full Build-Out |
| Available | Now |
Elevator lobby exposure, open floor plan allowing for lots of natural light throughout the space.
- Listed rate may not include certain utilities, building services and property expenses
- Fully Built-Out as Standard Office
- Open Floor Plan Layout
4th Floor, Ste 401
| Size | 10,096 SF |
| Term | Negotiable |
| Rental Rate | $28.09 CAD/SF/YR |
| Space Use | Office |
| Build-Out | Full Build-Out |
| Available | Now |
Elevator lobby exposure with good balance of perimeter offices and workstations throughout.
- Listed rate may not include certain utilities, building services and property expenses
- Fully Built-Out as Standard Office
- Mostly Open Floor Plan Layout
- Space is in Excellent Condition
- Can be combined with additional space(s) for up to 14,303 SF of adjacent space
- Central Air Conditioning
4th Floor, Ste 402
| Size | 4,207 SF |
| Term | Negotiable |
| Rental Rate | $28.09 CAD/SF/YR |
| Space Use | Office |
| Build-Out | - |
| Available | 2026-05-01 |
- Listed rate may not include certain utilities, building services and property expenses
- Mostly Open Floor Plan Layout
- 3 Private Offices
- 1 Conference Room
- Space is in Excellent Condition
- Can be combined with additional space(s) for up to 14,303 SF of adjacent space
5th Floor, Ste 502
| Size | 4,279 SF |
| Term | Negotiable |
| Rental Rate | $28.09 CAD/SF/YR |
| Space Use | Office |
| Build-Out | Full Build-Out |
| Available | Now |
Move-in-ready condition with all new finishes throughout the space. Elevator lobby exposure and corner window line.
- Listed rate may not include certain utilities, building services and property expenses
- Fully Built-Out as Standard Office
- Mostly Open Floor Plan Layout
- Space is in Excellent Condition
6th Floor, Ste 600
| Size | 6,141 SF |
| Term | Negotiable |
| Rental Rate | $28.09 CAD/SF/YR |
| Space Use | Office |
| Build-Out | Full Build-Out |
| Available | Now |
Plug & play office space with open window line and interior offices, located right off the elevator lobby.
- Listed rate may not include certain utilities, building services and property expenses
- Fully Built-Out as Standard Office
- Mostly Open Floor Plan Layout
- Space is in Excellent Condition
6th Floor, Ste 615
| Size | 4,013 SF |
| Term | Negotiable |
| Rental Rate | $28.09 CAD/SF/YR |
| Space Use | Office |
| Build-Out | - |
| Available | Now |
- Listed rate may not include certain utilities, building services and property expenses
6th Floor, Ste 620
| Size | 2,468 SF |
| Term | Negotiable |
| Rental Rate | $28.09 CAD/SF/YR |
| Space Use | Office |
| Build-Out | Full Build-Out |
| Available | Now |
Conference room, open space situated on corner with two window lines
- Listed rate may not include certain utilities, building services and property expenses
- Fully Built-Out as Standard Office
- Mostly Open Floor Plan Layout
- Space is in Excellent Condition
7th Floor, Ste 703
| Size | 1,195 SF |
| Term | Negotiable |
| Rental Rate | $28.78 CAD/SF/YR |
| Space Use | Office |
| Build-Out | Full Build-Out |
| Available | Now |
Move-in ready space, two perimeter offices, and large board room.
- Listed rate may not include certain utilities, building services and property expenses
- Fully Built-Out as Standard Office
- Mostly Open Floor Plan Layout
- Space is in Excellent Condition
7th Floor, Ste 705
| Size | 2,219 SF |
| Term | Negotiable |
| Rental Rate | $28.09 CAD/SF/YR |
| Space Use | Office |
| Build-Out | Full Build-Out |
| Available | Now |
Corner office space, mix of open and office space.
- Listed rate may not include certain utilities, building services and property expenses
- Fully Built-Out as Standard Office
- Mostly Open Floor Plan Layout
- Space is in Excellent Condition
- Central Air Conditioning
7th Floor, Ste 709
| Size | 2,882 SF |
| Term | Negotiable |
| Rental Rate | $28.09 CAD/SF/YR |
| Space Use | Office |
| Build-Out | Full Build-Out |
| Available | Now |
Corner suite with perimeter offices and open space for workstations. Space is in move in ready condition.
- Listed rate may not include certain utilities, building services and property expenses
- Fully Built-Out as Standard Office
- 5 Private Offices
- 1 Conference Room
- Space is in Excellent Condition
- Can be combined with additional space(s) for up to 5,033 SF of adjacent space
7th Floor, Ste 711
| Size | 2,151 SF |
| Term | Negotiable |
| Rental Rate | $28.09 CAD/SF/YR |
| Space Use | Office |
| Build-Out | Full Build-Out |
| Available | Now |
Newly renovated space, elevator lobby exposure, open floor plan with kitchenette.
- Listed rate may not include certain utilities, building services and property expenses
- Fully Built-Out as Standard Office
- Open Floor Plan Layout
- Can be combined with additional space(s) for up to 5,033 SF of adjacent space
- Central Air Conditioning
- Kitchen
7th Floor, Ste 720
| Size | 894 SF |
| Term | Negotiable |
| Rental Rate | $28.09 CAD/SF/YR |
| Space Use | Office |
| Build-Out | Full Build-Out |
| Available | Now |
Plug & play smaller office with two window lined offices and interior huddle room.
- Listed rate may not include certain utilities, building services and property expenses
- Fully Built-Out as Standard Office
- Mostly Open Floor Plan Layout
Property Overview
Situated in the heart of Akron's vibrant core, 50 S Main Street is a Class A office tower with excellent amenities and tenant conveniences in a buzzing locale. This 12-story, 195,000-square-foot building features efficient floor plates sporting floor-to-ceiling windows for abundant natural light and panoramic city views. 50 S Main offers move-in-ready office and first-floor retail space, ranging from 894 to 10,094 square feet, within a professional working environment. 50 S Main is teeming with competitive on-site amenities, including restaurants, a bank branch, and a hair salon. The property provides 24/7 manned security to ensure a safe workplace and ample parking in the attached 1,300-space garage. A robust collection of dining, shopping, service-based retail, and entertainment options are within walking distance. The popular Lock 3 Park, a family-friendly outdoor park with events from morning yoga sessions to 5K runs, is less than a mile away. Tenants have immediate access to the 87-mile Towpath, ideal for a mid-day stroll or after-hours bike ride. Downtown Akron is a charming neighborhood known for its community events, popular restaurants and bars, and easy accessibility. Residents and visitors enjoy various fun-filled activities, from catching a RubberDucks game at Canal Park to seeing a musical at the Akron Civic Theatre. The building is blocks from the University of Akron and close to Kent State, Cleveland State, and Case Western Reserve Universities. Commuting is a breeze via nearby access to Interstate 77 and the Cleveland Hopkins International and Akron-Canton Regional airports, perfect for out-of-town traveling.
- Banking
- Convenience Store
- Food Court
- Property Manager on Site
- Restaurant
- Security System
Property Facts
Presented by
50 S | 50 S Main St
Hmm, there seems to have been an error sending your message. Please try again.
Thanks! Your message was sent.
















