Log In/Sign Up
Your email has been sent.
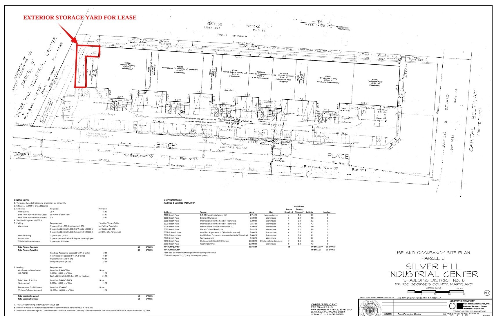
Beech Center Industrial Building 5000-5060 Beech Pl 4,800 - 9,800 SF of Industrial Space Available in Marlow Heights, MD 20748



Highlights
- The property is located 2 exits away from Andrews Airforce base.
Features
Clear Height
18’
Drive In Bays
6
Exterior Dock Doors
14
Standard Parking Spaces
100
All Available Spaces(2)
Display Rental Rate as
- Space
- Size
- Term
- Rental Rate
- Space Use
- Build-Out
- Available
4,800sf space with 4 offices at approximately 300sf each.
- Lease rate does not include utilities, property expenses or building services
- 1 Drive Bay
- Partitioned Offices
- Secure Storage
- Smoke Detector
- Includes 1,200 SF of dedicated office space
- Central Air and Heating
- Private Restrooms
- Emergency Lighting
- Drive In Industrial Unit
2 restrooms, High Ceilings, Wood Laminate Floor, Great Lighting
- Lease rate does not include utilities, property expenses or building services
- 1 Drive Bay
- Partitioned Offices
- Secure Storage
- Smoke Detector
- High Ceilings
- Includes 900 SF of dedicated office space
- Central Air Conditioning
- Private Restrooms
- Emergency Lighting
- Wood Laminate floors
- Lots of Lighting
| Space | Size | Term | Rental Rate | Space Use | Build-Out | Available |
| 1st Floor - 5006 | 4,800 SF | 3-5 Years | Upon Request Upon Request Upon Request Upon Request | Industrial | Shell Space | Now |
| 1st Floor - 5038B | 5,000 SF | 5-7 Years | Upon Request Upon Request Upon Request Upon Request | Industrial | Full Build-Out | Now |
1st Floor - 5006
| Size |
| 4,800 SF |
| Term |
| 3-5 Years |
| Rental Rate |
| Upon Request Upon Request Upon Request Upon Request |
| Space Use |
| Industrial |
| Build-Out |
| Shell Space |
| Available |
| Now |
1st Floor - 5038B
| Size |
| 5,000 SF |
| Term |
| 5-7 Years |
| Rental Rate |
| Upon Request Upon Request Upon Request Upon Request |
| Space Use |
| Industrial |
| Build-Out |
| Full Build-Out |
| Available |
| Now |
1st Floor - 5006
| Size | 4,800 SF |
| Term | 3-5 Years |
| Rental Rate | Upon Request |
| Space Use | Industrial |
| Build-Out | Shell Space |
| Available | Now |
4,800sf space with 4 offices at approximately 300sf each.
- Lease rate does not include utilities, property expenses or building services
- Includes 1,200 SF of dedicated office space
- 1 Drive Bay
- Central Air and Heating
- Partitioned Offices
- Private Restrooms
- Secure Storage
- Emergency Lighting
- Smoke Detector
- Drive In Industrial Unit
1 of 4
Videos
Matterport 3D Exterior
Matterport 3D Tour
Photos
Street View
Street
Map
1st Floor - 5038B
| Size | 5,000 SF |
| Term | 5-7 Years |
| Rental Rate | Upon Request |
| Space Use | Industrial |
| Build-Out | Full Build-Out |
| Available | Now |
2 restrooms, High Ceilings, Wood Laminate Floor, Great Lighting
- Lease rate does not include utilities, property expenses or building services
- Includes 900 SF of dedicated office space
- 1 Drive Bay
- Central Air Conditioning
- Partitioned Offices
- Private Restrooms
- Secure Storage
- Emergency Lighting
- Smoke Detector
- Wood Laminate floors
- High Ceilings
- Lots of Lighting
Property Overview
5000-5060 Beech Place is located off of Branch Ave (Route 5) and backs up directly to I-495 giving the property easy access to Washington D.C., Southern Maryland and Northern VA.
Warehouse Facility Facts
Building Size
65,000 SF
Lot Size
3.53 AC
Year Built
1977
Construction
Masonry
Sprinkler System
Wet
Water
City
Sewer
City
Heating
Gas
Gas
Natural
Zoning
IE - Light Industrial - Light intensity manufacturing, warehousing, and distribution uses
Select Tenants
- Floor
- Tenant Name
- Industry
- 1st
- SOLAD Baptist Church
- Services
1 1
Fairly walkable
40/100
Exceptionally drivable
100/100
Limited public transit
20/100
Somewhat bikeable
20/100
1 of 6
Videos
Matterport 3D Exterior
Matterport 3D Tour
Photos
Street View
Street
Map
1 of 1
Presented by
Beech Center Industrial Building | 5000-5060 Beech Pl
Already a member? Log In
Hmm, there seems to have been an error sending your message. Please try again.
Thanks! Your message was sent.



