Your email has been sent.
Village At Sports Center 5001-5005 S Cooper St 2,798 SF of Office Space Available in Arlington, TX 76017



Highlights
- 2nd Gen Office/ Medical space are available located on 1-20 with high traffic on Cooper St corridor
- Retail tenants: Chipotle, First Watch Daytime Café, Yumilicious, Nothing Bundt Cakes, Greedy's, Pho 95, Pokeworks and more
- Outdoor seating areas, walkways, fountains, sculptures, and trellises.
- Join office tenants: Urology Partners of North Texas, Woman’s Health Services, Century 21, Stork Vision, and more
- Connected to Harold Patterson Sports Complex, which attracts over 730,000 visitors annually
- Well known destination in Arlington/Mansfield, Large monument signage available
Space Availability (1)
Display Rental Rate as
- Space
- Size
- Term
- Rental Rate
- Rent Type
| Space | Size | Term | Rental Rate | Rent Type | ||
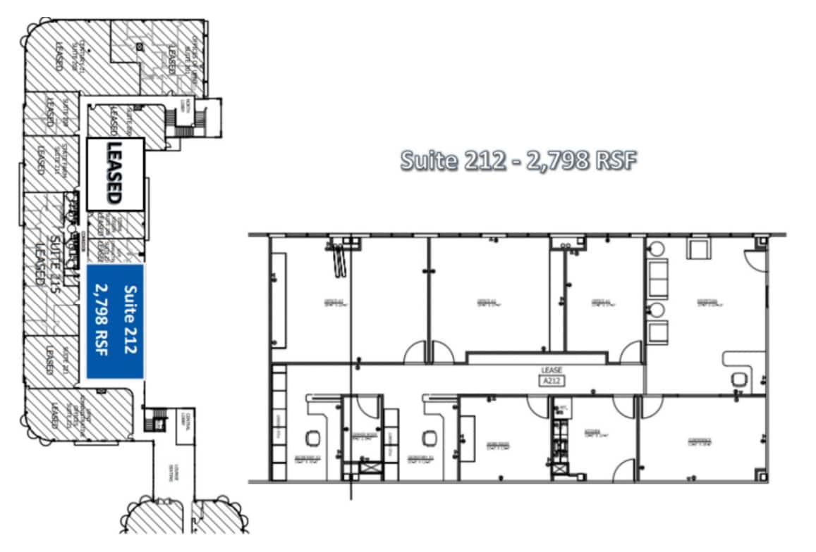
| 2nd Floor, Ste 212 | 2,798 SF | Negotiable | Upon Request Upon Request Upon Request Upon Request | Triple Net (NNN) |
2nd Floor, Ste 212
Former Attorney's office. Hardwood Floors & Carpet, kitchenette, large offices,
- Lease rate does not include utilities, property expenses or building services
- Office intensive layout
- Space is in Excellent Condition
- Former Attorney's office
- Hardwood, carpet, and tile within the space.
- Nearby bathrooms/after hours entry
- Accessable stairs/elevator/security guard on site
- Office space with windows
Rent Types
The rent amount and type that the tenant (lessee) will be responsible to pay to the landlord (lessor) throughout the lease term is negotiated prior to both parties signing a lease agreement. The rent type will vary depending upon the services provided. For example, triple net rents are typically lower than full service rents due to additional expenses the tenant is required to pay in addition to the base rent. Contact the listing broker for a full understanding of any associated costs or additional expenses for each rent type.
1. Full Service: A rental rate that includes normal building standard services as provided by the landlord within a base year rental.
2. Double Net (NN): Tenant pays for only two of the building expenses; the landlord and tenant determine the specific expenses prior to signing the lease agreement.
3. Triple Net (NNN): A lease in which the tenant is responsible for all expenses associated with their proportional share of occupancy of the building.
4. Modified Gross: Modified Gross is a general type of lease rate where typically the tenant will be responsible for their proportional share of one or more of the expenses. The landlord will pay the remaining expenses. See the below list of common Modified Gross rental rate structures: 4. Plus All Utilities: A type of Modified Gross Lease where the tenant is responsible for their proportional share of utilities in addition to the rent. 4. Plus Cleaning: A type of Modified Gross Lease where the tenant is responsible for their proportional share of cleaning in addition to the rent. 4. Plus Electric: A type of Modified Gross Lease where the tenant is responsible for their proportional share of the electrical cost in addition to the rent. 4. Plus Electric & Cleaning: A type of Modified Gross Lease where the tenant is responsible for their proportional share of the electrical and cleaning cost in addition to the rent. 4. Plus Utilities and Char: A type of Modified Gross Lease where the tenant is responsible for their proportional share of the utilities and cleaning cost in addition to the rent. 4. Industrial Gross: A type of Modified Gross lease where the tenant pays one or more of the expenses in addition to the rent. The landlord and tenant determine these prior to signing the lease agreement.
5. Tenant Electric: The landlord pays for all services and the tenant is responsible for their usage of lights and electrical outlets in the space they occupy.
6. Negotiable or Upon Request: Used when the leasing contact does not provide the rent or service type.
7. TBD: To be determined; used for buildings for which no rent or service type is known, commonly utilized when the buildings are not yet built.
Property Facts
| Total Space Available | 2,798 SF | Year Built | 2009 |
| Property Type | Retail | Parking Ratio | 4.27/1,000 SF |
| Property Subtype | Storefront Retail/Office | Cross Streets | Wimbledon Dr |
| Gross Leasable Area | 101,851 SF |
| Total Space Available | 2,798 SF |
| Property Type | Retail |
| Property Subtype | Storefront Retail/Office |
| Gross Leasable Area | 101,851 SF |
| Year Built | 2009 |
| Parking Ratio | 4.27/1,000 SF |
| Cross Streets | Wimbledon Dr |
About the Property
The Village is adjacent to Harold Patterson Sports Center a 142 acre sports venue, home to soccer, football, baseball, softball fields and walking and jogging trails attracting over 20,000 participants & spectators on weekends and 730,000 people annually. The Village includes outdoor seating areas, walkways, fountains, sculptures and trellises.
- Signage
- Skyway
- Air Conditioning
Nearby Major Retailers
Presented by
Village At Sports Center | 5001-5005 S Cooper St
Hmm, there seems to have been an error sending your message. Please try again.
Thanks! Your message was sent.


