Log In/Sign Up
Your email has been sent.
Investment Highlights
- Infill industrial or IOS development site surrounded by established Tampa distribution corridors.
- Immediate access to multiple ports and major highways for efficient regional logistics
- M zoning provides broad flexibility for industrial development concepts.
- Prominent U.S. Highway 41 frontage with strong daily traffic exposure at 33,500 AADT.
- Strong 10-mile labor and population base supporting industrial operations.
Executive Summary
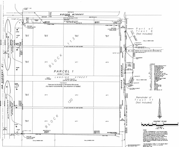
The 11.9-acre site at 5003 Dover St offers a compelling opportunity for buyers seeking a rare infill industrial or IOS development location within one of the most strategically connected corridors in the Tampa region. Positioned along U.S. Highway 41, the property benefits from prominent frontage exposed to more than 33,500 vehicles per day, providing exceptional visibility and access for logistics users, yard-intensive operations, or value-add redevelopment scenarios supported by strong market fundamentals.
Its proximity to major transportation infrastructure amplifies the site’s long-term appeal. Port Tampa Bay and Port Redwing are both within a 12-minute drive, offering streamlined access to maritime cargo and intermodal connectivity. The Selmon Expressway, I-4, I-75, and I-275 are all within minutes, enabling efficient movement throughout the Tampa metropolitan area and broader Central Florida distribution network. Tampa International Airport lies 16 minutes from the property, ensuring smooth integration of air freight operations.
Its proximity to major transportation infrastructure amplifies the site’s long-term appeal. Port Tampa Bay and Port Redwing are both within a 12-minute drive, offering streamlined access to maritime cargo and intermodal connectivity. The Selmon Expressway, I-4, I-75, and I-275 are all within minutes, enabling efficient movement throughout the Tampa metropolitan area and broader Central Florida distribution network. Tampa International Airport lies 16 minutes from the property, ensuring smooth integration of air freight operations.
With M zoning already in place and a conceptual site plan included for illustration, the property provides buyers flexibility to execute a wide range of industrial strategies while benefitting from its infill nature, established roadway network, and proximity to key commercial and residential nodes. This combination of frontage, accessibility, and regional integration positions 5003 Dover St as a standout Tampa opportunity for industrial investors seeking immediate utility and long-term growth potential.
Its proximity to major transportation infrastructure amplifies the site’s long-term appeal. Port Tampa Bay and Port Redwing are both within a 12-minute drive, offering streamlined access to maritime cargo and intermodal connectivity. The Selmon Expressway, I-4, I-75, and I-275 are all within minutes, enabling efficient movement throughout the Tampa metropolitan area and broader Central Florida distribution network. Tampa International Airport lies 16 minutes from the property, ensuring smooth integration of air freight operations.
Its proximity to major transportation infrastructure amplifies the site’s long-term appeal. Port Tampa Bay and Port Redwing are both within a 12-minute drive, offering streamlined access to maritime cargo and intermodal connectivity. The Selmon Expressway, I-4, I-75, and I-275 are all within minutes, enabling efficient movement throughout the Tampa metropolitan area and broader Central Florida distribution network. Tampa International Airport lies 16 minutes from the property, ensuring smooth integration of air freight operations.
With M zoning already in place and a conceptual site plan included for illustration, the property provides buyers flexibility to execute a wide range of industrial strategies while benefitting from its infill nature, established roadway network, and proximity to key commercial and residential nodes. This combination of frontage, accessibility, and regional integration positions 5003 Dover St as a standout Tampa opportunity for industrial investors seeking immediate utility and long-term growth potential.
Property Facts
| Sale Type | Investment | Proposed Use | Industrial |
| No. Lots | 1 | Total Lot Size | 11.90 AC |
| Property Type | Land | No. Stories | 1 |
| Property Subtype | Commercial | Opportunity Zone |
Yes
|
| Zoning | M - Manufacturing | ||
| Sale Type | Investment |
| No. Lots | 1 |
| Property Type | Land |
| Property Subtype | Commercial |
| Proposed Use | Industrial |
| Total Lot Size | 11.90 AC |
| No. Stories | 1 |
| Opportunity Zone |
Yes |
| Zoning | M - Manufacturing |
1 Lot Available
Lot
| Lot Size | 11.90 AC |
| Lot Size | 11.90 AC |
11.9 acres of M zoned land.
1 1
Not walkable
10/100
Exceptionally drivable
90/100
Somewhat bikeable
20/100
Property Taxes
| Parcel Number | U-03-30-19-1Q3-000113-00006.0 | Improvements Assessment | $1,634 CAD |
| Land Assessment | $1,261,037 CAD | Total Assessment | $1,262,671 CAD |
Property Taxes
Parcel Number
U-03-30-19-1Q3-000113-00006.0
Land Assessment
$1,261,037 CAD
Improvements Assessment
$1,634 CAD
Total Assessment
$1,262,671 CAD
1 of 5
Videos
Matterport 3D Exterior
Matterport 3D Tour
Photos
Street View
Street
Map
1 of 1
Presented by
5003 Dover St
Already a member? Log In
Hmm, there seems to have been an error sending your message. Please try again.
Thanks! Your message was sent.



