Your email has been sent.
Highlights
- LED LIGHTING 73,000 SQ. FT. FREEZER BUILDING NOW USED FOR DISTRIBUTION AND STORAGE
- Open plan with exposed brick walls in some areas.
- Located withing walking distance of Downtown Springfield.
- Plenty of parking for all buildings on properties
Features
All Available Spaces(3)
Display Rental Rate as
- Space
- Size
- Term
- Rental Rate
- Space Use
- Build-Out
- Available
- Listed rate may not include certain utilities, building services and property expenses
- 2 Loading Docks
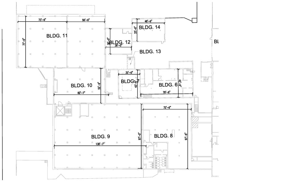
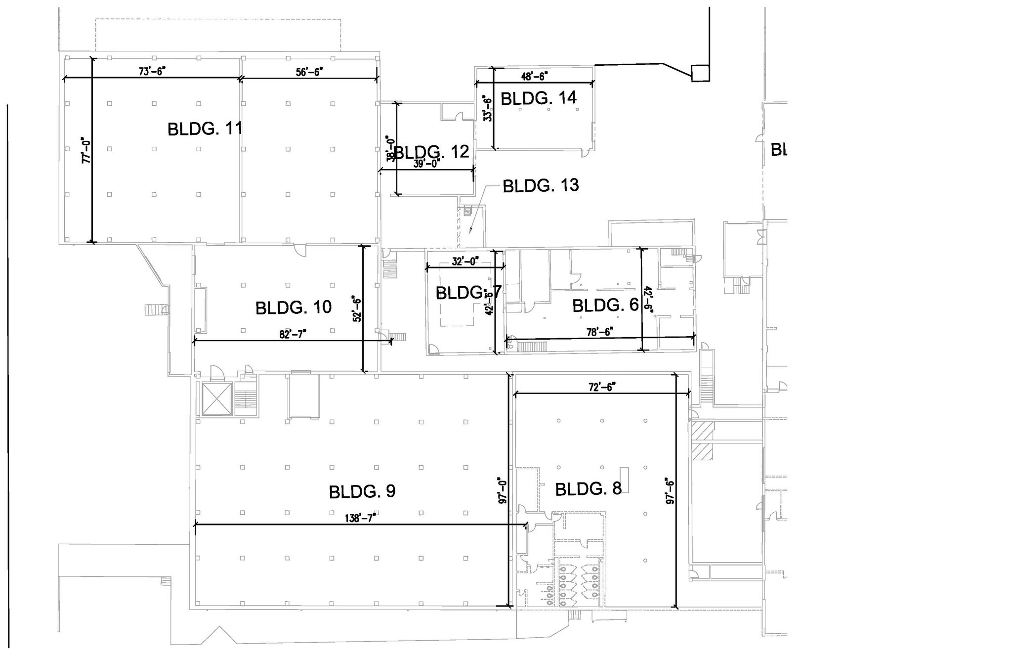
On the west end of the property, building 10 is 2 stories with a total of 8,672 SF. This building also comes with a 689 SF loading dock with CMU Exterior Walls. Other features include: -CIP Structure -CIP Exterior Walls -No Windows See diagram attached for additional details.
- Listed rate may not include certain utilities, building services and property expenses
- Central Air and Heating
- 1 Loading Dock
On the west end of the property, building 11 is 2 stories with a total of 21,874 SF. This building also comes with a 883 SF loading dock with CMU Exterior Walls. Other features include: -CIP Structure -CIP Exterior Walls -No Windows See diagram attached for additional details.
- Listed rate may not include certain utilities, building services and property expenses
- Central Air and Heating
- 4 Loading Docks
| Space | Size | Term | Rental Rate | Space Use | Build-Out | Available |
| 1st Floor | 29,686 SF | Negotiable | $10.96 CAD/SF/YR $0.91 CAD/SF/MO $325,456 CAD/YR $27,121 CAD/MO | Industrial | Partial Build-Out | Now |
| 1st Floor - Building 10 | 29,492 SF | Negotiable | $9.59 CAD/SF/YR $0.80 CAD/SF/MO $282,913 CAD/YR $23,576 CAD/MO | Industrial | - | 30 Days |
| 1st Floor - Building 11 | 29,686 SF | Negotiable | $9.59 CAD/SF/YR $0.80 CAD/SF/MO $284,774 CAD/YR $23,731 CAD/MO | Industrial | - | Now |
1st Floor
| Size |
| 29,686 SF |
| Term |
| Negotiable |
| Rental Rate |
| $10.96 CAD/SF/YR $0.91 CAD/SF/MO $325,456 CAD/YR $27,121 CAD/MO |
| Space Use |
| Industrial |
| Build-Out |
| Partial Build-Out |
| Available |
| Now |
1st Floor - Building 10
| Size |
| 29,492 SF |
| Term |
| Negotiable |
| Rental Rate |
| $9.59 CAD/SF/YR $0.80 CAD/SF/MO $282,913 CAD/YR $23,576 CAD/MO |
| Space Use |
| Industrial |
| Build-Out |
| - |
| Available |
| 30 Days |
1st Floor - Building 11
| Size |
| 29,686 SF |
| Term |
| Negotiable |
| Rental Rate |
| $9.59 CAD/SF/YR $0.80 CAD/SF/MO $284,774 CAD/YR $23,731 CAD/MO |
| Space Use |
| Industrial |
| Build-Out |
| - |
| Available |
| Now |
1st Floor
| Size | 29,686 SF |
| Term | Negotiable |
| Rental Rate | $10.96 CAD/SF/YR |
| Space Use | Industrial |
| Build-Out | Partial Build-Out |
| Available | Now |
- Listed rate may not include certain utilities, building services and property expenses
- 2 Loading Docks
1st Floor - Building 10
| Size | 29,492 SF |
| Term | Negotiable |
| Rental Rate | $9.59 CAD/SF/YR |
| Space Use | Industrial |
| Build-Out | - |
| Available | 30 Days |
On the west end of the property, building 10 is 2 stories with a total of 8,672 SF. This building also comes with a 689 SF loading dock with CMU Exterior Walls. Other features include: -CIP Structure -CIP Exterior Walls -No Windows See diagram attached for additional details.
- Listed rate may not include certain utilities, building services and property expenses
- 1 Loading Dock
- Central Air and Heating
1st Floor - Building 11
| Size | 29,686 SF |
| Term | Negotiable |
| Rental Rate | $9.59 CAD/SF/YR |
| Space Use | Industrial |
| Build-Out | - |
| Available | Now |
On the west end of the property, building 11 is 2 stories with a total of 21,874 SF. This building also comes with a 883 SF loading dock with CMU Exterior Walls. Other features include: -CIP Structure -CIP Exterior Walls -No Windows See diagram attached for additional details.
- Listed rate may not include certain utilities, building services and property expenses
- 4 Loading Docks
- Central Air and Heating
Property Overview
The building is dock high with overhead doors. Several of the spaces are temperature controlled. Some of the nearby buildings are used for distribution and storage. Column spacing varies but several are 19 ft. center to center. Heavy 3 phase power is on property. Former Data Center on property. This former manufacturing facility is over 200,000 sq. ft. of industrial property that sits on 7 acres in Springfield, MO. The property has multiple parking lots with 376 parking spaces, The buildings are part of the Central Business District and are across the street from the U.S. Post Office and near City Hall, Court House, and many other destination locations. Conveniently located near City Utilities bus service Transit Hub which provides an easy commute to and from the buildings.
Warehouse Facility Facts
Presented by
501 N Main Ave
Hmm, there seems to have been an error sending your message. Please try again.
Thanks! Your message was sent.








