Log In/Sign Up
Your email has been sent.
501 N Main St 23,500 SF Health Care Building Offered For Sale in Gordonsville, VA 22942



Investment Highlights
- Surrounding region is rich with tourist attractions and cultural landmarks, including the Civil War Museum, Shenandoah National Park, and Lake Orange
- Redevelopment Opportunity
- Zoned B-2, the site offers exceptional flexibility, making it well-suited for adaptive reuse
Executive Summary
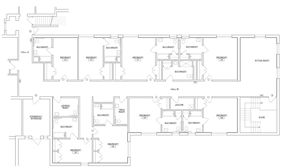
This former assisted living and memory care facility offers approximately 23,500 square feet of interior space on a generous +5-acre lot, providing the perfect canvas for a variety of potential uses.
Zoned B-2, the site offers exceptional flexibility, making it well-suited for adaptive reuse as a small medical office building, multi-family apartments, or a boutique hospitality venture. With ample parking, strong street visibility, and a welcoming layout, the property is ready for transformation.
Situated in a charming Southern town, Gordonsville is widely recognized for its quaint shops, vibrant arts scene, and acclaimed culinary destinations, including the renowned Barbeque Exchange and Gordonsville Ice House. Just 19 miles northeast of Charlottesville and 65 miles northwest of Richmond, the location provides convenient access to major metro areas while retaining its small-town charm.
The surrounding region is rich with tourist attractions and cultural landmarks, including the Civil War Museum, Shenandoah National Park, and Lake Orange, making it an ideal spot for attracting visitors and residents alike. The area is also home to major employers such as Klockner Pentaplast, American Woodmark, Dominion Energy, and Walmart, contributing to a stable local economy and demand for housing and services.
Zoned B-2, the site offers exceptional flexibility, making it well-suited for adaptive reuse as a small medical office building, multi-family apartments, or a boutique hospitality venture. With ample parking, strong street visibility, and a welcoming layout, the property is ready for transformation.
Situated in a charming Southern town, Gordonsville is widely recognized for its quaint shops, vibrant arts scene, and acclaimed culinary destinations, including the renowned Barbeque Exchange and Gordonsville Ice House. Just 19 miles northeast of Charlottesville and 65 miles northwest of Richmond, the location provides convenient access to major metro areas while retaining its small-town charm.
The surrounding region is rich with tourist attractions and cultural landmarks, including the Civil War Museum, Shenandoah National Park, and Lake Orange, making it an ideal spot for attracting visitors and residents alike. The area is also home to major employers such as Klockner Pentaplast, American Woodmark, Dominion Energy, and Walmart, contributing to a stable local economy and demand for housing and services.
Property Facts
| Sale Type | Investment or Owner User | Lot Size | 5.00 AC |
| Sale Condition | Redevelopment Project | Building Size | 23,500 SF |
| Property Type | Health Care | No. Beds | 32 |
| Property Subtype | Assisted Living | No. Stories | 2 |
| Building Class | B | Year Built | 2004 |
| Zoning | B-2 | ||
| Sale Type | Investment or Owner User |
| Sale Condition | Redevelopment Project |
| Property Type | Health Care |
| Property Subtype | Assisted Living |
| Building Class | B |
| Lot Size | 5.00 AC |
| Building Size | 23,500 SF |
| No. Beds | 32 |
| No. Stories | 2 |
| Year Built | 2004 |
| Zoning | B-2 |
1 1
Somewhat walkable
30/100
Exceptionally drivable
100/100
Limited public transit
30/100
Somewhat bikeable
20/100
Property Taxes
| Parcel Number | 068-A2-01-29-0003-0 | Improvements Assessment | $2,292,347 CAD |
| Land Assessment | $102,728 CAD | Total Assessment | $2,395,075 CAD |
Property Taxes
Parcel Number
068-A2-01-29-0003-0
Land Assessment
$102,728 CAD
Improvements Assessment
$2,292,347 CAD
Total Assessment
$2,395,075 CAD
1 of 8
Videos
Matterport 3D Exterior
Matterport 3D Tour
Photos
Street View
Street
Map
1 of 1
Presented by
501 N Main St
Already a member? Log In
Hmm, there seems to have been an error sending your message. Please try again.
Thanks! Your message was sent.
