Log In/Sign Up
Your email has been sent.
502 S Dixie Blvd - 502 S Dixie Blvd, Radcliff, KY 40160 178 Acres of Commercial Land Offered at $6,823,575 CAD in Radcliff, KY 40160



INVESTMENT HIGHLIGHTS
- Pre-approved development plan.
- Proximity to major cities- 45 miles from Downtown Louisville.
EXECUTIVE SUMMARY
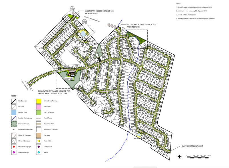
"Majestic Hills" is an unimproved 178.68 acre site located in Hardin County, KY. The property has received development plan approval for the development of 406 residential lots with an approximate size of 12,500 sf per lot, 5 acres of which is dedicated to amenity space and could be converted to additional lots. The property is well situated to the west of the county seat of Elizabethtown in Radcliff, KY and features close proximity to major employment bases and area retail amenities.
Hardin County, which is situated south of Louisville along I-65, with a county seat of Elizabethtown, is 45 miles from downtown Louisville. Other cities include Radcliff, Ft. Knox, Rineyville and Glendale. Major employers in the area include heathcare, education, and industrial/manufacturing industries. Ft Knox is the largest employer with a workforces in excess of 22,000. Blue Oval SK Battery Park in Glendale, one of the largest industrial developments in the country, plans to employ approximately 5,000 people.
Hardin County, which is situated south of Louisville along I-65, with a county seat of Elizabethtown, is 45 miles from downtown Louisville. Other cities include Radcliff, Ft. Knox, Rineyville and Glendale. Major employers in the area include heathcare, education, and industrial/manufacturing industries. Ft Knox is the largest employer with a workforces in excess of 22,000. Blue Oval SK Battery Park in Glendale, one of the largest industrial developments in the country, plans to employ approximately 5,000 people.
PROPERTY FACTS
| Price | $6,823,575 CAD | Property Subtype | Commercial |
| Sale Type | Investment | Proposed Use | Single Family Development |
| No. Lots | 1 | Total Lot Size | 178.00 AC |
| Property Type | Land | No. Stories | 1 |
| Zoning | AG - Agricultural Land | ||
| Price | $6,823,575 CAD |
| Sale Type | Investment |
| No. Lots | 1 |
| Property Type | Land |
| Property Subtype | Commercial |
| Proposed Use | Single Family Development |
| Total Lot Size | 178.00 AC |
| No. Stories | 1 |
| Zoning | AG - Agricultural Land |
1 LOT AVAILABLE
Lot
| Price | $6,823,575 CAD | Lot Size | 178.00 AC |
| Price Per AC | $38,334.69 CAD |
| Price | $6,823,575 CAD |
| Price Per AC | $38,334.69 CAD |
| Lot Size | 178.00 AC |
Majestic Hills is a prime 178.68 ± acre residential development opportunity located at 502 S Dixie Blvd, Radcliff, KY in Hardin County, just 45 miles south of Downtown Louisville. The site received development plan approval for 406 residential lots.
1 1
1 of 4
VIDEOS
MATTERPORT 3D EXTERIOR
MATTERPORT 3D TOUR
PHOTOS
STREET VIEW
STREET
MAP
1 of 1
Presented by
502 S Dixie Blvd - 502 S Dixie Blvd, Radcliff, KY 40160
Already a member? Log In
Hmm, there seems to have been an error sending your message. Please try again.
Thanks! Your message was sent.
