Your email has been sent.
La Jolla Cove Research Center 505 Coast Blvd S 145 - 25,975 SF of Space Available in La Jolla, CA 92037



All Available Spaces(14)
Display Rental Rate as
- Space
- Size
- Term
- Rental Rate
- Space Use
- Build-Out
- Available
Laboratory and office space equipped with benching, (3) fume hoods, (4) sinks, and (4) private offices. Operable windows.
- Lease rate does not include utilities, property expenses or building services
- Laboratory
- Fully Built-Out as Standard Office
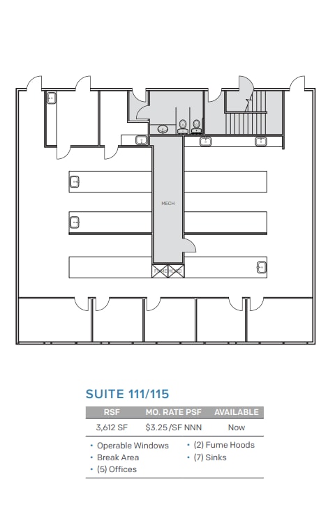
Wet laboratory space with benching, (2) fume hoods, lab support rooms w/ sinks for cell and tissue culture, (7) sinks, and (5) private offices.
- Lease rate does not include utilities, property expenses or building services
- Mostly Open Floor Plan Layout
- Laboratory
- Fully Built-Out as Standard Office
- 5 Private Offices
Private laboratory suite within the BSL-2 vivarium wing.
- Lease rate does not include utilities, property expenses or building services
- Open Floor Plan Layout
- Fully Built-Out as Standard Office
- Natural Light
Private laboratory suite within the BSL-2 vivarium wing.
- Lease rate does not include utilities, property expenses or building services
- Open Floor Plan Layout
- Fully Built-Out as Standard Office
Private laboratory suite within the BSL-2 vivarium wing.
- Lease rate does not include utilities, property expenses or building services
- Open Floor Plan Layout
- Fully Built-Out as Standard Office
New spec office suite with an open area, four (4) private offices, and a conference room.
- Rate includes utilities, building services and property expenses
- Mostly Open Floor Plan Layout
- 1 Conference Room
- Fully Built-Out as Standard Office
- 4 Private Offices
- Reception Area
Wet laboratory space equipped with benching, (2) fume hoods, (2) sinks, and three (3) private offices. Private balcony with ocean views.
- Lease rate does not include utilities, property expenses or building services
- Mostly Open Floor Plan Layout
- Laboratory
- Fully Built-Out as Standard Office
- 3 Private Offices
- Balcony
Private office in executive office wing.
- Rate includes utilities, building services and property expenses
- Open Floor Plan Layout
- Partially Built-Out as Standard Office
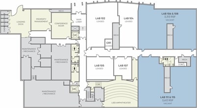
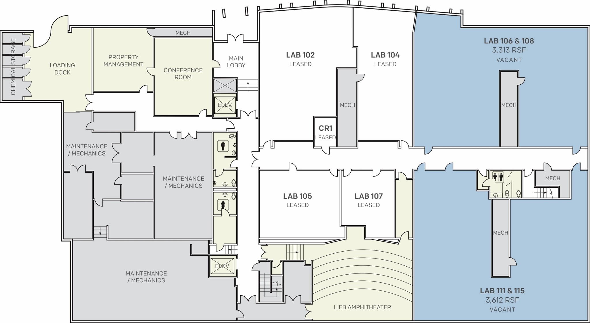
La Jolla Cove Research Center offers a rare opportunity to lease office and lab space in one of Southern California’s most prestigious coastal communities. This five-story, elevator-served property is designed for medical, office, and laboratory users, featuring flexible floor plans and specialized infrastructure. Tenants benefit from ocean-view offices, private balconies, and a rooftop terrace that provides an inspiring work environment. The property includes a shared conference center, an indoor amphitheater, and vivarium spaces, making it ideal for research and collaborative work. On-site management, maintenance, and a back-up generator ensure operational reliability. Located in the heart of La Jolla Village, the building is within walking distance of numerous dining, retail, and lifestyle amenities. Zoning (LJ PD-5) supports a wide range of professional and medical uses, while covered parking and additional spaces accommodate tenant needs. With its combination of functional lab buildouts, executive office suites, and premium coastal location, La Jolla Cove Research Center is a premier choice for organizations seeking a dynamic and well-equipped workplace.
- Fully Built-Out as Standard Office
- Reception Area
- 4 Private Offices
- Balcony
Wet laboratory space equipped with benching, (2) fume hoods, (2) sinks, and (2) private offices.
- Lease rate does not include utilities, property expenses or building services
- Mostly Open Floor Plan Layout
- Laboratory
- Fully Built-Out as Standard Office
- 2 Private Offices
Wet laboratory and office space equipped with benching, (4) lab support rooms, (5) fume hoods, (9) sinks, storage closet, and (9) private offices or conference rooms. Private balcony with ocean views.
- Lease rate does not include utilities, property expenses or building services
- Mostly Open Floor Plan Layout
- 1 Conference Room
- Balcony
- Fully Built-Out as Standard Office
- 9 Private Offices
- Laboratory
Newly completed spec wet laboratory space equipped with benching, (2) lab support rooms, (1) sink and a large office.
- Lease rate does not include utilities, property expenses or building services
- Mostly Open Floor Plan Layout
- Laboratory
- Fully Built-Out as Standard Office
- 3 Private Offices
Cold room currently used for storage.
- Lease rate does not include utilities, property expenses or building services
Shell condition.
- Fully Built-Out as Standard Office
- Balcony
- Mostly Open Floor Plan Layout
| Space | Size | Term | Rental Rate | Space Use | Build-Out | Available |
| 1st Floor, Ste 106/108 | 3,313 SF | Negotiable | $57.21 CAD/SF/YR $4.77 CAD/SF/MO $189,539 CAD/YR $15,795 CAD/MO | Office | Full Build-Out | Now |
| 1st Floor, Ste 111/115 | 3,612 SF | Negotiable | $53.12 CAD/SF/YR $4.43 CAD/SF/MO $191,885 CAD/YR $15,990 CAD/MO | Office | Full Build-Out | Now |
| 2nd Floor, Ste 205/B-1 | 827 SF | Negotiable | $57.21 CAD/SF/YR $4.77 CAD/SF/MO $47,313 CAD/YR $3,943 CAD/MO | Office | Full Build-Out | Now |
| 2nd Floor, Ste 205/H-5 | 367 SF | Negotiable | $51.49 CAD/SF/YR $4.29 CAD/SF/MO $18,897 CAD/YR $1,575 CAD/MO | Office | Full Build-Out | 30 Days |
| 2nd Floor, Ste 205/H-7 | 261 SF | Negotiable | $51.49 CAD/SF/YR $4.29 CAD/SF/MO $13,439 CAD/YR $1,120 CAD/MO | Office | Full Build-Out | Now |
| 2nd Floor, Ste 206 | 1,283 SF | Negotiable | $81.73 CAD/SF/YR $6.81 CAD/SF/MO $104,859 CAD/YR $8,738 CAD/MO | Office | Full Build-Out | Now |
| 2nd Floor, Ste 213 | 2,678 SF | Negotiable | $61.30 CAD/SF/YR $5.11 CAD/SF/MO $164,154 CAD/YR $13,679 CAD/MO | Office | Full Build-Out | Now |
| 3rd Floor, Ste 300-01 | 367 SF | Negotiable | $51.49 CAD/SF/YR $4.29 CAD/SF/MO $18,897 CAD/YR $1,575 CAD/MO | Office | Partial Build-Out | Now |
| 3rd Floor, Ste 307 | 2,538 SF | Negotiable | Upon Request Upon Request Upon Request Upon Request | Office | Full Build-Out | Now |
| 4th Floor, Ste 402 | 1,738 SF | Negotiable | $62.11 CAD/SF/YR $5.18 CAD/SF/MO $107,955 CAD/YR $8,996 CAD/MO | Office | Full Build-Out | Now |
| 4th Floor, Ste 404/405 | 5,194 SF | Negotiable | $77.64 CAD/SF/YR $6.47 CAD/SF/MO $403,278 CAD/YR $33,607 CAD/MO | Office | Full Build-Out | Now |
| 4th Floor, Ste 409/409A | 2,244 SF | Negotiable | $69.47 CAD/SF/YR $5.79 CAD/SF/MO $155,891 CAD/YR $12,991 CAD/MO | Office | Full Build-Out | Now |
| 4th Floor - CR-4 | 145 SF | Negotiable | $51.49 CAD/SF/YR $4.29 CAD/SF/MO $7,466 CAD/YR $622.17 CAD/MO | Industrial | Full Build-Out | Now |
| Penthouse, Ste 1 | 1,408 SF | Negotiable | Upon Request Upon Request Upon Request Upon Request | Office | Full Build-Out | 90 Days |
1st Floor, Ste 106/108
| Size |
| 3,313 SF |
| Term |
| Negotiable |
| Rental Rate |
| $57.21 CAD/SF/YR $4.77 CAD/SF/MO $189,539 CAD/YR $15,795 CAD/MO |
| Space Use |
| Office |
| Build-Out |
| Full Build-Out |
| Available |
| Now |
1st Floor, Ste 111/115
| Size |
| 3,612 SF |
| Term |
| Negotiable |
| Rental Rate |
| $53.12 CAD/SF/YR $4.43 CAD/SF/MO $191,885 CAD/YR $15,990 CAD/MO |
| Space Use |
| Office |
| Build-Out |
| Full Build-Out |
| Available |
| Now |
2nd Floor, Ste 205/B-1
| Size |
| 827 SF |
| Term |
| Negotiable |
| Rental Rate |
| $57.21 CAD/SF/YR $4.77 CAD/SF/MO $47,313 CAD/YR $3,943 CAD/MO |
| Space Use |
| Office |
| Build-Out |
| Full Build-Out |
| Available |
| Now |
2nd Floor, Ste 205/H-5
| Size |
| 367 SF |
| Term |
| Negotiable |
| Rental Rate |
| $51.49 CAD/SF/YR $4.29 CAD/SF/MO $18,897 CAD/YR $1,575 CAD/MO |
| Space Use |
| Office |
| Build-Out |
| Full Build-Out |
| Available |
| 30 Days |
2nd Floor, Ste 205/H-7
| Size |
| 261 SF |
| Term |
| Negotiable |
| Rental Rate |
| $51.49 CAD/SF/YR $4.29 CAD/SF/MO $13,439 CAD/YR $1,120 CAD/MO |
| Space Use |
| Office |
| Build-Out |
| Full Build-Out |
| Available |
| Now |
2nd Floor, Ste 206
| Size |
| 1,283 SF |
| Term |
| Negotiable |
| Rental Rate |
| $81.73 CAD/SF/YR $6.81 CAD/SF/MO $104,859 CAD/YR $8,738 CAD/MO |
| Space Use |
| Office |
| Build-Out |
| Full Build-Out |
| Available |
| Now |
2nd Floor, Ste 213
| Size |
| 2,678 SF |
| Term |
| Negotiable |
| Rental Rate |
| $61.30 CAD/SF/YR $5.11 CAD/SF/MO $164,154 CAD/YR $13,679 CAD/MO |
| Space Use |
| Office |
| Build-Out |
| Full Build-Out |
| Available |
| Now |
3rd Floor, Ste 300-01
| Size |
| 367 SF |
| Term |
| Negotiable |
| Rental Rate |
| $51.49 CAD/SF/YR $4.29 CAD/SF/MO $18,897 CAD/YR $1,575 CAD/MO |
| Space Use |
| Office |
| Build-Out |
| Partial Build-Out |
| Available |
| Now |
3rd Floor, Ste 307
| Size |
| 2,538 SF |
| Term |
| Negotiable |
| Rental Rate |
| Upon Request Upon Request Upon Request Upon Request |
| Space Use |
| Office |
| Build-Out |
| Full Build-Out |
| Available |
| Now |
4th Floor, Ste 402
| Size |
| 1,738 SF |
| Term |
| Negotiable |
| Rental Rate |
| $62.11 CAD/SF/YR $5.18 CAD/SF/MO $107,955 CAD/YR $8,996 CAD/MO |
| Space Use |
| Office |
| Build-Out |
| Full Build-Out |
| Available |
| Now |
4th Floor, Ste 404/405
| Size |
| 5,194 SF |
| Term |
| Negotiable |
| Rental Rate |
| $77.64 CAD/SF/YR $6.47 CAD/SF/MO $403,278 CAD/YR $33,607 CAD/MO |
| Space Use |
| Office |
| Build-Out |
| Full Build-Out |
| Available |
| Now |
4th Floor, Ste 409/409A
| Size |
| 2,244 SF |
| Term |
| Negotiable |
| Rental Rate |
| $69.47 CAD/SF/YR $5.79 CAD/SF/MO $155,891 CAD/YR $12,991 CAD/MO |
| Space Use |
| Office |
| Build-Out |
| Full Build-Out |
| Available |
| Now |
4th Floor - CR-4
| Size |
| 145 SF |
| Term |
| Negotiable |
| Rental Rate |
| $51.49 CAD/SF/YR $4.29 CAD/SF/MO $7,466 CAD/YR $622.17 CAD/MO |
| Space Use |
| Industrial |
| Build-Out |
| Full Build-Out |
| Available |
| Now |
Penthouse, Ste 1
| Size |
| 1,408 SF |
| Term |
| Negotiable |
| Rental Rate |
| Upon Request Upon Request Upon Request Upon Request |
| Space Use |
| Office |
| Build-Out |
| Full Build-Out |
| Available |
| 90 Days |
1st Floor, Ste 106/108
| Size | 3,313 SF |
| Term | Negotiable |
| Rental Rate | $57.21 CAD/SF/YR |
| Space Use | Office |
| Build-Out | Full Build-Out |
| Available | Now |
Laboratory and office space equipped with benching, (3) fume hoods, (4) sinks, and (4) private offices. Operable windows.
- Lease rate does not include utilities, property expenses or building services
- Fully Built-Out as Standard Office
- Laboratory
1st Floor, Ste 111/115
| Size | 3,612 SF |
| Term | Negotiable |
| Rental Rate | $53.12 CAD/SF/YR |
| Space Use | Office |
| Build-Out | Full Build-Out |
| Available | Now |
Wet laboratory space with benching, (2) fume hoods, lab support rooms w/ sinks for cell and tissue culture, (7) sinks, and (5) private offices.
- Lease rate does not include utilities, property expenses or building services
- Fully Built-Out as Standard Office
- Mostly Open Floor Plan Layout
- 5 Private Offices
- Laboratory
2nd Floor, Ste 205/B-1
| Size | 827 SF |
| Term | Negotiable |
| Rental Rate | $57.21 CAD/SF/YR |
| Space Use | Office |
| Build-Out | Full Build-Out |
| Available | Now |
Private laboratory suite within the BSL-2 vivarium wing.
- Lease rate does not include utilities, property expenses or building services
- Fully Built-Out as Standard Office
- Open Floor Plan Layout
- Natural Light
2nd Floor, Ste 205/H-5
| Size | 367 SF |
| Term | Negotiable |
| Rental Rate | $51.49 CAD/SF/YR |
| Space Use | Office |
| Build-Out | Full Build-Out |
| Available | 30 Days |
Private laboratory suite within the BSL-2 vivarium wing.
- Lease rate does not include utilities, property expenses or building services
- Fully Built-Out as Standard Office
- Open Floor Plan Layout
2nd Floor, Ste 205/H-7
| Size | 261 SF |
| Term | Negotiable |
| Rental Rate | $51.49 CAD/SF/YR |
| Space Use | Office |
| Build-Out | Full Build-Out |
| Available | Now |
Private laboratory suite within the BSL-2 vivarium wing.
- Lease rate does not include utilities, property expenses or building services
- Fully Built-Out as Standard Office
- Open Floor Plan Layout
2nd Floor, Ste 206
| Size | 1,283 SF |
| Term | Negotiable |
| Rental Rate | $81.73 CAD/SF/YR |
| Space Use | Office |
| Build-Out | Full Build-Out |
| Available | Now |
New spec office suite with an open area, four (4) private offices, and a conference room.
- Rate includes utilities, building services and property expenses
- Fully Built-Out as Standard Office
- Mostly Open Floor Plan Layout
- 4 Private Offices
- 1 Conference Room
- Reception Area
2nd Floor, Ste 213
| Size | 2,678 SF |
| Term | Negotiable |
| Rental Rate | $61.30 CAD/SF/YR |
| Space Use | Office |
| Build-Out | Full Build-Out |
| Available | Now |
Wet laboratory space equipped with benching, (2) fume hoods, (2) sinks, and three (3) private offices. Private balcony with ocean views.
- Lease rate does not include utilities, property expenses or building services
- Fully Built-Out as Standard Office
- Mostly Open Floor Plan Layout
- 3 Private Offices
- Laboratory
- Balcony
3rd Floor, Ste 300-01
| Size | 367 SF |
| Term | Negotiable |
| Rental Rate | $51.49 CAD/SF/YR |
| Space Use | Office |
| Build-Out | Partial Build-Out |
| Available | Now |
Private office in executive office wing.
- Rate includes utilities, building services and property expenses
- Partially Built-Out as Standard Office
- Open Floor Plan Layout
3rd Floor, Ste 307
| Size | 2,538 SF |
| Term | Negotiable |
| Rental Rate | Upon Request |
| Space Use | Office |
| Build-Out | Full Build-Out |
| Available | Now |
La Jolla Cove Research Center offers a rare opportunity to lease office and lab space in one of Southern California’s most prestigious coastal communities. This five-story, elevator-served property is designed for medical, office, and laboratory users, featuring flexible floor plans and specialized infrastructure. Tenants benefit from ocean-view offices, private balconies, and a rooftop terrace that provides an inspiring work environment. The property includes a shared conference center, an indoor amphitheater, and vivarium spaces, making it ideal for research and collaborative work. On-site management, maintenance, and a back-up generator ensure operational reliability. Located in the heart of La Jolla Village, the building is within walking distance of numerous dining, retail, and lifestyle amenities. Zoning (LJ PD-5) supports a wide range of professional and medical uses, while covered parking and additional spaces accommodate tenant needs. With its combination of functional lab buildouts, executive office suites, and premium coastal location, La Jolla Cove Research Center is a premier choice for organizations seeking a dynamic and well-equipped workplace.
- Fully Built-Out as Standard Office
- 4 Private Offices
- Reception Area
- Balcony
4th Floor, Ste 402
| Size | 1,738 SF |
| Term | Negotiable |
| Rental Rate | $62.11 CAD/SF/YR |
| Space Use | Office |
| Build-Out | Full Build-Out |
| Available | Now |
Wet laboratory space equipped with benching, (2) fume hoods, (2) sinks, and (2) private offices.
- Lease rate does not include utilities, property expenses or building services
- Fully Built-Out as Standard Office
- Mostly Open Floor Plan Layout
- 2 Private Offices
- Laboratory
4th Floor, Ste 404/405
| Size | 5,194 SF |
| Term | Negotiable |
| Rental Rate | $77.64 CAD/SF/YR |
| Space Use | Office |
| Build-Out | Full Build-Out |
| Available | Now |
Wet laboratory and office space equipped with benching, (4) lab support rooms, (5) fume hoods, (9) sinks, storage closet, and (9) private offices or conference rooms. Private balcony with ocean views.
- Lease rate does not include utilities, property expenses or building services
- Fully Built-Out as Standard Office
- Mostly Open Floor Plan Layout
- 9 Private Offices
- 1 Conference Room
- Laboratory
- Balcony
4th Floor, Ste 409/409A
| Size | 2,244 SF |
| Term | Negotiable |
| Rental Rate | $69.47 CAD/SF/YR |
| Space Use | Office |
| Build-Out | Full Build-Out |
| Available | Now |
Newly completed spec wet laboratory space equipped with benching, (2) lab support rooms, (1) sink and a large office.
- Lease rate does not include utilities, property expenses or building services
- Fully Built-Out as Standard Office
- Mostly Open Floor Plan Layout
- 3 Private Offices
- Laboratory
4th Floor - CR-4
| Size | 145 SF |
| Term | Negotiable |
| Rental Rate | $51.49 CAD/SF/YR |
| Space Use | Industrial |
| Build-Out | Full Build-Out |
| Available | Now |
Cold room currently used for storage.
- Lease rate does not include utilities, property expenses or building services
Penthouse, Ste 1
| Size | 1,408 SF |
| Term | Negotiable |
| Rental Rate | Upon Request |
| Space Use | Office |
| Build-Out | Full Build-Out |
| Available | 90 Days |
Shell condition.
- Fully Built-Out as Standard Office
- Mostly Open Floor Plan Layout
- Balcony
Property Overview
La Jolla Cove Research Center offers a rare opportunity to lease premier office and laboratory space in the heart of La Jolla’s vibrant coastal community. This five-story, elevator-served property provides a unique blend of professional office environments and specialized lab facilities, all within walking distance of the Village’s abundant amenities. Tenants enjoy breathtaking ocean views, a rooftop terrace, and executive office wings with private balconies, creating an inspiring work setting. The building is designed to support a wide range of uses, including office, medical, and laboratory operations, under LJ PD-5 zoning. Features include on-site management and maintenance, a back-up generator, autoclave and glass wash facilities, and vivarium spaces. A shared conference center and a 110-person amphitheater provide flexible meeting options for collaborative teams. With covered parking, proximity to major financial institutions, dining, and retail, and easy access to the scenic La Jolla coastline, this property combines functionality with an unmatched location. Biotech lab space for lease in La Jolla near UC San Diego. Coastal life science research facility in La Jolla Village. Plug-and-play wet laboratory suites with fume hoods. Research lab space with vivarium access in San Diego. Ocean view office and laboratory suites for biotech companies
- 24 Hour Access
- Bio-Tech/ Lab Space
- Controlled Access
- Conferencing Facility
- Courtyard
- Property Manager on Site
- Security System
- Waterfront
- Kitchen
- Reception
- Roof Terrace
- Storage Space
- Car Charging Station
- Central Heating
- Secure Storage
- Shower Facilities
- Sky Terrace
- Outdoor Seating
- Air Conditioning
- Balcony
Property Facts
Select Tenants
- Floor
- Tenant Name
- Industry
- 1st
- Biotronik
- Wholesaler
- 3rd
- Boz Life Science Research and Teaching Institute
- -
- 2nd
- Calci Medica Inc
- Manufacturing
- 3rd
- Cenna Biosciences
- -
- 1st
- Icb International
- Health Care and Social Assistance
- 3rd
- Prognosys Biosciences Inc
- Services
- 1st
- Rui Yi
- Professional, Scientific, and Technical Services
- 2nd
- Seoul Searcher
- -
- 3rd
- Singlera Genomics Inc
- Professional, Scientific, and Technical Services
- 2nd
- Teledyne Aerospace & Defense Electronics
- Manufacturing
Presented by
Company Not Provided
La Jolla Cove Research Center | 505 Coast Blvd S
Hmm, there seems to have been an error sending your message. Please try again.
Thanks! Your message was sent.




























