Your email has been sent.
Sublease Highlights
- Freestanding Class A office building in Downtown San Jose.
- Interior includes classrooms, computer labs, and private offices.
- Shared amenities feature a weight room, showers, lounge, and outdoor patio.
- Sublease availability from ±1,500 SF to ±20,623 SF for partial or full occupancy.
- Partial plug-and-play configuration for quick occupancy.
- Call listing brokers for more information.
All Available Spaces(2)
Display Rental Rate as
- Space
- Size
- Term
- Rental Rate
- Space Use
- Build-Out
- Available
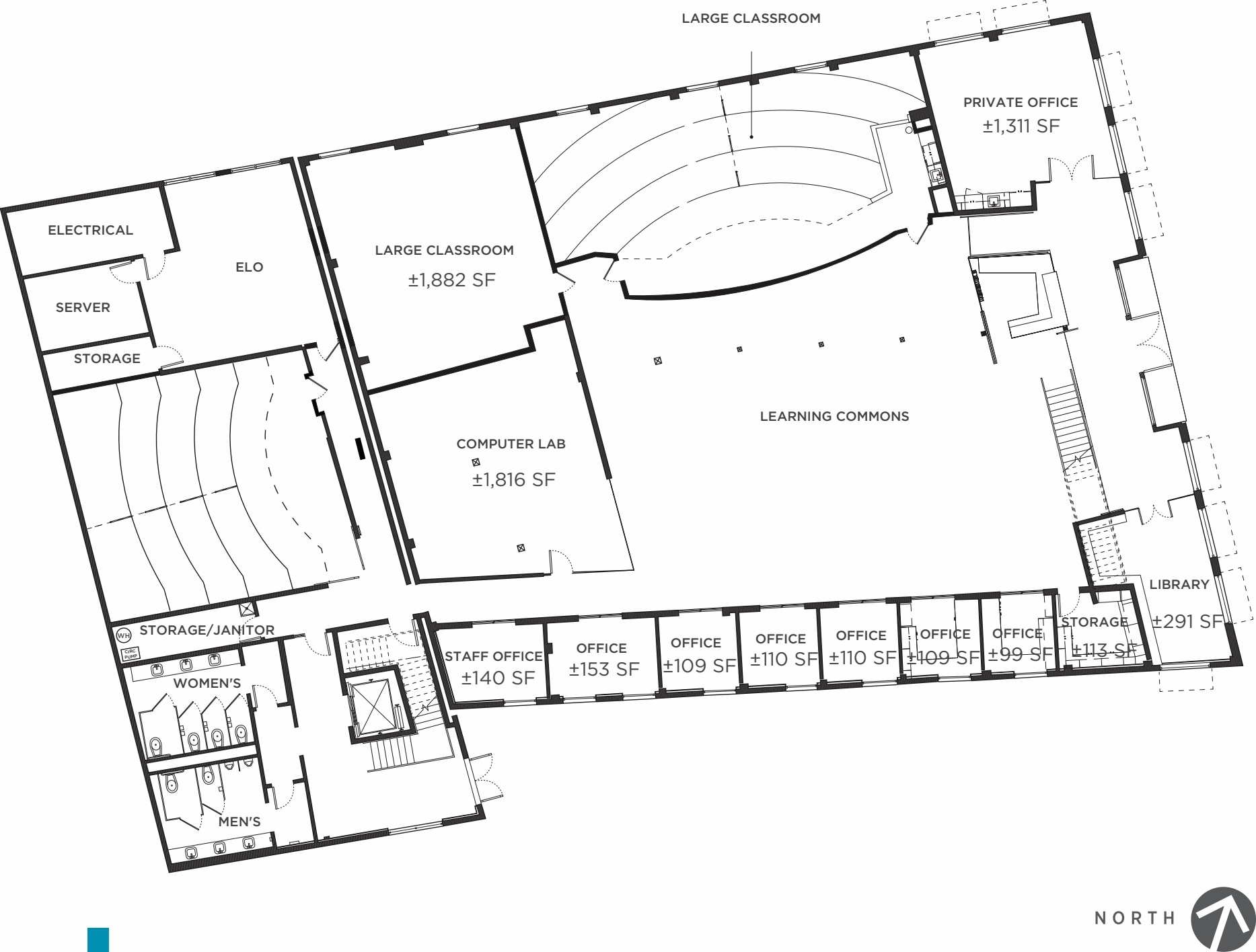
The first floor features a large classroom and a computer lab, providing flexible space for training or educational purposes. A spacious learning commons area serves as a central hub for collaboration and group activities. Multiple private offices and a library are located along the perimeter, offering quiet workspaces. Additional amenities include storage areas and restrooms for convenience.
- Sublease space available from current tenant
- Mostly Open Floor Plan Layout
- 8 Private Offices
- Space is in Excellent Condition
- Flexible classroom and computer lab spaces
- Onsite coffee shop and recreation room
- Lease rate does not include utilities, property expenses or building services
- Fits 4 - 83 People
- 4 Conference Rooms
- Can be combined with additional space(s) for up to 20,623 SF of adjacent space
- Multiple private offices and faculty work areas
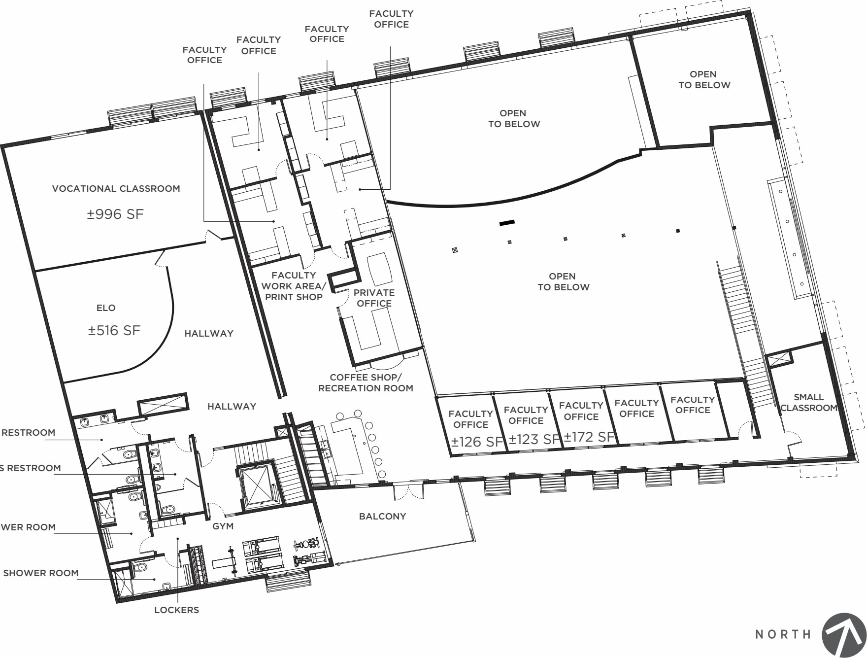
The second floor includes a vocational classroom and a dedicated ELO space, ideal for specialized programs or breakout sessions. Several faculty offices line the corridor, complemented by a coffee shop/recreation room and a balcony for informal gatherings. Fitness amenities such as a gym, shower rooms, and lockers are also available on this level. Open-to-below areas create a bright, airy environment with visual connectivity to the first floor.
- Sublease space available from current tenant
- Mostly Open Floor Plan Layout
- 10 Private Offices
- Space is in Excellent Condition
- Laboratory
- Secure Storage
- Shower Facilities
- Multiple private offices and faculty work areas
- Lease rate does not include utilities, property expenses or building services
- Fits 4 - 83 People
- 2 Conference Rooms
- Can be combined with additional space(s) for up to 20,623 SF of adjacent space
- Balcony
- Natural Light
- Flexible classroom and computer lab spaces
- Onsite coffee shop and recreation room
| Space | Size | Term | Rental Rate | Space Use | Build-Out | Available |
| 1st Floor, Ste 1st Floor | 1,500-10,311 SF | Negotiable | $45.71 CAD/SF/YR $3.81 CAD/SF/MO $471,348 CAD/YR $39,279 CAD/MO | Office | Partial Build-Out | Now |
| 2nd Floor, Ste 2nd Floor | 1,500-10,312 SF | Negotiable | $45.71 CAD/SF/YR $3.81 CAD/SF/MO $471,394 CAD/YR $39,283 CAD/MO | Office | Partial Build-Out | Now |
1st Floor, Ste 1st Floor
| Size |
| 1,500-10,311 SF |
| Term |
| Negotiable |
| Rental Rate |
| $45.71 CAD/SF/YR $3.81 CAD/SF/MO $471,348 CAD/YR $39,279 CAD/MO |
| Space Use |
| Office |
| Build-Out |
| Partial Build-Out |
| Available |
| Now |
2nd Floor, Ste 2nd Floor
| Size |
| 1,500-10,312 SF |
| Term |
| Negotiable |
| Rental Rate |
| $45.71 CAD/SF/YR $3.81 CAD/SF/MO $471,394 CAD/YR $39,283 CAD/MO |
| Space Use |
| Office |
| Build-Out |
| Partial Build-Out |
| Available |
| Now |
1st Floor, Ste 1st Floor
| Size | 1,500-10,311 SF |
| Term | Negotiable |
| Rental Rate | $45.71 CAD/SF/YR |
| Space Use | Office |
| Build-Out | Partial Build-Out |
| Available | Now |
The first floor features a large classroom and a computer lab, providing flexible space for training or educational purposes. A spacious learning commons area serves as a central hub for collaboration and group activities. Multiple private offices and a library are located along the perimeter, offering quiet workspaces. Additional amenities include storage areas and restrooms for convenience.
- Sublease space available from current tenant
- Lease rate does not include utilities, property expenses or building services
- Mostly Open Floor Plan Layout
- Fits 4 - 83 People
- 8 Private Offices
- 4 Conference Rooms
- Space is in Excellent Condition
- Can be combined with additional space(s) for up to 20,623 SF of adjacent space
- Flexible classroom and computer lab spaces
- Multiple private offices and faculty work areas
- Onsite coffee shop and recreation room
2nd Floor, Ste 2nd Floor
| Size | 1,500-10,312 SF |
| Term | Negotiable |
| Rental Rate | $45.71 CAD/SF/YR |
| Space Use | Office |
| Build-Out | Partial Build-Out |
| Available | Now |
The second floor includes a vocational classroom and a dedicated ELO space, ideal for specialized programs or breakout sessions. Several faculty offices line the corridor, complemented by a coffee shop/recreation room and a balcony for informal gatherings. Fitness amenities such as a gym, shower rooms, and lockers are also available on this level. Open-to-below areas create a bright, airy environment with visual connectivity to the first floor.
- Sublease space available from current tenant
- Lease rate does not include utilities, property expenses or building services
- Mostly Open Floor Plan Layout
- Fits 4 - 83 People
- 10 Private Offices
- 2 Conference Rooms
- Space is in Excellent Condition
- Can be combined with additional space(s) for up to 20,623 SF of adjacent space
- Laboratory
- Balcony
- Secure Storage
- Natural Light
- Shower Facilities
- Flexible classroom and computer lab spaces
- Multiple private offices and faculty work areas
- Onsite coffee shop and recreation room
Property Overview
505 S. Market Street is a freestanding Class A office building available for sublease in the heart of Downtown San Jose. The property offers ±1,500 SF to ±20,623 SF of flexible space, accommodating partial or full occupancy. Interior features include classrooms, computer labs, private offices, and collaborative learning commons. Tenants benefit from shared amenities such as a weight room, showers, lounge, and outdoor patio. The building provides on-site parking and is within walking distance to public transportation, with easy access to Highways 87 and 280. Downtown retail, dining, and entertainment options are located nearby, creating a convenient and vibrant work environment.
- Atrium
- Fitness Center
- Signage
- Skylights
- Reception
- Storage Space
- Atrium
- High Ceilings
- Natural Light
- Open-Plan
- Partitioned Offices
- Plug & Play
- Reception
- Wi-Fi
- Outdoor Seating
- Balcony
Property Facts
Select Tenants
- Floor
- Tenant Name
- Industry
- Multiple
- California Miramar University
- Educational Services
- Unknown
- LP Consulting Engineers Inc
- Professional, Scientific, and Technical Services
- Unknown
- Rocklin Building General Partnership
- Construction
Sustainability
Sustainability
LEED Certification Developed by the U.S. Green Building Council (USGBC), the Leadership in Energy and Environmental Design (LEED) is a green building certification program focused on the design, construction, operation, and maintenance of green buildings, homes, and neighborhoods, which aims to help building owners and operators be environmentally responsible and use resources efficiently. LEED certification is a globally recognized symbol of sustainability achievement and leadership. To achieve LEED certification, a project earns points by adhering to prerequisites and credits that address carbon, energy, water, waste, transportation, materials, health and indoor environmental quality. Projects go through a verification and review process and are awarded points that correspond to a level of LEED certification: Platinum (80+ points) Gold (60-79 points) Silver (50-59 points) Certified (40-49 points)
Presented by
505 S Market St
Hmm, there seems to have been an error sending your message. Please try again.
Thanks! Your message was sent.







