Your email has been sent.
Highlights
- Prime location in growing Market: Increased demand for healthcare services
- Strong Demographics: Diverse patient or client base for medical and office users
- Ample Parking & ADA Accessibility: A must-have for medical practices
- Easy Accessibility: Located near Route 13 and Route 1
- Proximity to Nearby Medical Providers: Ideal for synergy/referral opportunities
- Shell Condition Space: A blank canvas, allowing for easy and customized fit-out
All Available Space(1)
Display Rental Rate as
- Space
- Size
- Term
- Rental Rate
- Space Use
- Build-Out
- Available
Space is in shell condition
- Lease rate does not include utilities, property expenses or building services
| Space | Size | Term | Rental Rate | Space Use | Build-Out | Available |
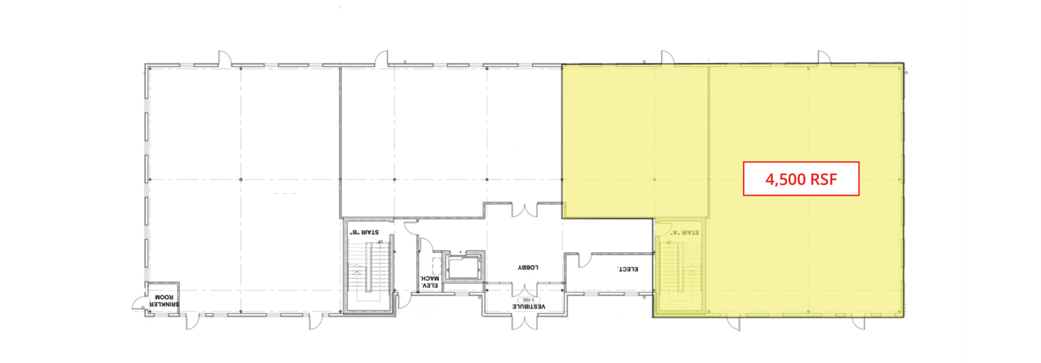
| 1st Floor | 4,814 SF | Negotiable | $28.65 CAD/SF/YR $2.39 CAD/SF/MO $137,916 CAD/YR $11,493 CAD/MO | Office/Medical | - | Now |
1st Floor
| Size |
| 4,814 SF |
| Term |
| Negotiable |
| Rental Rate |
| $28.65 CAD/SF/YR $2.39 CAD/SF/MO $137,916 CAD/YR $11,493 CAD/MO |
| Space Use |
| Office/Medical |
| Build-Out |
| - |
| Available |
| Now |
1st Floor
| Size | 4,814 SF |
| Term | Negotiable |
| Rental Rate | $28.65 CAD/SF/YR |
| Space Use | Office/Medical |
| Build-Out | - |
| Available | Now |
Space is in shell condition
- Lease rate does not include utilities, property expenses or building services
Property Overview
Join Kirkwood Dental Associates, Smyrna Pediatric Dentistry, and Delaware Orthodontics! This is an exceptional opportunity to lease first-floor medical/general office space in Huntfield Plaza, Smyrna’s premier medical office building. Situated in the rapidly expanding South Smyrna area, this prime location offers unmatched convenience and accessibility, making it an ideal choice for medical practices and general offices alike. The building is ideally situated just off Exit 114 of State Route 1, the primary north/south artery in the state.
Property Facts
Presented by
Huntfield Plaza | 51 Huntfield Dr
Hmm, there seems to have been an error sending your message. Please try again.
Thanks! Your message was sent.





