Your email has been sent.
The Lincoln Apartments 510 Flatbush Ave 5,245 SF of 4-Star Office/Retail Space Available in Brooklyn, NY 11225



Highlights
- Storefront space in fully occupied rental property with 141 units. High traffic area located next to Prospect Park and B/Q/S trains.
All Available Space(1)
Display Rental Rate as
- Space
- Size
- Term
- Rental Rate
- Space Use
- Build-Out
- Available
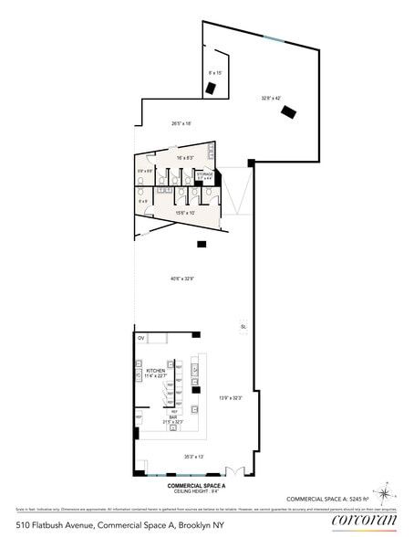
Metered for electric, heat, and AC. Annual RE taxes can be requested from 2024 by estimate. New Commercial Listing - Two spaces that can be leases together or separately previously used as a restaurant/bar/wellness center. Space is located in a fully occupied 141 unit residential property in a high traffic area and just 1 block from Prospect Park and 1/2 block to B/Q/S trains. Alternative floor plans and pricing are available, please call for more information. Space A: 5,245sf - $23,000 Occupancy 450 Metered for electric, heat and AC Annual RE taxes - request 2024 for estimate Bar and kitchen are in place and many of the items are for sale if business in interested. 8 restrooms Up to 3 months build-out time offered 5 year lease minimum *No live music venues, no cannabis businesses. Can be leased with space B connected if full space is required or they may be leased separately. Space B: 1600sf - $5,700 Occupancy 50 Metered for electric, heat and AC Annual RE taxes - request 2024 for estimate Previously used as a yoga studio and wellness center. Yoga area has a skylight and there is a custom-built Himalayan salt cave that is the largest in NYC. Space has items for sale that may or may not still be available at the time of lease including infrared sauna, sauna and cold plunge. Max 2 months of build out time offered. 5 year lease minimum 1 restroom
- Space is in Excellent Condition
- Located in-line with other retail
| Space | Size | Term | Rental Rate | Space Use | Build-Out | Available |
| 1st Floor, Ste A | 5,245 SF | 5-10 Years | $71.76 CAD/SF/YR $5.98 CAD/SF/MO $376,376 CAD/YR $31,365 CAD/MO | Office/Retail | Full Build-Out | Now |
1st Floor, Ste A
| Size |
| 5,245 SF |
| Term |
| 5-10 Years |
| Rental Rate |
| $71.76 CAD/SF/YR $5.98 CAD/SF/MO $376,376 CAD/YR $31,365 CAD/MO |
| Space Use |
| Office/Retail |
| Build-Out |
| Full Build-Out |
| Available |
| Now |
1st Floor, Ste A
| Size | 5,245 SF |
| Term | 5-10 Years |
| Rental Rate | $71.76 CAD/SF/YR |
| Space Use | Office/Retail |
| Build-Out | Full Build-Out |
| Available | Now |
Metered for electric, heat, and AC. Annual RE taxes can be requested from 2024 by estimate. New Commercial Listing - Two spaces that can be leases together or separately previously used as a restaurant/bar/wellness center. Space is located in a fully occupied 141 unit residential property in a high traffic area and just 1 block from Prospect Park and 1/2 block to B/Q/S trains. Alternative floor plans and pricing are available, please call for more information. Space A: 5,245sf - $23,000 Occupancy 450 Metered for electric, heat and AC Annual RE taxes - request 2024 for estimate Bar and kitchen are in place and many of the items are for sale if business in interested. 8 restrooms Up to 3 months build-out time offered 5 year lease minimum *No live music venues, no cannabis businesses. Can be leased with space B connected if full space is required or they may be leased separately. Space B: 1600sf - $5,700 Occupancy 50 Metered for electric, heat and AC Annual RE taxes - request 2024 for estimate Previously used as a yoga studio and wellness center. Yoga area has a skylight and there is a custom-built Himalayan salt cave that is the largest in NYC. Space has items for sale that may or may not still be available at the time of lease including infrared sauna, sauna and cold plunge. Max 2 months of build out time offered. 5 year lease minimum 1 restroom
- Space is in Excellent Condition
- Located in-line with other retail
About the Property
New Commercial Listing - This space is located in a fully occupied 141 unit residential property in a high traffic area and just 1 block from Prospect Park and 1/2 block to B/Q/S trains. The building currently has a supermarket and personal training studio as commercial tenants. Ideal location for medical office, day care, doggie daycare/grooming and boarding, retail, cafe, yoga studio, barre studio, spin classes, book store, educational center, apothecary, co-working space and more. Space A: 5,245sf - $23,000 Occupancy 450 Metered for electric, heat and AC Annual RE taxes - request 2024 for estimate 8 restrooms Up to 3 months build-out time offered 5 year lease minimum *No live music venues or no cannabis businesses permitted.
Property Facts
| Total Space Available | 5,245 SF | Apartment Style | Mid-Rise |
| No. Units | 51 | Building Size | 77,490 SF |
| Property Type | Multifamily | Year Built | 2017 |
| Property Subtype | Apartment |
| Total Space Available | 5,245 SF |
| No. Units | 51 |
| Property Type | Multifamily |
| Property Subtype | Apartment |
| Apartment Style | Mid-Rise |
| Building Size | 77,490 SF |
| Year Built | 2017 |
Presented by
The Lincoln Apartments | 510 Flatbush Ave
Hmm, there seems to have been an error sending your message. Please try again.
Thanks! Your message was sent.



