Your email has been sent.
Highlights
- This versatile property offers an ideal blend of warehouse, retail, and fitness potential within a highly accessible West Side Cincinnati corridor.
- The site benefits from strong visibility and traffic counts of approximately seventeen thousand nine hundred vehicles per day at Glenway Avenue and Cr
- Prominent signage opportunities along Crookshank enhance brand exposure for incoming users.
- Two convenient drive-in doors and clear heights ranging from fourteen to sixteen feet support a wide range of operational needs.
- Formerly occupied by KOI Auto Parts, the building lends itself well to service, distribution, or customer-facing business models.
Space Availability (1)
Display Rental Rate as
- Space
- Size
- Term
- Rental Rate
- Rent Type
| Space | Size | Term | Rental Rate | Rent Type | ||
| 1st Floor | 6,900 SF | 3-5 Years | $12.32 CAD/SF/YR $1.03 CAD/SF/MO $84,980 CAD/YR $7,082 CAD/MO | Triple Net (NNN) |
1st Floor
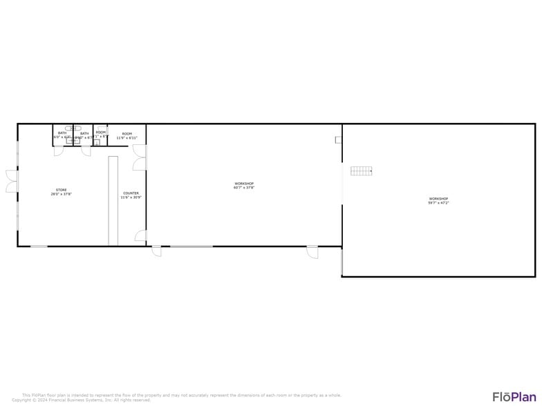
The available space totals approximately 6,900 square feet and is configured for flexible retail, warehouse, or fitness-oriented use. Two ten-foot drive-in doors provide efficient loading and customer access, supported by clear heights between fourteen and sixteen feet. Positioned at the Glenway and Crookshank intersection, the property captures excellent exposure from nearly eighteen thousand vehicles daily. Previously home to KOI Auto Parts, the space is well suited for operators seeking visibility, accessibility, and adaptable floor area. Offered at $9.95 per square foot plus $1.81 NNN, this location presents strong value within a high-traffic commercial corridor.
- Lease rate does not include utilities, property expenses or building services
- Partially Built-Out as Standard Retail Space
- Space is an outparcel at this property
- Anchor Space
- Central Air and Heating
- Private Restrooms
- High Ceilings
- Exposed Ceiling
- After Hours HVAC Available
- Display Window
- Excellent Retail/Warehouse/Fitness Location
Rent Types
The rent amount and type that the tenant (lessee) will be responsible to pay to the landlord (lessor) throughout the lease term is negotiated prior to both parties signing a lease agreement. The rent type will vary depending upon the services provided. For example, triple net rents are typically lower than full service rents due to additional expenses the tenant is required to pay in addition to the base rent. Contact the listing broker for a full understanding of any associated costs or additional expenses for each rent type.
1. Full Service: A rental rate that includes normal building standard services as provided by the landlord within a base year rental.
2. Double Net (NN): Tenant pays for only two of the building expenses; the landlord and tenant determine the specific expenses prior to signing the lease agreement.
3. Triple Net (NNN): A lease in which the tenant is responsible for all expenses associated with their proportional share of occupancy of the building.
4. Modified Gross: Modified Gross is a general type of lease rate where typically the tenant will be responsible for their proportional share of one or more of the expenses. The landlord will pay the remaining expenses. See the below list of common Modified Gross rental rate structures: 4. Plus All Utilities: A type of Modified Gross Lease where the tenant is responsible for their proportional share of utilities in addition to the rent. 4. Plus Cleaning: A type of Modified Gross Lease where the tenant is responsible for their proportional share of cleaning in addition to the rent. 4. Plus Electric: A type of Modified Gross Lease where the tenant is responsible for their proportional share of the electrical cost in addition to the rent. 4. Plus Electric & Cleaning: A type of Modified Gross Lease where the tenant is responsible for their proportional share of the electrical and cleaning cost in addition to the rent. 4. Plus Utilities and Char: A type of Modified Gross Lease where the tenant is responsible for their proportional share of the utilities and cleaning cost in addition to the rent. 4. Industrial Gross: A type of Modified Gross lease where the tenant pays one or more of the expenses in addition to the rent. The landlord and tenant determine these prior to signing the lease agreement.
5. Tenant Electric: The landlord pays for all services and the tenant is responsible for their usage of lights and electrical outlets in the space they occupy.
6. Negotiable or Upon Request: Used when the leasing contact does not provide the rent or service type.
7. TBD: To be determined; used for buildings for which no rent or service type is known, commonly utilized when the buildings are not yet built.
Select Tenants at 5101 Crookshank Rd, Cincinnati, OH 45238
- Tenant
- Description
- US Locations
- Reach
- Construction
- Construction
- -
- -
- Koi Auto Parts
- Automotive
- 59
- Regional
- Retail Location
- Retailer
- -
- -
- Wholesale
- Wholesaler
- -
- -
| Tenant | Description | US Locations | Reach |
| Construction | Construction | - | - |
| Koi Auto Parts | Automotive | 59 | Regional |
| Retail Location | Retailer | - | - |
| Wholesale | Wholesaler | - | - |
Property Facts
| Total Space Available | 6,900 SF | Gross Leasable Area | 6,989 SF |
| Property Type | Retail | Year Built | 1959 |
| Property Subtype | Freestanding | Parking Ratio | 0.86/1,000 SF |
| Total Space Available | 6,900 SF |
| Property Type | Retail |
| Property Subtype | Freestanding |
| Gross Leasable Area | 6,989 SF |
| Year Built | 1959 |
| Parking Ratio | 0.86/1,000 SF |
About the Property
Property Highlights • High-Impact Visibility: Command attention with exposure to over 17,900 vehicles per day (VPD). This is a proven destination for automotive, retail, or service-oriented businesses. • Flexible Industrial Features: * Clear Height: 14' to 16' ceilings, providing ample vertical volume for racking or equipment. Loading: (2) 10' Drive-in Doors, ideal for effortless inventory management or vehicle service. • Functional Layout: The 6,900+/- SF footprint offers a seamless blend of showroom potential and back-stock/warehouse space.
- 24 Hour Access
- Controlled Access
- Signage
- Tenant Controlled HVAC
- Wheelchair Accessible
Nearby Major Retailers
Presented by
5101 Crookshank Rd
Hmm, there seems to have been an error sending your message. Please try again.
Thanks! Your message was sent.



