Your email has been sent.
Office + Warehouse/Flex Space 511 N Clairemont Ave 5,740 - 13,400 SF of Flex Space Available in Eau Claire, WI 54703



Highlights
- Warehouse + Office Space
- Several Space Options: from 5,740 Sf; 7,700 Sf, or 13,400 Sf
- Near Major Highways
Features
All Available Space(1)
Display Rental Rate as
- Space
- Size
- Term
- Rental Rate
- Space Use
- Build-Out
- Available
- Listed rate may not include certain utilities, building services and property expenses
- Ample Parking
- Truck Dock and Grade-Door options
- Several Sizes: 5,740 Sf; 7,400 Sf; or 13,400 Sf
- 3 Phase Power
- Near Carson Park
| Space | Size | Term | Rental Rate | Space Use | Build-Out | Available |
| 1st Floor | 5,740-13,400 SF | Negotiable | Upon Request Upon Request Upon Request Upon Request | Flex | - | Now |
1st Floor
| Size |
| 5,740-13,400 SF |
| Term |
| Negotiable |
| Rental Rate |
| Upon Request Upon Request Upon Request Upon Request |
| Space Use |
| Flex |
| Build-Out |
| - |
| Available |
| Now |
1st Floor
| Size | 5,740-13,400 SF |
| Term | Negotiable |
| Rental Rate | Upon Request |
| Space Use | Flex |
| Build-Out | - |
| Available | Now |
- Listed rate may not include certain utilities, building services and property expenses
- Several Sizes: 5,740 Sf; 7,400 Sf; or 13,400 Sf
- Ample Parking
- 3 Phase Power
- Truck Dock and Grade-Door options
- Near Carson Park
Property Overview
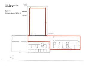
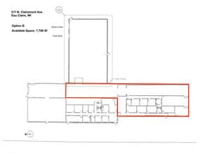
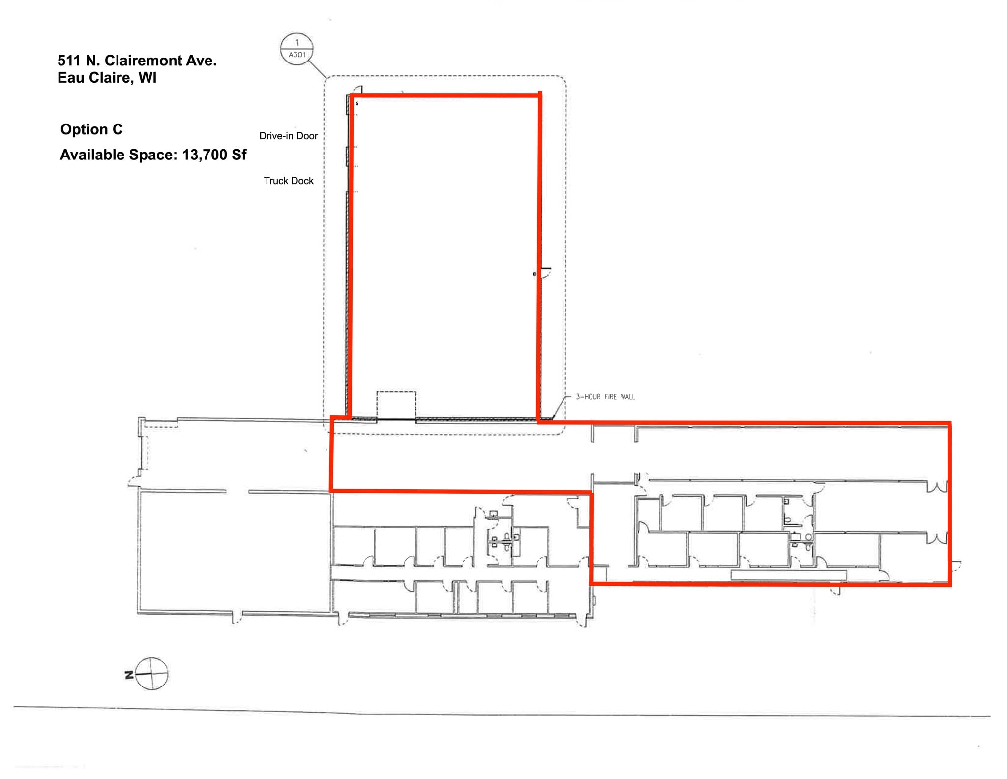
Office + Warehouse/Storage Available - conveniently located in the heart of Eau Claire, just off N. Clairemont Avenue, near Carson Park & 1 block north of The Sonnetag Center/Menomonie St. This flexible space has several size options between 5,740 Sf; 7,400 Sf; to 13,700 Sf are available for lease. Features include: ample parking for staff/ fleet vehicles & storage, very nice conference room, flexible office layouts, 3-phase power, truck-dock and grade-door options, walkable to new Half Moon Lake boardwalk trail, Rod & Gun Park, and Carson Park. Option A: 5,740 Sf @ $12/Sf/Yr + Utilities (comprised of 4,090 Sf Office + 1,650 Sf Warehouse/Storage). Option B: 7,400 Sf @ $10/Sf/Yr + Utilities (comprised of 4,090 Sf Office + 3,310 Sf Warehouse / Storage). Option C: 13,400 Sf @ $8/Sf + Utilities (4,090 Sf Office + 9,310 Sf Warehouse). Nice conference room. 5-6 Individual Offices. Owner may consider remodeling for qualified tenants on a longer (5+ Year) lease. Rent for any remodeling quoted separately.
Warehouse Facility Facts
Select Tenants
- Tenant Name
- Industry
- Peters Real Estate Group
- Real Estate
Presented by
Office + Warehouse/Flex Space | 511 N Clairemont Ave
Hmm, there seems to have been an error sending your message. Please try again.
Thanks! Your message was sent.



