Log In/Sign Up
Your email has been sent.
5122 Timber Ridge Rd - Timber Ridge Residential 5.13 Acres of Residential Land Offered at $3,972,159 CAD in Marietta, GA 30068



Investment Highlights
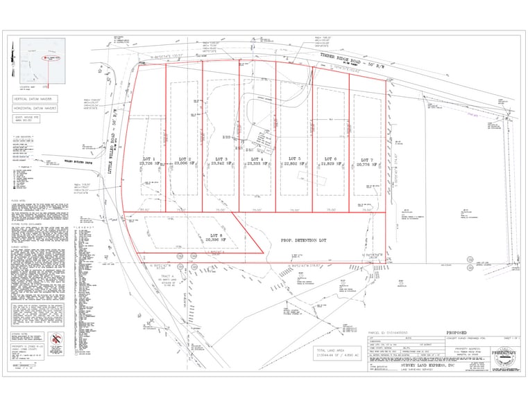
- Subdivision plan in progress for 8 residential lots
- Located in top-rated Cobb County school district
- Over 200,000 residents within 5 miles
- Completed site plan and hydrology report included
- Surrounded by mature trees and flat terrain
- Average household income exceeds $180,000 nearby
Executive Summary
Nestled in the heart of East Cobb, 5122 Timber Ridge Road presents a rare opportunity to acquire ±5.3 acres of prime residential land in one of metro Atlanta’s most desirable submarkets. Positioned at the corner of Timber Ridge and Little Willeo Roads, this heavily wooded parcel offers a serene setting with mature trees and gentle topography, ideal for a boutique subdivision or custom estate development.
The property is zoned R-20 and is currently undergoing subdivision into eight residential lots, supported by a completed site plan and hydrology report. An existing ranch-style home sits mid-site, offering potential for renovation or removal. The location is a standout, with proximity to Timber Ridge Elementary, Dickerson Middle, and Walton High—three of Cobb County’s most sought-after public schools.
Residents will enjoy easy access to the Chattahoochee River, nearby parks, and the vibrant retail and dining corridors of East Cobb. The area boasts exceptional demographics, with over 200,000 residents within a five-mile radius and average household incomes exceeding $180,000. This combination of strong market fundamentals, excellent schools, and natural beauty makes 5122 Timber Ridge Road a compelling investment for developers or private buyers seeking a premium residential site.
The property is zoned R-20 and is currently undergoing subdivision into eight residential lots, supported by a completed site plan and hydrology report. An existing ranch-style home sits mid-site, offering potential for renovation or removal. The location is a standout, with proximity to Timber Ridge Elementary, Dickerson Middle, and Walton High—three of Cobb County’s most sought-after public schools.
Residents will enjoy easy access to the Chattahoochee River, nearby parks, and the vibrant retail and dining corridors of East Cobb. The area boasts exceptional demographics, with over 200,000 residents within a five-mile radius and average household incomes exceeding $180,000. This combination of strong market fundamentals, excellent schools, and natural beauty makes 5122 Timber Ridge Road a compelling investment for developers or private buyers seeking a premium residential site.
Property Facts
| Price | $3,972,159 CAD | Property Subtype | Residential |
| Sale Type | Investment | Proposed Use | |
| No. Lots | 1 | Total Lot Size | 5.13 AC |
| Property Type | Land | No. Stories | 1 |
| Zoning | R-20 - Single-Family Residential District | ||
| Price | $3,972,159 CAD |
| Sale Type | Investment |
| No. Lots | 1 |
| Property Type | Land |
| Property Subtype | Residential |
| Proposed Use | |
| Total Lot Size | 5.13 AC |
| No. Stories | 1 |
| Zoning | R-20 - Single-Family Residential District |
1 Lot Available
Lot
| Price | $3,972,159 CAD | Lot Size | 5.13 AC |
| Price Per AC | $774,299.98 CAD |
| Price | $3,972,159 CAD |
| Price Per AC | $774,299.98 CAD |
| Lot Size | 5.13 AC |
Flat, wooded site with existing ranch home with Subdivision plan for 8 lots
1 1
Somewhat walkable
30/100
Exceptionally drivable
90/100
Fairly bikeable
50/100
Property Taxes
| Parcel Number | 01-0164-0-005-0 | Improvements Assessment | $79,081 CAD |
| Land Assessment | $467,645 CAD | Total Assessment | $546,725 CAD |
Property Taxes
Parcel Number
01-0164-0-005-0
Land Assessment
$467,645 CAD
Improvements Assessment
$79,081 CAD
Total Assessment
$546,725 CAD
1 of 13
Videos
Matterport 3D Exterior
Matterport 3D Tour
Photos
Street View
Street
Map
1 of 1
Presented by
5122 Timber Ridge Rd - Timber Ridge Residential
Already a member? Log In
Hmm, there seems to have been an error sending your message. Please try again.
Thanks! Your message was sent.
