Log In/Sign Up
Your email has been sent.
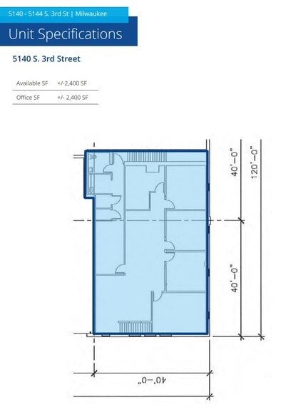
5140 S 3rd St
Milwaukee, WI 53207
Office Property For Lease
·
2,400 SF


Highlights
- Located just one block from General Mitchell International Airport
- Potential to add additional loading
- 0.5 miles from I-94 and 894 on ramp
Features
Clear Height
18’
Drive In Bays
1
Levelers
3
Standard Parking Spaces
25
Property Overview
Second floor office space available for lease. Contact brokers for further details.
Warehouse Facility Facts
Building Size
16,800 SF
Lot Size
1.73 AC
Year Built
1978
Construction
Masonry
Lighting
Metal Halide
Heating
Gas
Power Supply
Amps: 100-200 Volts: 120-208 Phase: 3 Wire: 4
Zoning
IL-1 - Light Industrial District
1 of 3
Videos
Matterport 3D Exterior
Matterport 3D Tour
Photos
Street View
Street
Map
