Share This Listing

Message

953 characters remaining

Hmm, there seems to have been an error sending your message. Please try again.

Your email has been sent.

5165 Broadway
Depew, NY 14043
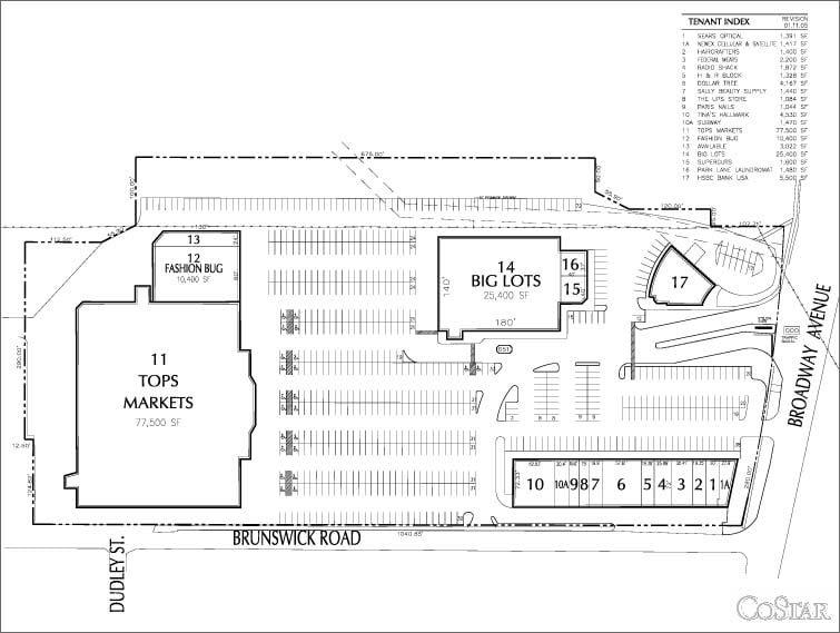
D&L Plaza · Retail Property For Lease · 2,808 SF

Highlights

  • 2,808 SF End Cap Space Available

Property Facts

Total Space Available 2,808 SF
Center Type Community Center
Parking 1080 Spaces
Stores 19
Center Properties 4
Frontage
490’ on Broadway St
  • 1,065’ on Brunswick Rd
Gross Leasable Area 150,665 SF
Total Land Area 13.39 AC
Year Built 1960
Cross Streets SEC Broadway & Brunswick Rd

About the Property

D&L Plaza is a proven neighborhood grocery-anchored shopping center in Depew, where the former Nickel City Brewz space is now available for lease as a highly visible endcap opportunity within an otherwise occupied center. The property features a strong lineup of daily-needs retail, service, food, and fitness tenants, and has been further strengthened by the recent opening of Planet Fitness in the former Big Lots space, bringing fresh energy and additional customer traffic to the plaza. Situated along Broadway, D&L Plaza is a well-known retail destination serving the surrounding Depew and Lancaster communities with a dependable mix of convenience, necessity, and service-oriented tenancy. The center benefits from strong visibility, easy ingress and egress, ample parking, and a diverse co-tenancy mix that supports traffic throughout the day. The former Nickel City Brewz space offers excellent frontage, signage presence, and accessibility, creating a compelling opportunity for a retailer, restaurant, or service operator looking to join a stable, fully merchandised shopping center.

  • Pylon Sign
  • Signage
  • Listing ID: 39875821

  • Date on Market: 2026-03-23

  • Last Updated:

  • Address: 5165 Broadway, Depew, NY 14043

Link copied
Your LoopNet account has been created!

Please Share Your Feedback

We welcome any feedback on how we can improve LoopNet to better serve your needs.
X
{{ getErrorText(feedbackForm.starRating, "rating") }}
255 character limit ({{ remainingChars() }} charactercharacters remainingover)
{{ getErrorText(feedbackForm.msg, "rating") }}
{{ getErrorText(feedbackForm.fname, "first name") }}
{{ getErrorText(feedbackForm.lname, "last name") }}
{{ getErrorText(feedbackForm.phone, "phone number") }}
{{ getErrorText(feedbackForm.phonex, "phone extension") }}
{{ getErrorText(feedbackForm.email, "email address") }}