Your email has been sent.
Brook Hollow Norcross, GA 30071 4,864 - 30,406 SF of Space Available



Park Highlights
- Excellent location on Brook Hollow Parkway with easy access to Indian Trail and Jimmy Carter Blvd. I-85 exits
- Competitive base rental rate and below market opex costs
- Stellar property managment
- Renovated suites with LVP flooring, updated fixtures and clean warehouses
- All spaces have roll up doors with primarily dock high loading
- High end flex curb appeal
Park Facts
Features and Amenities
- 24 Hour Access
- Signage
- Storage Space
- Air Conditioning
Display Rental Rate as
- Space
- Size
- Term
- Rental Rate
- Space Use
- Build-Out
- Available
Newly renovated flex space with super access to I-85 and Brook Hollow Parkway.
- Lease rate does not include utilities, property expenses or building services
- Space is in Excellent Condition
- Newly renovated flex space with dock high loading
- Includes 1,598 SF of dedicated office space
- 1 Loading Dock
| Space | Size | Term | Rental Rate | Space Use | Build-Out | Available |
| 1st Floor - 5172 D | 4,864 SF | Negotiable | Upon Request Upon Request Upon Request Upon Request | Flex | Partial Build-Out | Now |
5172 Brook Hollow Pkwy - 1st Floor - 5172 D
- Space
- Size
- Term
- Rental Rate
- Space Use
- Build-Out
- Available
Newly renovated flex space with super access to I-85 and Brook Hollow Parkway.
- Lease rate does not include utilities, property expenses or building services
- Space is in Excellent Condition
- Newly renovated flex space with dock high loading
- Includes 1,598 SF of dedicated office space
- 1 Loading Dock
- Includes 1,672 SF of dedicated office space
- 1 Loading Dock
- Can be combined with additional space(s) for up to 14,678 SF of adjacent space
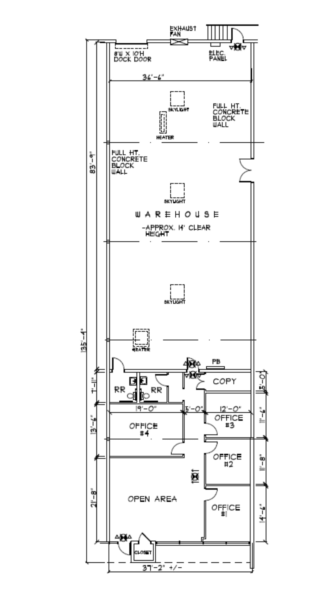
Super flex space close to Indian Trail and Jimmy Carter exits. Three private offices, break room and large warehouse with dock high loading.
- Includes 1,338 SF of dedicated office space
- 1 Loading Dock
- Can be combined with additional space(s) for up to 14,678 SF of adjacent space
- Lease rate does not include utilities, property expenses or building services
- Can be combined with additional space(s) for up to 14,678 SF of adjacent space
- Includes 1,368 SF of dedicated office space
- 1 Loading Dock
| Space | Size | Term | Rental Rate | Space Use | Build-Out | Available |
| 1st Floor - 5172 D | 4,864 SF | Negotiable | Upon Request Upon Request Upon Request Upon Request | Flex | Partial Build-Out | Now |
| 1st Floor - 5172 F | 4,864 SF | 3-10 Years | Upon Request Upon Request Upon Request Upon Request | Industrial | Shell Space | Now |
| 1st Floor - 5172 G | 4,864 SF | 3-10 Years | Upon Request Upon Request Upon Request Upon Request | Industrial | Partial Build-Out | Now |
| 1st Floor - 5172H | 4,950 SF | Negotiable | Upon Request Upon Request Upon Request Upon Request | Industrial | Partial Build-Out | Now |
5172 Brook Hollow Pkwy - 1st Floor - 5172 D
5172 Brook Hollow Pkwy - 1st Floor - 5172 F
5172 Brook Hollow Pkwy - 1st Floor - 5172 G
5172 Brook Hollow Pkwy - 1st Floor - 5172H
- Space
- Size
- Term
- Rental Rate
- Space Use
- Build-Out
- Available
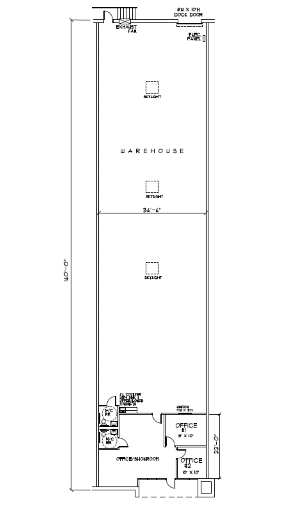
Renovated showroom and industrial warehouse with I-85 frontage. Bright interior. Update break and restrooms. Dock High loading.
- Includes 850 SF of dedicated office space
- 1 Loading Dock
- Space is in Excellent Condition
| Space | Size | Term | Rental Rate | Space Use | Build-Out | Available |
| 1st Floor - 5182 C | 6,000 SF | 3-10 Years | Upon Request Upon Request Upon Request Upon Request | Industrial | Partial Build-Out | Now |
5182 Brook Hollow Pky - 1st Floor - 5182 C
- Space
- Size
- Term
- Rental Rate
- Space Use
- Build-Out
- Available
- Includes 1,680 SF of dedicated office space
- 1 Loading Dock
- Space is in Excellent Condition
| Space | Size | Term | Rental Rate | Space Use | Build-Out | Available |
| 1st Floor - 5202 E | 4,864 SF | 3-10 Years | Upon Request Upon Request Upon Request Upon Request | Industrial | Partial Build-Out | Now |
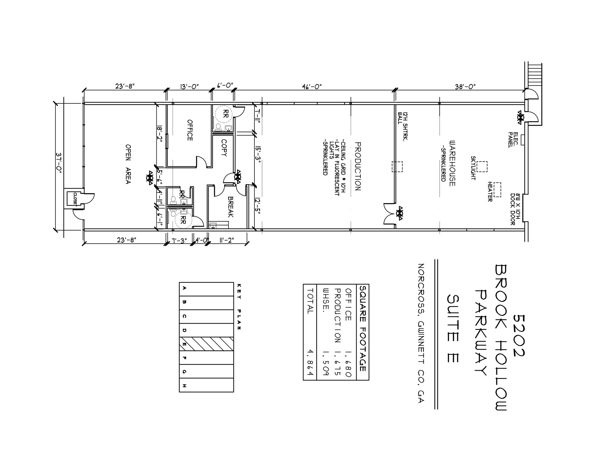
5202 Brook Hollow Pky - 1st Floor - 5202 E
5172 Brook Hollow Pkwy - 1st Floor - 5172 D
| Size | 4,864 SF |
| Term | Negotiable |
| Rental Rate | Upon Request |
| Space Use | Flex |
| Build-Out | Partial Build-Out |
| Available | Now |
Newly renovated flex space with super access to I-85 and Brook Hollow Parkway.
- Lease rate does not include utilities, property expenses or building services
- Includes 1,598 SF of dedicated office space
- Space is in Excellent Condition
- 1 Loading Dock
- Newly renovated flex space with dock high loading
5172 Brook Hollow Pkwy - 1st Floor - 5172 F
| Size | 4,864 SF |
| Term | 3-10 Years |
| Rental Rate | Upon Request |
| Space Use | Industrial |
| Build-Out | Shell Space |
| Available | Now |
- Includes 1,672 SF of dedicated office space
- Can be combined with additional space(s) for up to 14,678 SF of adjacent space
- 1 Loading Dock
5172 Brook Hollow Pkwy - 1st Floor - 5172 G
| Size | 4,864 SF |
| Term | 3-10 Years |
| Rental Rate | Upon Request |
| Space Use | Industrial |
| Build-Out | Partial Build-Out |
| Available | Now |
Super flex space close to Indian Trail and Jimmy Carter exits. Three private offices, break room and large warehouse with dock high loading.
- Includes 1,338 SF of dedicated office space
- Can be combined with additional space(s) for up to 14,678 SF of adjacent space
- 1 Loading Dock
5172 Brook Hollow Pkwy - 1st Floor - 5172H
| Size | 4,950 SF |
| Term | Negotiable |
| Rental Rate | Upon Request |
| Space Use | Industrial |
| Build-Out | Partial Build-Out |
| Available | Now |
- Lease rate does not include utilities, property expenses or building services
- Includes 1,368 SF of dedicated office space
- Can be combined with additional space(s) for up to 14,678 SF of adjacent space
- 1 Loading Dock
5182 Brook Hollow Pky - 1st Floor - 5182 C
| Size | 6,000 SF |
| Term | 3-10 Years |
| Rental Rate | Upon Request |
| Space Use | Industrial |
| Build-Out | Partial Build-Out |
| Available | Now |
Renovated showroom and industrial warehouse with I-85 frontage. Bright interior. Update break and restrooms. Dock High loading.
- Includes 850 SF of dedicated office space
- Space is in Excellent Condition
- 1 Loading Dock
5202 Brook Hollow Pky - 1st Floor - 5202 E
| Size | 4,864 SF |
| Term | 3-10 Years |
| Rental Rate | Upon Request |
| Space Use | Industrial |
| Build-Out | Partial Build-Out |
| Available | Now |
- Includes 1,680 SF of dedicated office space
- Space is in Excellent Condition
- 1 Loading Dock
Select Tenants at This Property
- Floor
- Tenant Name
- Industry
- 1st
- Atlanta Glass System
- Construction
- 1st
- Helget Gas Products
- Retailer
- 1st
- Mac Paper Inc.
- Manufacturing
- 1st
- NatureScapes, Inc.
- Construction
- 1st
- Perimeter Church, Inc.
- Services
- 1st
- RDI Systems, LLC
- Wholesaler
- 1st
- Snider Tire, Inc.
- Retailer
- 1st
- Unique Wholesale
- Retailer
- 1st
- Whaley Foodservice
- Manufacturing
- 1st
- World Smart LED
- Manufacturing
Park Overview
Super convenient 6 building single-story flex/industrial complex located on Brook Hollow Parkway seconds from the I-85 Indian Trail Exit and minutes from the Jimmy Carter Blvd. exit. All suites have roll up doors with dock high loading, updated LVP flooring and refreshed restroom and fixtures. Stellar property management.
Presented by
Brook Hollow | Norcross, GA 30071
Hmm, there seems to have been an error sending your message. Please try again.
Thanks! Your message was sent.













