Log In/Sign Up
Your email has been sent.
Investment Highlights
- Strategic infill location near Camp North End and Uptown Charlotte
- ML-2 zoning supports diverse industrial and specialty uses
- Potential for site expansion through street abandonment
- Three loading docks plus rare interior dock well for efficient operations
- Showroom space ideal for client interaction or creative display
Executive Summary
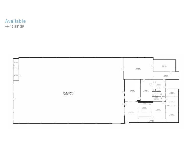
Located in Charlotte’s rapidly evolving North End submarket, this +/- 16,281 SF industrial facility offers a rare infill opportunity with functional features and future upside. Positioned just minutes from Camp North End, one of Charlotte’s most dynamic mixed-use development hubs, the property benefits from strong long-term value, central access, and proximity to Uptown Charlotte and major transportation corridors.
The building is currently operated as a custom cabinetry shop and features three loading docks, a beautiful showroom area, a rare interior dock well, distinctive wood plank ceilings with steel joists, and a functional layout well suited for light manufacturing, specialty industrial users, or creative production. The infill location and existing improvements provide immediate usability for owner-users or tenants seeking a strategic urban industrial presence.
The site offers potential to expand overall acreage through the abandonment of bordering streets, subject to buyer verification and municipal approvals. The property is marketed for sale; however, the owner will entertain lease offers, providing flexibility for users seeking access to the location without immediate ownership.
The building is currently operated as a custom cabinetry shop and features three loading docks, a beautiful showroom area, a rare interior dock well, distinctive wood plank ceilings with steel joists, and a functional layout well suited for light manufacturing, specialty industrial users, or creative production. The infill location and existing improvements provide immediate usability for owner-users or tenants seeking a strategic urban industrial presence.
The site offers potential to expand overall acreage through the abandonment of bordering streets, subject to buyer verification and municipal approvals. The property is marketed for sale; however, the owner will entertain lease offers, providing flexibility for users seeking access to the location without immediate ownership.
Property Facts
| Sale Type | Owner User | Year Built | 1956 |
| Property Type | Industrial | Tenancy | Single |
| Property Subtype | Warehouse | Parking Ratio | 2.46/1,000 SF |
| Building Class | C | Clear Ceiling Height | 13’ |
| Lot Size | 0.80 AC | No. Dock-High Doors/Loading | 2 |
| Rentable Building Area | 16,281 SF | No. Drive In / Grade-Level Doors | 1 |
| No. Stories | 1 | Opportunity Zone |
Yes
|
| Zoning | ML-2 - Phase Unit Development Opportunity Zone. Zoned ML-2 | ||
| Sale Type | Owner User |
| Property Type | Industrial |
| Property Subtype | Warehouse |
| Building Class | C |
| Lot Size | 0.80 AC |
| Rentable Building Area | 16,281 SF |
| No. Stories | 1 |
| Year Built | 1956 |
| Tenancy | Single |
| Parking Ratio | 2.46/1,000 SF |
| Clear Ceiling Height | 13’ |
| No. Dock-High Doors/Loading | 2 |
| No. Drive In / Grade-Level Doors | 1 |
| Opportunity Zone |
Yes |
| Zoning | ML-2 - Phase Unit Development Opportunity Zone. Zoned ML-2 |
Amenities
- Fenced Lot
Utilities
- Gas - Natural
- Water - City
- Sewer - City
- Heating - Gas
Moderately walkable
60/100
Exceptionally drivable
90/100
Some public transit
50/100
Fairly bikeable
50/100
Property Taxes
| Parcel Number | 079-017-28 | Improvements Assessment | $503,929 CAD |
| Land Assessment | $812,158 CAD | Total Assessment | $1,316,086 CAD |
Property Taxes
Parcel Number
079-017-28
Land Assessment
$812,158 CAD
Improvements Assessment
$503,929 CAD
Total Assessment
$1,316,086 CAD
1 of 15
Videos
Matterport 3D Exterior
Matterport 3D Tour
Photos
Street View
Street
Map
Presented by
519 Armour Dr
Already a member? Log In
Hmm, there seems to have been an error sending your message. Please try again.
Thanks! Your message was sent.




