Your email has been sent.
Garden City Medical Center 520 Franklin Ave 200 - 7,362 SF of Space Available in Garden City, NY 11530



Display Rental Rate as
- Space
- Size
- Term
- Rental Rate
- Space Use
- Build-Out
- Available
- Listed rate may not include certain utilities, building services and property expenses
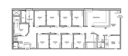
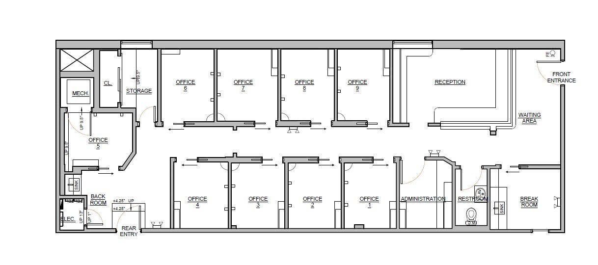
- 9 Private Offices
- Reception Area
- Fully Built-Out as Standard Office
- Space is in Excellent Condition
- Fully Built-Out as Standard Office
- Space is in Excellent Condition
- Office intensive layout
- Fully Built-Out as Standard Office
- Space is in Excellent Condition
- Office intensive layout
2,388 SF available - can be combined with suite 253 for a total of 4055 SF.
- Listed rate may not include certain utilities, building services and property expenses
- Mostly Open Floor Plan Layout
- Can be combined with additional space(s) for up to 4,055 SF of adjacent space
- Fully Built-Out as Standard Office
- Space is in Excellent Condition
- Reception Area
1,667 SF available - can be combined with Suite 251A for a total of 4055 Sf
- Listed rate may not include certain utilities, building services and property expenses
- Mostly Open Floor Plan Layout
- Can be combined with additional space(s) for up to 4,055 SF of adjacent space
- Fully Built-Out as Standard Office
- Space is in Excellent Condition
- Reception Area
| Space | Size | Term | Rental Rate | Space Use | Build-Out | Available |
| Lower Level, Ste L-9 | 1,964 SF | Negotiable | $33.06 CAD/SF/YR $2.76 CAD/SF/MO $64,930 CAD/YR $5,411 CAD/MO | Office | Full Build-Out | Now |
| Lower Level, Ste L21-D | 200 SF | Negotiable | Upon Request Upon Request Upon Request Upon Request | Office | Full Build-Out | Now |
| Lower Level, Ste L6-F | 200 SF | Negotiable | Upon Request Upon Request Upon Request Upon Request | Office | Full Build-Out | Now |
| 2nd Floor, Ste 251A | 2,388 SF | Negotiable | $50.28 CAD/SF/YR $4.19 CAD/SF/MO $120,066 CAD/YR $10,005 CAD/MO | Office | Full Build-Out | Now |
| 2nd Floor, Ste 253 | 1,667 SF | Negotiable | $50.28 CAD/SF/YR $4.19 CAD/SF/MO $83,815 CAD/YR $6,985 CAD/MO | Office | Full Build-Out | Now |
Lower Level, Ste L-9
| Size |
| 1,964 SF |
| Term |
| Negotiable |
| Rental Rate |
| $33.06 CAD/SF/YR $2.76 CAD/SF/MO $64,930 CAD/YR $5,411 CAD/MO |
| Space Use |
| Office |
| Build-Out |
| Full Build-Out |
| Available |
| Now |
Lower Level, Ste L21-D
| Size |
| 200 SF |
| Term |
| Negotiable |
| Rental Rate |
| Upon Request Upon Request Upon Request Upon Request |
| Space Use |
| Office |
| Build-Out |
| Full Build-Out |
| Available |
| Now |
Lower Level, Ste L6-F
| Size |
| 200 SF |
| Term |
| Negotiable |
| Rental Rate |
| Upon Request Upon Request Upon Request Upon Request |
| Space Use |
| Office |
| Build-Out |
| Full Build-Out |
| Available |
| Now |
2nd Floor, Ste 251A
| Size |
| 2,388 SF |
| Term |
| Negotiable |
| Rental Rate |
| $50.28 CAD/SF/YR $4.19 CAD/SF/MO $120,066 CAD/YR $10,005 CAD/MO |
| Space Use |
| Office |
| Build-Out |
| Full Build-Out |
| Available |
| Now |
2nd Floor, Ste 253
| Size |
| 1,667 SF |
| Term |
| Negotiable |
| Rental Rate |
| $50.28 CAD/SF/YR $4.19 CAD/SF/MO $83,815 CAD/YR $6,985 CAD/MO |
| Space Use |
| Office |
| Build-Out |
| Full Build-Out |
| Available |
| Now |
- Space
- Size
- Term
- Rental Rate
- Space Use
- Build-Out
- Available
- Listed rate may not include certain utilities, building services and property expenses
- 9 Private Offices
- Reception Area
- Fully Built-Out as Standard Office
- Space is in Excellent Condition
- Fully Built-Out as Standard Office
- Space is in Excellent Condition
- Office intensive layout
- Fully Built-Out as Standard Office
- Space is in Excellent Condition
- Office intensive layout
- Listed rate may not include certain utilities, building services and property expenses
- Fully Built-Out as Standard Medical Space
2,388 SF available - can be combined with suite 253 for a total of 4055 SF.
- Listed rate may not include certain utilities, building services and property expenses
- Mostly Open Floor Plan Layout
- Can be combined with additional space(s) for up to 4,055 SF of adjacent space
- Fully Built-Out as Standard Office
- Space is in Excellent Condition
- Reception Area
1,667 SF available - can be combined with Suite 251A for a total of 4055 Sf
- Listed rate may not include certain utilities, building services and property expenses
- Mostly Open Floor Plan Layout
- Can be combined with additional space(s) for up to 4,055 SF of adjacent space
- Fully Built-Out as Standard Office
- Space is in Excellent Condition
- Reception Area
| Space | Size | Term | Rental Rate | Space Use | Build-Out | Available |
| Lower Level, Ste L-9 | 1,964 SF | Negotiable | $33.06 CAD/SF/YR $2.76 CAD/SF/MO $64,930 CAD/YR $5,411 CAD/MO | Office | Full Build-Out | Now |
| Lower Level, Ste L21-D | 200 SF | Negotiable | Upon Request Upon Request Upon Request Upon Request | Office | Full Build-Out | Now |
| Lower Level, Ste L6-F | 200 SF | Negotiable | Upon Request Upon Request Upon Request Upon Request | Office | Full Build-Out | Now |
| 1st Floor, Ste 114 | 943 SF | Negotiable | $50.28 CAD/SF/YR $4.19 CAD/SF/MO $47,413 CAD/YR $3,951 CAD/MO | Medical | Full Build-Out | Now |
| 2nd Floor, Ste 251A | 2,388 SF | Negotiable | $50.28 CAD/SF/YR $4.19 CAD/SF/MO $120,066 CAD/YR $10,005 CAD/MO | Office | Full Build-Out | Now |
| 2nd Floor, Ste 253 | 1,667 SF | Negotiable | $50.28 CAD/SF/YR $4.19 CAD/SF/MO $83,815 CAD/YR $6,985 CAD/MO | Office | Full Build-Out | Now |
Lower Level, Ste L-9
| Size |
| 1,964 SF |
| Term |
| Negotiable |
| Rental Rate |
| $33.06 CAD/SF/YR $2.76 CAD/SF/MO $64,930 CAD/YR $5,411 CAD/MO |
| Space Use |
| Office |
| Build-Out |
| Full Build-Out |
| Available |
| Now |
Lower Level, Ste L21-D
| Size |
| 200 SF |
| Term |
| Negotiable |
| Rental Rate |
| Upon Request Upon Request Upon Request Upon Request |
| Space Use |
| Office |
| Build-Out |
| Full Build-Out |
| Available |
| Now |
Lower Level, Ste L6-F
| Size |
| 200 SF |
| Term |
| Negotiable |
| Rental Rate |
| Upon Request Upon Request Upon Request Upon Request |
| Space Use |
| Office |
| Build-Out |
| Full Build-Out |
| Available |
| Now |
1st Floor, Ste 114
| Size |
| 943 SF |
| Term |
| Negotiable |
| Rental Rate |
| $50.28 CAD/SF/YR $4.19 CAD/SF/MO $47,413 CAD/YR $3,951 CAD/MO |
| Space Use |
| Medical |
| Build-Out |
| Full Build-Out |
| Available |
| Now |
2nd Floor, Ste 251A
| Size |
| 2,388 SF |
| Term |
| Negotiable |
| Rental Rate |
| $50.28 CAD/SF/YR $4.19 CAD/SF/MO $120,066 CAD/YR $10,005 CAD/MO |
| Space Use |
| Office |
| Build-Out |
| Full Build-Out |
| Available |
| Now |
2nd Floor, Ste 253
| Size |
| 1,667 SF |
| Term |
| Negotiable |
| Rental Rate |
| $50.28 CAD/SF/YR $4.19 CAD/SF/MO $83,815 CAD/YR $6,985 CAD/MO |
| Space Use |
| Office |
| Build-Out |
| Full Build-Out |
| Available |
| Now |
Lower Level, Ste L-9
| Size | 1,964 SF |
| Term | Negotiable |
| Rental Rate | $33.06 CAD/SF/YR |
| Space Use | Office |
| Build-Out | Full Build-Out |
| Available | Now |
- Listed rate may not include certain utilities, building services and property expenses
- Fully Built-Out as Standard Office
- 9 Private Offices
- Space is in Excellent Condition
- Reception Area
Lower Level, Ste L21-D
| Size | 200 SF |
| Term | Negotiable |
| Rental Rate | Upon Request |
| Space Use | Office |
| Build-Out | Full Build-Out |
| Available | Now |
- Fully Built-Out as Standard Office
- Office intensive layout
- Space is in Excellent Condition
Lower Level, Ste L6-F
| Size | 200 SF |
| Term | Negotiable |
| Rental Rate | Upon Request |
| Space Use | Office |
| Build-Out | Full Build-Out |
| Available | Now |
- Fully Built-Out as Standard Office
- Office intensive layout
- Space is in Excellent Condition
1st Floor, Ste 114
| Size | 943 SF |
| Term | Negotiable |
| Rental Rate | $50.28 CAD/SF/YR |
| Space Use | Medical |
| Build-Out | Full Build-Out |
| Available | Now |
- Listed rate may not include certain utilities, building services and property expenses
- Fully Built-Out as Standard Medical Space
2nd Floor, Ste 251A
| Size | 2,388 SF |
| Term | Negotiable |
| Rental Rate | $50.28 CAD/SF/YR |
| Space Use | Office |
| Build-Out | Full Build-Out |
| Available | Now |
2,388 SF available - can be combined with suite 253 for a total of 4055 SF.
- Listed rate may not include certain utilities, building services and property expenses
- Fully Built-Out as Standard Office
- Mostly Open Floor Plan Layout
- Space is in Excellent Condition
- Can be combined with additional space(s) for up to 4,055 SF of adjacent space
- Reception Area
2nd Floor, Ste 253
| Size | 1,667 SF |
| Term | Negotiable |
| Rental Rate | $50.28 CAD/SF/YR |
| Space Use | Office |
| Build-Out | Full Build-Out |
| Available | Now |
1,667 SF available - can be combined with Suite 251A for a total of 4055 Sf
- Listed rate may not include certain utilities, building services and property expenses
- Fully Built-Out as Standard Office
- Mostly Open Floor Plan Layout
- Space is in Excellent Condition
- Can be combined with additional space(s) for up to 4,055 SF of adjacent space
- Reception Area
Features and Amenities
- Property Manager on Site
Property Facts
Presented by
Garden City Medical Center | 520 Franklin Ave
Hmm, there seems to have been an error sending your message. Please try again.
Thanks! Your message was sent.








