Your email has been sent.
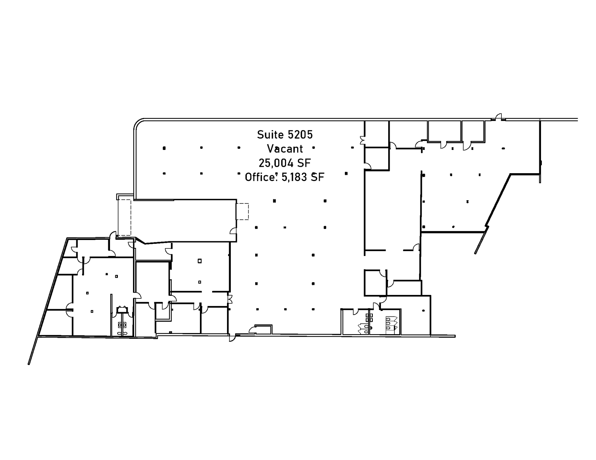
5205 Grant Ave. 5205 Grant Ave 25,004 SF of Industrial Space Available in Garfield Heights, OH 44125


Features
All Available Space(1)
Display Rental Rate as
- Space
- Size
- Term
- Rental Rate
- Space Use
- Build-Out
- Available
This warehouse space for lease features 25,004 SF with 5,183 SF of office, 1 dock, and 3 drive-ins. It is located in Cuyahoga Heights and is within 1 minute to I-77. All major highways are easily accessible and Downtown Cleveland is an easy drive. Make this building tops on your tour list. Contact Weston today for further information.
- Listed rate may not include certain utilities, building services and property expenses
- Includes 5,183 SF of dedicated office space
| Space | Size | Term | Rental Rate | Space Use | Build-Out | Available |
| 1st Floor | 25,004 SF | 3-20 Years | $6.85 CAD/SF/YR $0.57 CAD/SF/MO $171,329 CAD/YR $14,277 CAD/MO | Industrial | - | Now |
1st Floor
| Size |
| 25,004 SF |
| Term |
| 3-20 Years |
| Rental Rate |
| $6.85 CAD/SF/YR $0.57 CAD/SF/MO $171,329 CAD/YR $14,277 CAD/MO |
| Space Use |
| Industrial |
| Build-Out |
| - |
| Available |
| Now |
1st Floor
| Size | 25,004 SF |
| Term | 3-20 Years |
| Rental Rate | $6.85 CAD/SF/YR |
| Space Use | Industrial |
| Build-Out | - |
| Available | Now |
This warehouse space for lease features 25,004 SF with 5,183 SF of office, 1 dock, and 3 drive-ins. It is located in Cuyahoga Heights and is within 1 minute to I-77. All major highways are easily accessible and Downtown Cleveland is an easy drive. Make this building tops on your tour list. Contact Weston today for further information.
- Listed rate may not include certain utilities, building services and property expenses
- Includes 5,183 SF of dedicated office space
Property Overview
5205 Grant Ave: This warehouse space for lease features 25,004 SF with 5,183 SF of office, 1 dock, and 3 drive-ins. It is located in Cuyahoga Heights and is within 1 minute to I-77. All major highways are easily accessible and Downtown Cleveland is an easy drive. Make this building tops on your tour list. Contact Weston today for further information.
Manufacturing Facility Facts
Presented by
5205 Grant Ave. | 5205 Grant Ave
Hmm, there seems to have been an error sending your message. Please try again.
Thanks! Your message was sent.


