Log In/Sign Up
Your email has been sent.
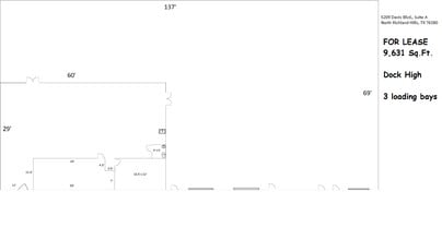
5209 Davis Blvd 9,631 SF of Flex Space Available in North Richland Hills, TX 76180



Features
Clear Height
17’
Exterior Dock Doors
2
Standard Parking Spaces
24
All Available Space(1)
Display Rental Rate as
- Space
- Size
- Term
- Rental Rate
- Space Use
- Build-Out
- Available
- Lease rate does not include utilities, property expenses or building services
| Space | Size | Term | Rental Rate | Space Use | Build-Out | Available |
| 1st Floor - A | 9,631 SF | Negotiable | $11.31 CAD/SF/YR $0.94 CAD/SF/MO $108,922 CAD/YR $9,077 CAD/MO | Flex | Full Build-Out | 30 Days |
1st Floor - A
| Size |
| 9,631 SF |
| Term |
| Negotiable |
| Rental Rate |
| $11.31 CAD/SF/YR $0.94 CAD/SF/MO $108,922 CAD/YR $9,077 CAD/MO |
| Space Use |
| Flex |
| Build-Out |
| Full Build-Out |
| Available |
| 30 Days |
1 of 1
Videos
Matterport 3D Exterior
Matterport 3D Tour
Photos
Street View
Street
Map
1st Floor - A
| Size | 9,631 SF |
| Term | Negotiable |
| Rental Rate | $11.31 CAD/SF/YR |
| Space Use | Flex |
| Build-Out | Full Build-Out |
| Available | 30 Days |
- Lease rate does not include utilities, property expenses or building services
Property Overview
Three phase power available. Three dock high loading bays. Around 1,700 sq.ft. of office/showroom space.
Property Facts
Building Size
24,407 SF
Lot Size
1.25 AC
Year Built
1984
Construction
Masonry
Select Tenants
- Floor
- Tenant Name
- Industry
- 1st
- AC Supply Company
- Wholesaler
- 1st
- ACCU Floor
- Professional, Scientific, and Technical Services
- 1st
- Fort Worth Jsb Co Inc
- Manufacturing
- 1st
- Kyte Baby
- Retailer
1 1
Fairly walkable
50/100
Exceptionally drivable
90/100
Limited public transit
20/100
Fairly bikeable
50/100
1 of 10
Videos
Matterport 3D Exterior
Matterport 3D Tour
Photos
Street View
Street
Map
1 of 1
Presented by
Cityspace Real Estate, Inc.
5209 Davis Blvd
Already a member? Log In
Hmm, there seems to have been an error sending your message. Please try again.
Thanks! Your message was sent.


