Your email has been sent.
Friendship Medical Center 5225 Wisconsin Ave NW 798 - 24,295 SF of Office/Medical Space Available in Washington, DC 20015



Highlights
- Building upgrades to enhance the patients experience
- New common corridors & directional signage
- Abundant visitor parking: 1.4 / 1,000 SF parking ratio
- Renovated lobby with digital tenant directory
- ADA restrooms on multiple floors
All Available Spaces(10)
Display Rental Rate as
- Space
- Size
- Term
- Rental Rate
- Space Use
- Build-Out
- Available
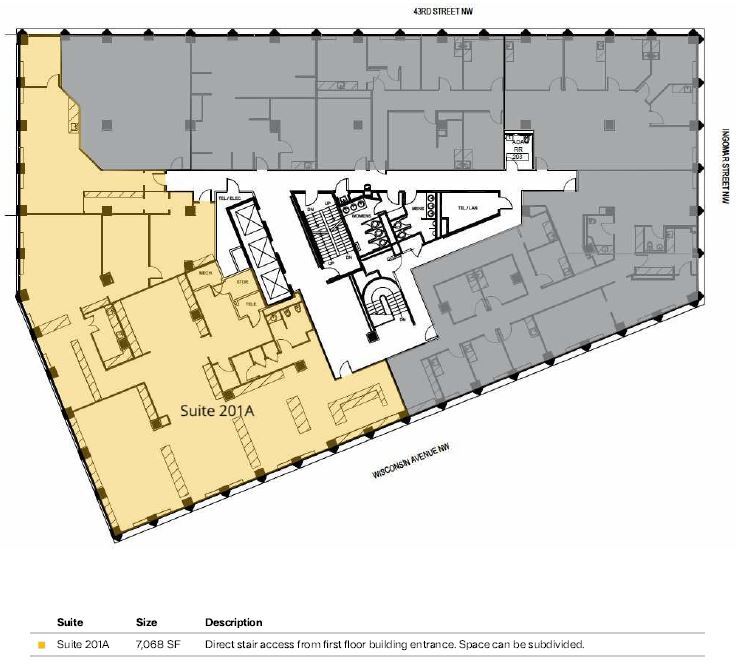
Direct stair access from first floor building entrance. Space can be subdivided
- Rate includes utilities, building services and property expenses
- Mostly Open Floor Plan Layout
- Fully Built-Out as Standard Office
- Rate includes utilities, building services and property expenses
- Office intensive layout
- Fully Built-Out as Standard Office
Built out suite with waiting area, kitchenette, conference room and two windowed offices.
- Rate includes utilities, building services and property expenses
Move-in ready spec suite available immediately! Three private, windowed offices, pantry, open work area, and reception. FINAL REMAINING OFFICE SPEC SUITE AT 5225 WISCONSIN! PRICE DROPPED TO $43.00 FS TO FINISH SPEC LEASING!
- Rate includes utilities, building services and property expenses
- Space is in Excellent Condition
- Mostly Open Floor Plan Layout
Space includes 3 private, windowed offices and reception/waiting area.
- Rate includes utilities, building services and property expenses
- Office intensive layout
- Fully Built-Out as Standard Office
Space includes 8 windowed offices, conference room, reception/waiting area, pantry/copy room, and IT/storage closet.
- Rate includes utilities, building services and property expenses
- Office intensive layout
- Fully Built-Out as Standard Office
Corner suite with immediate elevator exposure. Great window line and views to Tysons Corner. Space currently in shell condition, with perimeter offices and kitchenette in-place.
- Rate includes utilities, building services and property expenses
- Mostly Open Floor Plan Layout
- Partially Built-Out as Standard Office
- Can be combined with additional space(s) for up to 11,659 SF of adjacent space
Space includes 3 windowed offices, kitchenette/pantry, open work area and reception/waiting area.
- Rate includes utilities, building services and property expenses
- Office intensive layout
- Fully Built-Out as Standard Office
- Can be combined with additional space(s) for up to 11,659 SF of adjacent space
Available immediately. Space includes reception/waiting area, five windowed offices, kitchen, open work area, and internal restroom. Modern finishes.
- Rate includes utilities, building services and property expenses
- Can be combined with additional space(s) for up to 11,659 SF of adjacent space
- Space is in Excellent Condition
- Rate includes utilities, building services and property expenses
- Can be combined with additional space(s) for up to 11,659 SF of adjacent space
| Space | Size | Term | Rental Rate | Space Use | Build-Out | Available |
| 2nd Floor | 3,286 SF | Negotiable | $66.12 CAD/SF/YR $5.51 CAD/SF/MO $217,270 CAD/YR $18,106 CAD/MO | Office/Medical | Full Build-Out | Now |
| 3rd Floor, Ste 300 | 3,117 SF | Negotiable | $64.74 CAD/SF/YR $5.40 CAD/SF/MO $201,802 CAD/YR $16,817 CAD/MO | Office/Medical | Full Build-Out | Now |
| 3rd Floor, Ste 312 | 798 SF | Negotiable | $64.74 CAD/SF/YR $5.40 CAD/SF/MO $51,665 CAD/YR $4,305 CAD/MO | Office/Medical | - | Now |
| 4th Floor, Ste 404 | 1,384 SF | Negotiable | $59.23 CAD/SF/YR $4.94 CAD/SF/MO $81,978 CAD/YR $6,831 CAD/MO | Office/Medical | Spec Suite | Now |
| 5th Floor, Ste 501 | 933 SF | Negotiable | $64.74 CAD/SF/YR $5.40 CAD/SF/MO $60,405 CAD/YR $5,034 CAD/MO | Office/Medical | Full Build-Out | Now |
| 5th Floor, Ste 513 | 3,118 SF | Negotiable | $64.74 CAD/SF/YR $5.40 CAD/SF/MO $201,867 CAD/YR $16,822 CAD/MO | Office/Medical | Full Build-Out | Now |
| 6th Floor, Ste 600B | 3,018 SF | Negotiable | $66.12 CAD/SF/YR $5.51 CAD/SF/MO $199,550 CAD/YR $16,629 CAD/MO | Office/Medical | Partial Build-Out | Now |
| 6th Floor, Ste 601 | 1,326 SF | Negotiable | $66.12 CAD/SF/YR $5.51 CAD/SF/MO $87,675 CAD/YR $7,306 CAD/MO | Office/Medical | Full Build-Out | Now |
| 6th Floor, Ste 603 | 1,981 SF | Negotiable | $66.12 CAD/SF/YR $5.51 CAD/SF/MO $130,984 CAD/YR $10,915 CAD/MO | Office/Medical | Full Build-Out | Now |
| 6th Floor, Ste 605 | 5,334 SF | Negotiable | $66.12 CAD/SF/YR $5.51 CAD/SF/MO $352,684 CAD/YR $29,390 CAD/MO | Office/Medical | - | 2026-10-01 |
2nd Floor
| Size |
| 3,286 SF |
| Term |
| Negotiable |
| Rental Rate |
| $66.12 CAD/SF/YR $5.51 CAD/SF/MO $217,270 CAD/YR $18,106 CAD/MO |
| Space Use |
| Office/Medical |
| Build-Out |
| Full Build-Out |
| Available |
| Now |
3rd Floor, Ste 300
| Size |
| 3,117 SF |
| Term |
| Negotiable |
| Rental Rate |
| $64.74 CAD/SF/YR $5.40 CAD/SF/MO $201,802 CAD/YR $16,817 CAD/MO |
| Space Use |
| Office/Medical |
| Build-Out |
| Full Build-Out |
| Available |
| Now |
3rd Floor, Ste 312
| Size |
| 798 SF |
| Term |
| Negotiable |
| Rental Rate |
| $64.74 CAD/SF/YR $5.40 CAD/SF/MO $51,665 CAD/YR $4,305 CAD/MO |
| Space Use |
| Office/Medical |
| Build-Out |
| - |
| Available |
| Now |
4th Floor, Ste 404
| Size |
| 1,384 SF |
| Term |
| Negotiable |
| Rental Rate |
| $59.23 CAD/SF/YR $4.94 CAD/SF/MO $81,978 CAD/YR $6,831 CAD/MO |
| Space Use |
| Office/Medical |
| Build-Out |
| Spec Suite |
| Available |
| Now |
5th Floor, Ste 501
| Size |
| 933 SF |
| Term |
| Negotiable |
| Rental Rate |
| $64.74 CAD/SF/YR $5.40 CAD/SF/MO $60,405 CAD/YR $5,034 CAD/MO |
| Space Use |
| Office/Medical |
| Build-Out |
| Full Build-Out |
| Available |
| Now |
5th Floor, Ste 513
| Size |
| 3,118 SF |
| Term |
| Negotiable |
| Rental Rate |
| $64.74 CAD/SF/YR $5.40 CAD/SF/MO $201,867 CAD/YR $16,822 CAD/MO |
| Space Use |
| Office/Medical |
| Build-Out |
| Full Build-Out |
| Available |
| Now |
6th Floor, Ste 600B
| Size |
| 3,018 SF |
| Term |
| Negotiable |
| Rental Rate |
| $66.12 CAD/SF/YR $5.51 CAD/SF/MO $199,550 CAD/YR $16,629 CAD/MO |
| Space Use |
| Office/Medical |
| Build-Out |
| Partial Build-Out |
| Available |
| Now |
6th Floor, Ste 601
| Size |
| 1,326 SF |
| Term |
| Negotiable |
| Rental Rate |
| $66.12 CAD/SF/YR $5.51 CAD/SF/MO $87,675 CAD/YR $7,306 CAD/MO |
| Space Use |
| Office/Medical |
| Build-Out |
| Full Build-Out |
| Available |
| Now |
6th Floor, Ste 603
| Size |
| 1,981 SF |
| Term |
| Negotiable |
| Rental Rate |
| $66.12 CAD/SF/YR $5.51 CAD/SF/MO $130,984 CAD/YR $10,915 CAD/MO |
| Space Use |
| Office/Medical |
| Build-Out |
| Full Build-Out |
| Available |
| Now |
6th Floor, Ste 605
| Size |
| 5,334 SF |
| Term |
| Negotiable |
| Rental Rate |
| $66.12 CAD/SF/YR $5.51 CAD/SF/MO $352,684 CAD/YR $29,390 CAD/MO |
| Space Use |
| Office/Medical |
| Build-Out |
| - |
| Available |
| 2026-10-01 |
2nd Floor
| Size | 3,286 SF |
| Term | Negotiable |
| Rental Rate | $66.12 CAD/SF/YR |
| Space Use | Office/Medical |
| Build-Out | Full Build-Out |
| Available | Now |
Direct stair access from first floor building entrance. Space can be subdivided
- Rate includes utilities, building services and property expenses
- Fully Built-Out as Standard Office
- Mostly Open Floor Plan Layout
3rd Floor, Ste 300
| Size | 3,117 SF |
| Term | Negotiable |
| Rental Rate | $64.74 CAD/SF/YR |
| Space Use | Office/Medical |
| Build-Out | Full Build-Out |
| Available | Now |
- Rate includes utilities, building services and property expenses
- Fully Built-Out as Standard Office
- Office intensive layout
3rd Floor, Ste 312
| Size | 798 SF |
| Term | Negotiable |
| Rental Rate | $64.74 CAD/SF/YR |
| Space Use | Office/Medical |
| Build-Out | - |
| Available | Now |
Built out suite with waiting area, kitchenette, conference room and two windowed offices.
- Rate includes utilities, building services and property expenses
4th Floor, Ste 404
| Size | 1,384 SF |
| Term | Negotiable |
| Rental Rate | $59.23 CAD/SF/YR |
| Space Use | Office/Medical |
| Build-Out | Spec Suite |
| Available | Now |
Move-in ready spec suite available immediately! Three private, windowed offices, pantry, open work area, and reception. FINAL REMAINING OFFICE SPEC SUITE AT 5225 WISCONSIN! PRICE DROPPED TO $43.00 FS TO FINISH SPEC LEASING!
- Rate includes utilities, building services and property expenses
- Mostly Open Floor Plan Layout
- Space is in Excellent Condition
5th Floor, Ste 501
| Size | 933 SF |
| Term | Negotiable |
| Rental Rate | $64.74 CAD/SF/YR |
| Space Use | Office/Medical |
| Build-Out | Full Build-Out |
| Available | Now |
Space includes 3 private, windowed offices and reception/waiting area.
- Rate includes utilities, building services and property expenses
- Fully Built-Out as Standard Office
- Office intensive layout
5th Floor, Ste 513
| Size | 3,118 SF |
| Term | Negotiable |
| Rental Rate | $64.74 CAD/SF/YR |
| Space Use | Office/Medical |
| Build-Out | Full Build-Out |
| Available | Now |
Space includes 8 windowed offices, conference room, reception/waiting area, pantry/copy room, and IT/storage closet.
- Rate includes utilities, building services and property expenses
- Fully Built-Out as Standard Office
- Office intensive layout
6th Floor, Ste 600B
| Size | 3,018 SF |
| Term | Negotiable |
| Rental Rate | $66.12 CAD/SF/YR |
| Space Use | Office/Medical |
| Build-Out | Partial Build-Out |
| Available | Now |
Corner suite with immediate elevator exposure. Great window line and views to Tysons Corner. Space currently in shell condition, with perimeter offices and kitchenette in-place.
- Rate includes utilities, building services and property expenses
- Partially Built-Out as Standard Office
- Mostly Open Floor Plan Layout
- Can be combined with additional space(s) for up to 11,659 SF of adjacent space
6th Floor, Ste 601
| Size | 1,326 SF |
| Term | Negotiable |
| Rental Rate | $66.12 CAD/SF/YR |
| Space Use | Office/Medical |
| Build-Out | Full Build-Out |
| Available | Now |
Space includes 3 windowed offices, kitchenette/pantry, open work area and reception/waiting area.
- Rate includes utilities, building services and property expenses
- Fully Built-Out as Standard Office
- Office intensive layout
- Can be combined with additional space(s) for up to 11,659 SF of adjacent space
6th Floor, Ste 603
| Size | 1,981 SF |
| Term | Negotiable |
| Rental Rate | $66.12 CAD/SF/YR |
| Space Use | Office/Medical |
| Build-Out | Full Build-Out |
| Available | Now |
Available immediately. Space includes reception/waiting area, five windowed offices, kitchen, open work area, and internal restroom. Modern finishes.
- Rate includes utilities, building services and property expenses
- Space is in Excellent Condition
- Can be combined with additional space(s) for up to 11,659 SF of adjacent space
6th Floor, Ste 605
| Size | 5,334 SF |
| Term | Negotiable |
| Rental Rate | $66.12 CAD/SF/YR |
| Space Use | Office/Medical |
| Build-Out | - |
| Available | 2026-10-01 |
- Rate includes utilities, building services and property expenses
- Can be combined with additional space(s) for up to 11,659 SF of adjacent space
Property Overview
Medical office building in Friendship Heights across the street from the Friendship Heights Metro entrance. Excellent signage and visibility on Wisconsin Avenue.
- Property Manager on Site
Property Facts
Select Tenants
- Floor
- Tenant Name
- Industry
- 5th
- American Senior Housing Association
- Services
- 5th
- Blake Dental Group
- Health Care and Social Assistance
- 1st
- FedEx Office
- Administrative and Support Services
- 3rd
- Global Engineering Solutions of Washington DC
- Professional, Scientific, and Technical Services
- 5th
- Marvin Liss Law Offices
- Professional, Scientific, and Technical Services
- 4th
- National Integrated Health Associates
- Health Care and Social Assistance
- 3rd
- The Hirschel Group, PC
- Professional, Scientific, and Technical Services
- 4th
- The Ross Center for Anxiety & Related Disorders
- Health Care and Social Assistance
- 5th
- Washington Psychological Center, P.C.
- Health Care and Social Assistance
Presented by
Friendship Medical Center | 5225 Wisconsin Ave NW
Hmm, there seems to have been an error sending your message. Please try again.
Thanks! Your message was sent.












