Log In/Sign Up
Your email has been sent.
All Available Space(1)
Display Rental Rate as
- Space
- Size
- Term
- Rental Rate
- Space Use
- Build-Out
- Available
- Fully Built-Out as Standard Office
- Fits 32 - 100 People
- Mostly Open Floor Plan Layout
- Located in-line with other retail
| Space | Size | Term | Rental Rate | Space Use | Build-Out | Available |
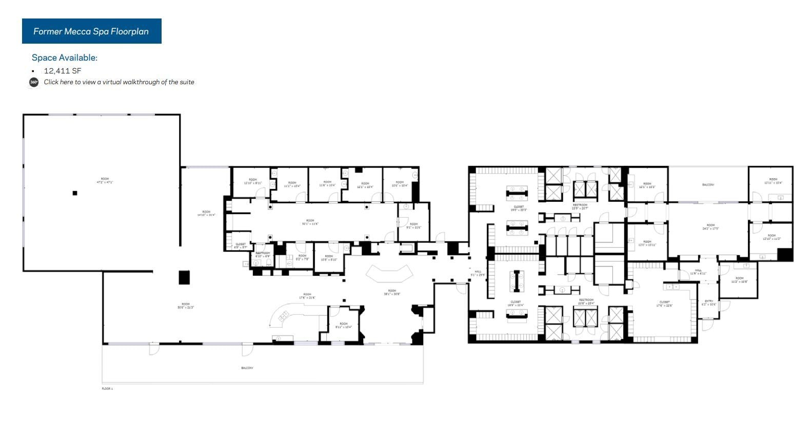
| 3rd Floor, Ste 300 | 12,411 SF | Negotiable | Upon Request Upon Request Upon Request Upon Request | Office | Full Build-Out | Now |
3rd Floor, Ste 300
| Size |
| 12,411 SF |
| Term |
| Negotiable |
| Rental Rate |
| Upon Request Upon Request Upon Request Upon Request |
| Space Use |
| Office |
| Build-Out |
| Full Build-Out |
| Available |
| Now |
1 of 1
Videos
Matterport 3D Exterior
Matterport 3D Tour
Photos
Street View
Street
Map
3rd Floor, Ste 300
| Size | 12,411 SF |
| Term | Negotiable |
| Rental Rate | Upon Request |
| Space Use | Office |
| Build-Out | Full Build-Out |
| Available | Now |
- Fully Built-Out as Standard Office
- Mostly Open Floor Plan Layout
- Fits 32 - 100 People
- Located in-line with other retail
Property Overview
AMENITIES: Prime location on the corner of West 6th Street Across from Whole Foods, Lifetime Fitness and numerous restaurants, coffee shops and food trucks Close proximity to future expansion of Shoal Creek Hike & Bike Trail Barry’s Bootcamp located on the 3rd Floor Covered and surface parking - 9 Free parking spaces available SPACE DETAILS: Downtown views Outdoor balcony High-end finishes throughout
Property Facts
Building Type
Office
Year Built
1999
Building Height
3 Stories
Building Size
37,077 SF
Building Class
B
Typical Floor Size
12,359 SF
Parking
Surface Parking
111 Covered Parking Spaces
Select Tenants
- Floor
- Tenant Name
- Industry
- 1st
- By George
- Retailer
- 1st
- Free People
- Retailer
- 2nd
- Kuper Sothebys International Realty
- -
- 1st
- Paper Source
- Retailer
- 2nd
- Stewart Title
- Finance and Insurance
- 2nd
- Tasktop Technologies
- -
- 1st
- Wildflower Organics
- Retailer
Exceptionally walkable
90/100
Very drivable
80/100
Good public transit
70/100
Very bikeable
80/100
1 of 8
Videos
Matterport 3D Exterior
Matterport 3D Tour
Photos
Street View
Street
Map
Presented by
524 N Lamar Blvd
Already a member? Log In
Hmm, there seems to have been an error sending your message. Please try again.
Thanks! Your message was sent.






