Your email has been sent.
Park Highlights
- North Lake Business Park is an expansive 35.3-acre business park offering office, flex, and warehouse space situated for success in Altamonte Springs.
- At the intersection of E Altamonte Dr and Northlake Blvd, this prime center offers unparalleled accessibility to nearby local amenities and retailers.
- Orlando International Airport (MCO), Sanford International Airport (SFB), and Orlando Executive Airport (OEA) are conveniently 45 minutes away.
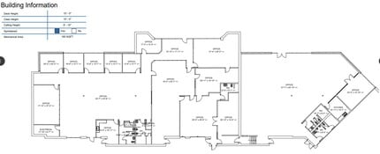
- Ceiling heights range from 14 to 16 feet, grade-level and dock-high loading doors, green space, and ample parking complement the 15-building park.
- Connectivity is a breeze at North Lake Business Park, boasting a 15-minute drive to Orlando's metro area and 2.7 miles to the SunRail station.
- With outstanding visibility to I-4, North Lake Business Park is an evident choice for businesses relying on a dynamic and accessible workplace.
Park Facts
All Available Spaces(18)
Display Rental Rate as
- Space
- Size
- Term
- Rental Rate
- Space Use
- Build-Out
- Available
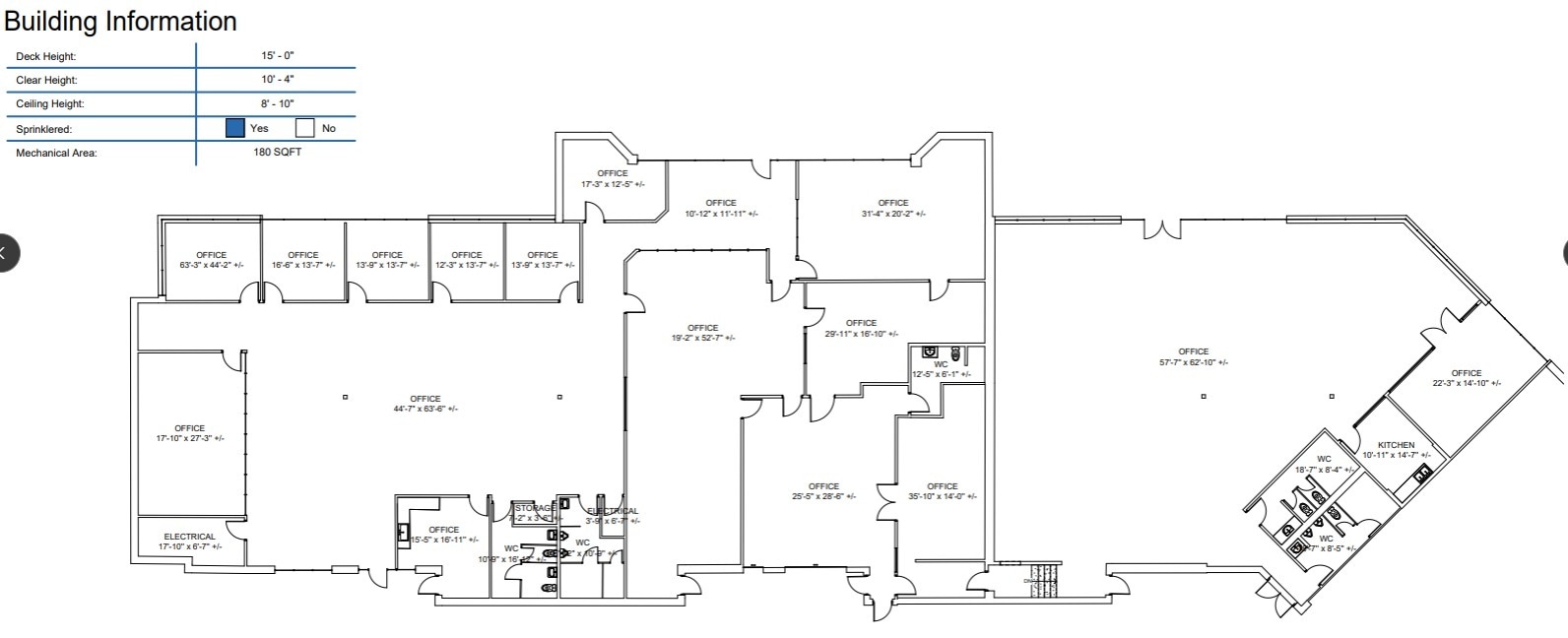
- Fully Built-Out as Standard Office
- 3 Private Offices
- Fits 6 - 17 People
- Conference Rooms
- Fully Built-Out as Standard Office
- 4 Private Offices
- Fits 6 - 17 People
- Conference Rooms
| Space | Size | Term | Rental Rate | Space Use | Build-Out | Available |
| 1st Floor - 1000 | 4,045 SF | 5 Years | Upon Request Upon Request Upon Request Upon Request | Industrial | Full Build-Out | 90 Days |
| 1st Floor, Ste 1002 | 2,005 SF | Negotiable | Upon Request Upon Request Upon Request Upon Request | Office | Full Build-Out | Now |
| 1st Floor, Ste 1004 | 2,005 SF | 3-10 Years | Upon Request Upon Request Upon Request Upon Request | Office | Full Build-Out | Now |
762 Northlake Blvd - 1st Floor - 1000
762 Northlake Blvd - 1st Floor - Ste 1002
762 Northlake Blvd - 1st Floor - Ste 1004
- Space
- Size
- Term
- Rental Rate
- Space Use
- Build-Out
- Available
- Fully Built-Out as Standard Office
- Fits 10 - 32 People
- Office intensive layout
| Space | Size | Term | Rental Rate | Space Use | Build-Out | Available |
| 1st Floor, Ste 1000 | 3,905 SF | Negotiable | Upon Request Upon Request Upon Request Upon Request | Office | Full Build-Out | Now |
774 Northlake Blvd - 1st Floor - Ste 1000
- Space
- Size
- Term
- Rental Rate
- Space Use
- Build-Out
- Available
- Fully Built-Out as Standard Office
- Can be combined with additional space(s) for up to 10,943 SF of adjacent space
- Fits 10 - 31 People
- Lease rate does not include utilities, property expenses or building services
- Fits 13 - 39 People
- Fully Built-Out as Standard Office
- Can be combined with additional space(s) for up to 10,943 SF of adjacent space
- Fully Built-Out as Standard Office
- Can be combined with additional space(s) for up to 10,943 SF of adjacent space
- Fits 6 - 18 People
| Space | Size | Term | Rental Rate | Space Use | Build-Out | Available |
| 1st Floor, Ste 1000 | 3,850 SF | Negotiable | Upon Request Upon Request Upon Request Upon Request | Office | Full Build-Out | 60 Days |
| 1st Floor, Ste 1012 | 4,869 SF | Negotiable | Upon Request Upon Request Upon Request Upon Request | Office | Full Build-Out | 60 Days |
| 1st Floor, Ste 1014 | 2,224 SF | Negotiable | Upon Request Upon Request Upon Request Upon Request | Office | Full Build-Out | 60 Days |
380 Northlake Blvd - 1st Floor - Ste 1000
380 Northlake Blvd - 1st Floor - Ste 1012
380 Northlake Blvd - 1st Floor - Ste 1014
- Space
- Size
- Term
- Rental Rate
- Space Use
- Build-Out
- Available
- Fully Built-Out as Standard Office
- Fits 32 - 101 People
| Space | Size | Term | Rental Rate | Space Use | Build-Out | Available |
| 1st Floor, Ste 1000 | 12,508 SF | Negotiable | Upon Request Upon Request Upon Request Upon Request | Office | Full Build-Out | 60 Days |
528 Northlake Blvd - 1st Floor - Ste 1000
- Space
- Size
- Term
- Rental Rate
- Space Use
- Build-Out
- Available
Tenant improvement allowance and rent abatment available.
- Fully Built-Out as Standard Office
- Fits 33 - 104 People
- Can be combined with additional space(s) for up to 12,924 SF of adjacent space
- Office intensive layout
- Space In Need of Renovation
Tenant improvement allowance and rent abatement available.
- Fully Built-Out as Standard Office
- Fits 33 - 104 People
- Can be combined with additional space(s) for up to 12,924 SF of adjacent space
- Office intensive layout
- Space In Need of Renovation
| Space | Size | Term | Rental Rate | Space Use | Build-Out | Available |
| 1st Floor, Ste 1000 | 6,462 SF | Negotiable | Upon Request Upon Request Upon Request Upon Request | Office | Full Build-Out | Now |
| 1st Floor, Ste 1008 | 6,462 SF | Negotiable | Upon Request Upon Request Upon Request Upon Request | Office | Full Build-Out | Now |
442 Northlake Blvd - 1st Floor - Ste 1000
442 Northlake Blvd - 1st Floor - Ste 1008
- Space
- Size
- Term
- Rental Rate
- Space Use
- Build-Out
- Available
- Fully Built-Out as Standard Office
- 10 Private Offices
- Fits 7 - 20 People
- 2 Conference Rooms
| Space | Size | Term | Rental Rate | Space Use | Build-Out | Available |
| 1st Floor, Ste 1020 | 2,499 SF | Negotiable | Upon Request Upon Request Upon Request Upon Request | Office | Full Build-Out | 30 Days |
474 Northlake Blvd - 1st Floor - Ste 1020
- Space
- Size
- Term
- Rental Rate
- Space Use
- Build-Out
- Available
- Fully Built-Out as Standard Office
- Fits 42 - 133 People
| Space | Size | Term | Rental Rate | Space Use | Build-Out | Available |
| 1st Floor, Ste 1020 | 16,603 SF | Negotiable | Upon Request Upon Request Upon Request Upon Request | Office | Full Build-Out | 30 Days |
370 Northlake Blvd - 1st Floor - Ste 1020
- Space
- Size
- Term
- Rental Rate
- Space Use
- Build-Out
- Available
2,302 sqft for lease.
- Lease rate does not include utilities, property expenses or building services
| Space | Size | Term | Rental Rate | Space Use | Build-Out | Available |
| 1st Floor - 1020 | 2,302 SF | Negotiable | $21.61 CAD/SF/YR $1.80 CAD/SF/MO $49,757 CAD/YR $4,146 CAD/MO | Flex | Full Build-Out | 30 Days |
750 Northlake Blvd - 1st Floor - 1020
- Space
- Size
- Term
- Rental Rate
- Space Use
- Build-Out
- Available
- Fully Built-Out as Standard Office
- Fits 6 - 18 People
- Fully Built-Out as Standard Office
- Fits 7 - 21 People
| Space | Size | Term | Rental Rate | Space Use | Build-Out | Available |
| 1st Floor, Ste 1024 | 2,138 SF | Negotiable | Upon Request Upon Request Upon Request Upon Request | Office | Full Build-Out | Now |
| 1st Floor, Ste 1026 | 1,640 SF | Negotiable | Upon Request Upon Request Upon Request Upon Request | Office | Full Build-Out | Now |
402 Northlake Blvd - 1st Floor - Ste 1024
402 Northlake Blvd - 1st Floor - Ste 1026
- Space
- Size
- Term
- Rental Rate
- Space Use
- Build-Out
- Available
- Fully Built-Out as Standard Office
- Fits 9 - 27 People
| Space | Size | Term | Rental Rate | Space Use | Build-Out | Available |
| 1st Floor, Ste 1040 | 3,297 SF | Negotiable | Upon Request Upon Request Upon Request Upon Request | Office | Full Build-Out | Now |
598 Northlake Blvd - 1st Floor - Ste 1040
- Space
- Size
- Term
- Rental Rate
- Space Use
- Build-Out
- Available
- Fully Built-Out as Standard Office
- Fits 26 - 82 People
| Space | Size | Term | Rental Rate | Space Use | Build-Out | Available |
| 1st Floor, Ste 130, 140, 175, 220 | 10,244 SF | Negotiable | Upon Request Upon Request Upon Request Upon Request | Office | Full Build-Out | 30 Days |
600 Northlake Blvd - 1st Floor - Ste 130, 140, 175, 220
- Space
- Size
- Term
- Rental Rate
- Space Use
- Build-Out
- Available
- Fully Built-Out as Standard Office
- Fits 3 - 9 People
| Space | Size | Term | Rental Rate | Space Use | Build-Out | Available |
| 1st Floor, Ste 530 | 1,007 SF | Negotiable | Upon Request Upon Request Upon Request Upon Request | Office | Full Build-Out | Now |
650 Northlake Blvd - 1st Floor - Ste 530
762 Northlake Blvd - 1st Floor - 1000
| Size | 4,045 SF |
| Term | 5 Years |
| Rental Rate | Upon Request |
| Space Use | Industrial |
| Build-Out | Full Build-Out |
| Available | 90 Days |
762 Northlake Blvd - 1st Floor - Ste 1002
| Size | 2,005 SF |
| Term | Negotiable |
| Rental Rate | Upon Request |
| Space Use | Office |
| Build-Out | Full Build-Out |
| Available | Now |
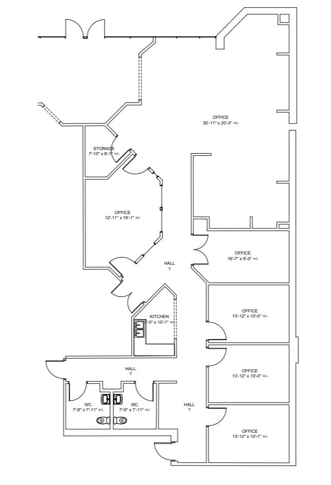
- Fully Built-Out as Standard Office
- Fits 6 - 17 People
- 3 Private Offices
- Conference Rooms
762 Northlake Blvd - 1st Floor - Ste 1004
| Size | 2,005 SF |
| Term | 3-10 Years |
| Rental Rate | Upon Request |
| Space Use | Office |
| Build-Out | Full Build-Out |
| Available | Now |
- Fully Built-Out as Standard Office
- Fits 6 - 17 People
- 4 Private Offices
- Conference Rooms
774 Northlake Blvd - 1st Floor - Ste 1000
| Size | 3,905 SF |
| Term | Negotiable |
| Rental Rate | Upon Request |
| Space Use | Office |
| Build-Out | Full Build-Out |
| Available | Now |
- Fully Built-Out as Standard Office
- Office intensive layout
- Fits 10 - 32 People
380 Northlake Blvd - 1st Floor - Ste 1000
| Size | 3,850 SF |
| Term | Negotiable |
| Rental Rate | Upon Request |
| Space Use | Office |
| Build-Out | Full Build-Out |
| Available | 60 Days |
- Fully Built-Out as Standard Office
- Fits 10 - 31 People
- Can be combined with additional space(s) for up to 10,943 SF of adjacent space
380 Northlake Blvd - 1st Floor - Ste 1012
| Size | 4,869 SF |
| Term | Negotiable |
| Rental Rate | Upon Request |
| Space Use | Office |
| Build-Out | Full Build-Out |
| Available | 60 Days |
- Lease rate does not include utilities, property expenses or building services
- Fully Built-Out as Standard Office
- Fits 13 - 39 People
- Can be combined with additional space(s) for up to 10,943 SF of adjacent space
380 Northlake Blvd - 1st Floor - Ste 1014
| Size | 2,224 SF |
| Term | Negotiable |
| Rental Rate | Upon Request |
| Space Use | Office |
| Build-Out | Full Build-Out |
| Available | 60 Days |
- Fully Built-Out as Standard Office
- Fits 6 - 18 People
- Can be combined with additional space(s) for up to 10,943 SF of adjacent space
528 Northlake Blvd - 1st Floor - Ste 1000
| Size | 12,508 SF |
| Term | Negotiable |
| Rental Rate | Upon Request |
| Space Use | Office |
| Build-Out | Full Build-Out |
| Available | 60 Days |
- Fully Built-Out as Standard Office
- Fits 32 - 101 People
442 Northlake Blvd - 1st Floor - Ste 1000
| Size | 6,462 SF |
| Term | Negotiable |
| Rental Rate | Upon Request |
| Space Use | Office |
| Build-Out | Full Build-Out |
| Available | Now |
Tenant improvement allowance and rent abatment available.
- Fully Built-Out as Standard Office
- Office intensive layout
- Fits 33 - 104 People
- Space In Need of Renovation
- Can be combined with additional space(s) for up to 12,924 SF of adjacent space
442 Northlake Blvd - 1st Floor - Ste 1008
| Size | 6,462 SF |
| Term | Negotiable |
| Rental Rate | Upon Request |
| Space Use | Office |
| Build-Out | Full Build-Out |
| Available | Now |
Tenant improvement allowance and rent abatement available.
- Fully Built-Out as Standard Office
- Office intensive layout
- Fits 33 - 104 People
- Space In Need of Renovation
- Can be combined with additional space(s) for up to 12,924 SF of adjacent space
474 Northlake Blvd - 1st Floor - Ste 1020
| Size | 2,499 SF |
| Term | Negotiable |
| Rental Rate | Upon Request |
| Space Use | Office |
| Build-Out | Full Build-Out |
| Available | 30 Days |
- Fully Built-Out as Standard Office
- Fits 7 - 20 People
- 10 Private Offices
- 2 Conference Rooms
370 Northlake Blvd - 1st Floor - Ste 1020
| Size | 16,603 SF |
| Term | Negotiable |
| Rental Rate | Upon Request |
| Space Use | Office |
| Build-Out | Full Build-Out |
| Available | 30 Days |
- Fully Built-Out as Standard Office
- Fits 42 - 133 People
750 Northlake Blvd - 1st Floor - 1020
| Size | 2,302 SF |
| Term | Negotiable |
| Rental Rate | $21.61 CAD/SF/YR |
| Space Use | Flex |
| Build-Out | Full Build-Out |
| Available | 30 Days |
2,302 sqft for lease.
- Lease rate does not include utilities, property expenses or building services
402 Northlake Blvd - 1st Floor - Ste 1024
| Size | 2,138 SF |
| Term | Negotiable |
| Rental Rate | Upon Request |
| Space Use | Office |
| Build-Out | Full Build-Out |
| Available | Now |
- Fully Built-Out as Standard Office
- Fits 6 - 18 People
402 Northlake Blvd - 1st Floor - Ste 1026
| Size | 1,640 SF |
| Term | Negotiable |
| Rental Rate | Upon Request |
| Space Use | Office |
| Build-Out | Full Build-Out |
| Available | Now |
- Fully Built-Out as Standard Office
- Fits 7 - 21 People
598 Northlake Blvd - 1st Floor - Ste 1040
| Size | 3,297 SF |
| Term | Negotiable |
| Rental Rate | Upon Request |
| Space Use | Office |
| Build-Out | Full Build-Out |
| Available | Now |
- Fully Built-Out as Standard Office
- Fits 9 - 27 People
600 Northlake Blvd - 1st Floor - Ste 130, 140, 175, 220
| Size | 10,244 SF |
| Term | Negotiable |
| Rental Rate | Upon Request |
| Space Use | Office |
| Build-Out | Full Build-Out |
| Available | 30 Days |
- Fully Built-Out as Standard Office
- Fits 26 - 82 People
650 Northlake Blvd - 1st Floor - Ste 530
| Size | 1,007 SF |
| Term | Negotiable |
| Rental Rate | Upon Request |
| Space Use | Office |
| Build-Out | Full Build-Out |
| Available | Now |
- Fully Built-Out as Standard Office
- Fits 3 - 9 People
Park Overview
Welcome to North Lake Business Park, a premier office, flex, and warehouse campus-style park situated on 35.3 acres in Altamonte Springs. This exceptional business park boasts 15 meticulously designed buildings totaling 354,000 square feet, offering a versatile environment tailored to the diverse needs of various industries. The on-site presence of both a building engineer and property management ensures swift and efficient support at North Lake Business Park. The park accommodates businesses of various sizes, providing a range of office and flex space sizes. A welcoming interior courtyard with outdoor seating serves as a green oasis, inviting occupants to enjoy a rejuvenating midday break. Service area grade-level and dock-high loading doors provide seamless logistical operations, complemented by ceiling heights ranging from 14 to 16 feet. Exterior tenant signage options enhance visibility, and ample parking is found throughout the premises. Situated at the crossroads of E Altamonte Drive and Northlake Boulevard, North Lake Business Park benefits from proximity to an array of local amenities. The Marketplace at Altamonte, featuring popular retailers such as Burlington, Total Wine & More, Ross, buybuyBABY, Amped Fitness, and more, is conveniently located nearby, and the Altamonte Mall is within a mere seven-minute drive. Altamonte Springs emerges as a thriving suburban office hub within a 15-minute drive from Orlando's Central Business District (CBD). Connectivity is seamless with proximity to the critical Interstate 4 and State Route 436 thoroughfares. Moreover, a 45-minute drive from Orlando International Airport (MCO), Orlando-Sanford International Airport (SFB), and Orlando Executive Airport (OEA) enhances accessibility. The Altamonte Springs SunRail station, 2.7 miles away, further contributes to North Lake Business Park's strategic location, ensuring connectivity for business staff and visitors. Discover exceptional visibility and effortless access at North Lake Business Park, an ideal choice for businesses seeking a dynamic and accessible workspace in the Orlando Metropolitan Statistical Area (MSA).
- 24 Hour Access
- Pylon Sign
- Signage
- Air Conditioning
Presented by
Company Not Provided
BaySpace North Lake | Altamonte Springs, FL 32701
Hmm, there seems to have been an error sending your message. Please try again.
Thanks! Your message was sent.































