Log In/Sign Up
Your email has been sent.
530 Highway 33 - Market-Driven / Call for Offers 43.38 Acres of Industrial Land in Millstone Township, NJ 08535



Investment Highlights
- Final site plan approvals in place – no entitlement risk
- Flexible single- or multi-tenant development design
- Suitable for institutional, regional, or owner-user buyers
- Large-scale, infill-capable industrial site in a supply-constrained market
- Central New Jersey location with superior port and highway connectivity
Executive Summary
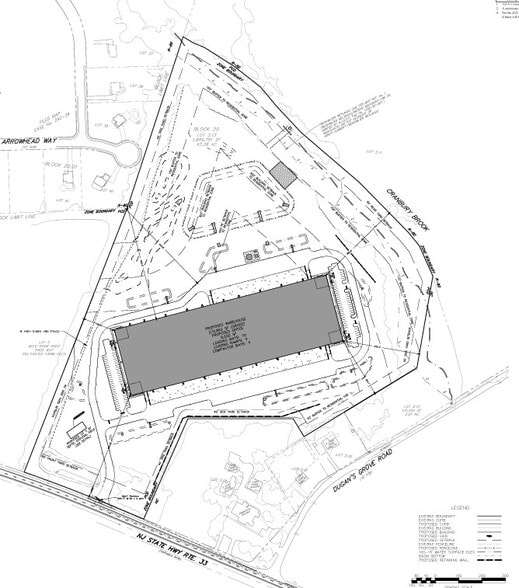
Weichert Realtors, as exclusive listing broker, is pleased to present 530 Route 33, a rare opportunity to acquire a fully approved ±43.38-acre industrial development site in Millstone Township, Monmouth County, New Jersey.
The property benefits from complete final municipal site plan approvals for a ±272,852 SF logistics / distribution facility, offering buyers the ability to bypass entitlement risk and accelerate development timelines. Strategically located in Central New Jersey, the site sits midway between the Newark/Elizabeth and Philadelphia/Wilmington port markets and provides access to approximately 30 million consumers within a 100-mile radius.
This offering is ideally suited for institutional developers, regional operators, or owner-users seeking scale, approvals, and proximity to major transportation infrastructure.
Approved Development Program
- Total Site Area: ±43.38 Acres
- Approved Building Size: ±272,852 SF
±265,652 SF Warehouse ±7,200 SF Office
- Height: 30’ Exterior
- Configuration: Single-tenant or up to three (3) tenants
Loading:
- 70 Dock-High Doors
- 4 Loading Ramps
- 4 Compactor Bays
- Parking: 116 Total Spaces
60 Warehouse 56 Office
Investment Highlights
- Final site plan approvals in place – no entitlement risk
- Large-scale, infill-capable industrial site in a supply-constrained market
- Flexible single- or multi-tenant development design
- Previously developed site
- Central New Jersey location with superior port and highway connectivity
- Suitable for institutional, regional, or owner-user buyers
Transaction Details
- Price: Make Offer
- Sale Type: Investment or Owner-User
Seller Preference:
- Clean offers with no subject-to contingencies
- 30–45 day due diligence period
– 30 day closing
The property benefits from complete final municipal site plan approvals for a ±272,852 SF logistics / distribution facility, offering buyers the ability to bypass entitlement risk and accelerate development timelines. Strategically located in Central New Jersey, the site sits midway between the Newark/Elizabeth and Philadelphia/Wilmington port markets and provides access to approximately 30 million consumers within a 100-mile radius.
This offering is ideally suited for institutional developers, regional operators, or owner-users seeking scale, approvals, and proximity to major transportation infrastructure.
Approved Development Program
- Total Site Area: ±43.38 Acres
- Approved Building Size: ±272,852 SF
±265,652 SF Warehouse ±7,200 SF Office
- Height: 30’ Exterior
- Configuration: Single-tenant or up to three (3) tenants
Loading:
- 70 Dock-High Doors
- 4 Loading Ramps
- 4 Compactor Bays
- Parking: 116 Total Spaces
60 Warehouse 56 Office
Investment Highlights
- Final site plan approvals in place – no entitlement risk
- Large-scale, infill-capable industrial site in a supply-constrained market
- Flexible single- or multi-tenant development design
- Previously developed site
- Central New Jersey location with superior port and highway connectivity
- Suitable for institutional, regional, or owner-user buyers
Transaction Details
- Price: Make Offer
- Sale Type: Investment or Owner-User
Seller Preference:
- Clean offers with no subject-to contingencies
- 30–45 day due diligence period
– 30 day closing
Data Room Click Here to Access
Property Facts
1 Lot Available
Lot Lot 3.13
| Lot Size | 43.38 AC |
| Lot Size | 43.38 AC |
Centrally positioned between two major port hubs: - Port of Newark / Elizabeth & Philadelphia / Wilmington Direct access to regional and interstate transportation corridors: - NJ Turnpike. U.S. Routes 1 & 9, GSP ±30 million people w/i 100 miles
Description
Centrally positioned between two major port hubs: Port of Newark / Elizabeth Ports of Philadelphia / Wilmington Direct access to regional and interstate transportation corridors: New Jersey Turnpike U.S. Routes 1 & 9 Garden State Parkway Atlantic City Expressway Access to ±30 million people within 100 miles
1 1
Somewhat walkable
20/100
Exceptionally drivable
100/100
Not bikeable
10/100
Property Taxes
| Parcel Number | 33-00020-0000-00003-13 | Improvements Assessment | $3,054,757 CAD |
| Land Assessment | $1,087,132 CAD | Total Assessment | $4,141,889 CAD |
Property Taxes
Parcel Number
33-00020-0000-00003-13
Land Assessment
$1,087,132 CAD
Improvements Assessment
$3,054,757 CAD
Total Assessment
$4,141,889 CAD
1 of 4
Videos
Matterport 3D Exterior
Matterport 3D Tour
Photos
Street View
Street
Map
1 of 1
Presented by
530 Highway 33 - Market-Driven / Call for Offers
Already a member? Log In
Hmm, there seems to have been an error sending your message. Please try again.
Thanks! Your message was sent.
