Your email has been sent.
530 NW 54th St 2,000 - 4,000 SF of Office/Medical Space Available in Miami, FL 33127



Highlights
- Turnkey demised portion of the 1st floor with a private exterior entrance — available for immediate occupancy.
- Reception/waiting area, multiple private rooms/offices/exam rooms, staff area and ADA restroom — ready for quick move-in.
- Offered on an NNN (triple-net) basis with flexible 3–10 year lease terms; tenant responsible for NNN expenses. Landlord will consider reasonable TI /
- Ideal for medical, office, retail, professional services, or other commercial tenants — landlord open to most commercial uses.
All Available Space(1)
Display Rental Rate as
- Space
- Size
- Term
- Rental Rate
- Space Use
- Build-Out
- Available
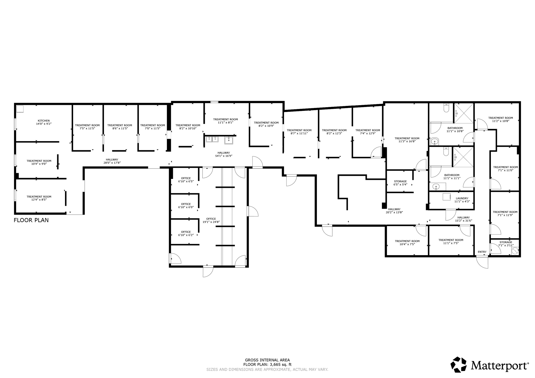
A demised portion of the 1st floor — 2,000–4,000 sq. ft. — is available at 530 NW 54th St, Miami. The suite has a private exterior entrance, clear demised boundaries, and flexible layouts well-suited for professional, creative, or service-based businesses. Offered on an NNN basis with 3–10 year terms; landlord will consider tenant improvements. Shared on-site amenities and on-site parking are available. See the attached floor plan — the highlighted area identifies the demised suite and the private entrance.
- Lease rate does not include utilities, property expenses or building services
- Office intensive layout
- Conference Rooms
- Laboratory
- Central Air Conditioning
- Wi-Fi Connectivity
- Security System
- Shower Facilities
- Partially Built-Out as Professional Services Office
- Partitioned Offices
- Space is in Excellent Condition
- Reception Area
- Private Restrooms
- Print/Copy Room
- Plug & Play
| Space | Size | Term | Rental Rate | Space Use | Build-Out | Available |
| 1st Floor | 2,000-4,000 SF | 2-5 Years | $21.93 CAD/SF/YR $1.83 CAD/SF/MO $87,706 CAD/YR $7,309 CAD/MO | Office/Medical | Partial Build-Out | Now |
1st Floor
| Size |
| 2,000-4,000 SF |
| Term |
| 2-5 Years |
| Rental Rate |
| $21.93 CAD/SF/YR $1.83 CAD/SF/MO $87,706 CAD/YR $7,309 CAD/MO |
| Space Use |
| Office/Medical |
| Build-Out |
| Partial Build-Out |
| Available |
| Now |
1st Floor
| Size | 2,000-4,000 SF |
| Term | 2-5 Years |
| Rental Rate | $21.93 CAD/SF/YR |
| Space Use | Office/Medical |
| Build-Out | Partial Build-Out |
| Available | Now |
A demised portion of the 1st floor — 2,000–4,000 sq. ft. — is available at 530 NW 54th St, Miami. The suite has a private exterior entrance, clear demised boundaries, and flexible layouts well-suited for professional, creative, or service-based businesses. Offered on an NNN basis with 3–10 year terms; landlord will consider tenant improvements. Shared on-site amenities and on-site parking are available. See the attached floor plan — the highlighted area identifies the demised suite and the private entrance.
- Lease rate does not include utilities, property expenses or building services
- Partially Built-Out as Professional Services Office
- Office intensive layout
- Partitioned Offices
- Conference Rooms
- Space is in Excellent Condition
- Laboratory
- Reception Area
- Central Air Conditioning
- Private Restrooms
- Wi-Fi Connectivity
- Print/Copy Room
- Security System
- Plug & Play
- Shower Facilities
Property Overview
This dedicated suite offers a functional layout with a reception/waiting area, multiple private rooms, staff area, and ADA restroom. The space has direct exterior access via a private entrance and clear demised boundaries separate it from the rest of the 1st floor. On-site parking is available for customers and staff. Landlord will consider reasonable tenant improvement allowances and build-out options for qualified tenants. Single demised portion of the 1st floor only — not the entire 1st floor. The landlord is open to most commercial uses (subject to code and landlord approval). For detailed unit boundaries, ingress/egress, and signage rights, please review the attached floor plan and photos. Located just 21 minutes from Miami International Airport (MIA), with seamless access to the Interstate 95 and 195 interchange, 530 NW 54th Street sits minutes from Miami’s Wynwood and Design District neighborhoods. This strategic location places businesses at the gateway to Miami’s leading commercial, creative, and cultural hubs—an ideal address for entrepreneurs, service providers, and professionals seeking a strong Miami presence.
- 24 Hour Access
- Controlled Access
- Fenced Lot
- Security System
- Air Conditioning
- Smoke Detector
Property Facts
Presented by
530 NW 54th St
Hmm, there seems to have been an error sending your message. Please try again.
Thanks! Your message was sent.




