Your email has been sent.
All Available Spaces(3)
Display Rental Rate as
- Space
- Size
- Term
- Rental Rate
- Space Use
- Build-Out
- Available
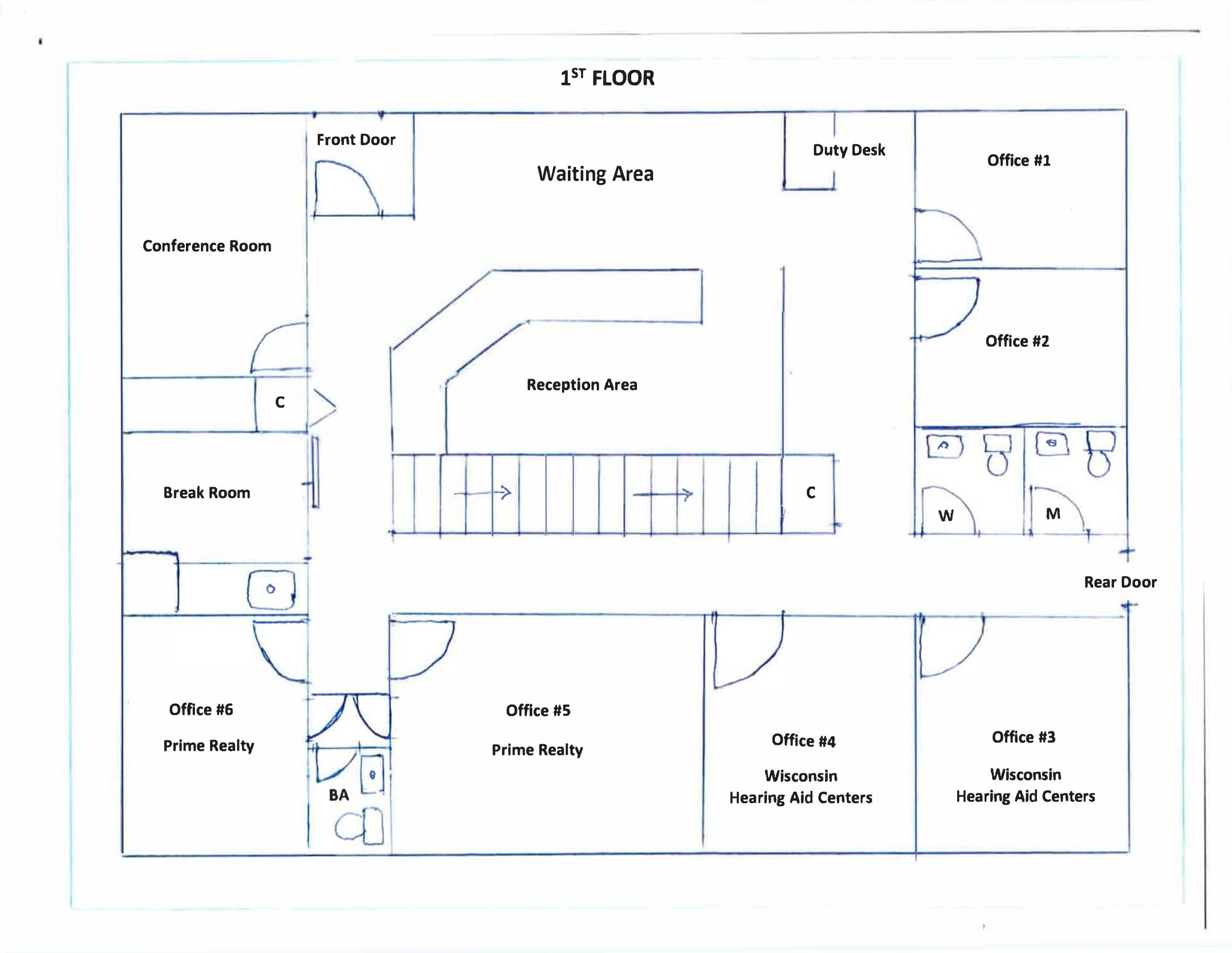
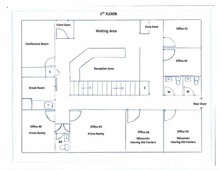
Shared Office Space. 1st Floor Corner Suite. Rent = $800.00/mo Gross. Rent includes, all Utilities, WIFI and CAM,s. Located in the HWY 31 Corridor with high visability, ample parking, ramped entrance and ADA restrooms. Shared space also includes conference room, break room and restrooms.
- Fully Built-Out as Standard Office
- Fits 1 - 2 People
- Central Air and Heating
- Natural Light
- Emergency Lighting
- Wheelchair Accessible
- Office intensive layout
- 1 Conference Room
- Wi-Fi Connectivity
- After Hours HVAC Available
- Smoke Detector
Shared Office Space. 1st Floor Office Suite avaailable for $700.00/mo Gross. Rent includes all utilities, WIFI and all CAM,s. Available for immediate occupancy. Also included with this rental is a staffed reception area, conference room, break room and ADA restrooms. Located in the HWY 31 corridor with ample parking and a ramped entrace.
- Fully Built-Out as Standard Office
- Fits 1 - 2 People
- Central Air and Heating
- Wi-Fi Connectivity
- Natural Light
- Emergency Lighting
- Wheelchair Accessible
- Office intensive layout
- 1 Conference Room
- Reception Area
- Fully Carpeted
- After Hours HVAC Available
- Smoke Detector
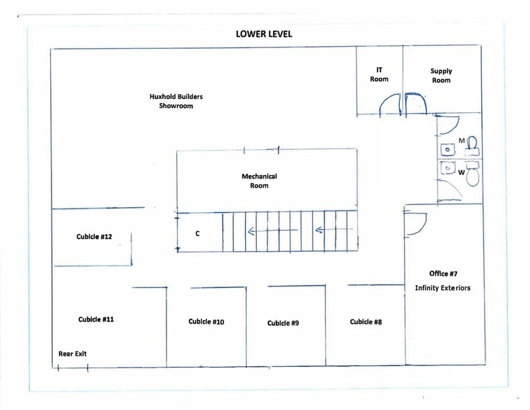
Lower Level Office Space Available. $1,800.00/mo Gross. Rent includes all utilies, WIFI and all CAM's. Rent includes accesss to 1st Floor conference room, Break Room & Restrooms (ADA 1st floor). Located in the HWY 31 Corridor with ample parking and a ramped entrance.
- Fully Built-Out as Standard Office
- Fits 5 - 15 People
- Office intensive layout
| Space | Size | Term | Rental Rate | Space Use | Build-Out | Available |
| 1st Floor, Ste #1 | 200 SF | Negotiable | $66.12 CAD/SF/YR $5.51 CAD/SF/MO $13,224 CAD/YR $1,102 CAD/MO | Office | Full Build-Out | Now |
| 1st Floor, Ste #2 | 200 SF | Negotiable | $57.86 CAD/SF/YR $4.82 CAD/SF/MO $11,571 CAD/YR $964.25 CAD/MO | Office | Full Build-Out | Now |
| 1st Floor, Ste Lower Level | 1,800 SF | Negotiable | $18.36 CAD/SF/YR $1.53 CAD/SF/MO $33,052 CAD/YR $2,754 CAD/MO | Office | Full Build-Out | Now |
1st Floor, Ste #1
| Size |
| 200 SF |
| Term |
| Negotiable |
| Rental Rate |
| $66.12 CAD/SF/YR $5.51 CAD/SF/MO $13,224 CAD/YR $1,102 CAD/MO |
| Space Use |
| Office |
| Build-Out |
| Full Build-Out |
| Available |
| Now |
1st Floor, Ste #2
| Size |
| 200 SF |
| Term |
| Negotiable |
| Rental Rate |
| $57.86 CAD/SF/YR $4.82 CAD/SF/MO $11,571 CAD/YR $964.25 CAD/MO |
| Space Use |
| Office |
| Build-Out |
| Full Build-Out |
| Available |
| Now |
1st Floor, Ste Lower Level
| Size |
| 1,800 SF |
| Term |
| Negotiable |
| Rental Rate |
| $18.36 CAD/SF/YR $1.53 CAD/SF/MO $33,052 CAD/YR $2,754 CAD/MO |
| Space Use |
| Office |
| Build-Out |
| Full Build-Out |
| Available |
| Now |
1st Floor, Ste #1
| Size | 200 SF |
| Term | Negotiable |
| Rental Rate | $66.12 CAD/SF/YR |
| Space Use | Office |
| Build-Out | Full Build-Out |
| Available | Now |
Shared Office Space. 1st Floor Corner Suite. Rent = $800.00/mo Gross. Rent includes, all Utilities, WIFI and CAM,s. Located in the HWY 31 Corridor with high visability, ample parking, ramped entrance and ADA restrooms. Shared space also includes conference room, break room and restrooms.
- Fully Built-Out as Standard Office
- Office intensive layout
- Fits 1 - 2 People
- 1 Conference Room
- Central Air and Heating
- Wi-Fi Connectivity
- Natural Light
- After Hours HVAC Available
- Emergency Lighting
- Smoke Detector
- Wheelchair Accessible
1st Floor, Ste #2
| Size | 200 SF |
| Term | Negotiable |
| Rental Rate | $57.86 CAD/SF/YR |
| Space Use | Office |
| Build-Out | Full Build-Out |
| Available | Now |
Shared Office Space. 1st Floor Office Suite avaailable for $700.00/mo Gross. Rent includes all utilities, WIFI and all CAM,s. Available for immediate occupancy. Also included with this rental is a staffed reception area, conference room, break room and ADA restrooms. Located in the HWY 31 corridor with ample parking and a ramped entrace.
- Fully Built-Out as Standard Office
- Office intensive layout
- Fits 1 - 2 People
- 1 Conference Room
- Central Air and Heating
- Reception Area
- Wi-Fi Connectivity
- Fully Carpeted
- Natural Light
- After Hours HVAC Available
- Emergency Lighting
- Smoke Detector
- Wheelchair Accessible
1st Floor, Ste Lower Level
| Size | 1,800 SF |
| Term | Negotiable |
| Rental Rate | $18.36 CAD/SF/YR |
| Space Use | Office |
| Build-Out | Full Build-Out |
| Available | Now |
Lower Level Office Space Available. $1,800.00/mo Gross. Rent includes all utilies, WIFI and all CAM's. Rent includes accesss to 1st Floor conference room, Break Room & Restrooms (ADA 1st floor). Located in the HWY 31 Corridor with ample parking and a ramped entrance.
- Fully Built-Out as Standard Office
- Office intensive layout
- Fits 5 - 15 People
Property Overview
OFFICE SPACE AVAILABLE! Lease from a single office suite (shared) up to 2200 Centrally located in the HWY 31 Corridor(Green Bay Rd) & 53rd Street next to Culver's. High traffic counts with over 37,000 cars per day. Great visibility and easy access to I-94. Ample parking and ramped entrance and ADA restrooms..
- Signage
- Wheelchair Accessible
- Monument Signage
Property Facts
Select Tenants
- Floor
- Tenant Name
- Industry
- 1st
- Huxhold Builders, LLC
- Construction
- 1st
- Infinity Exteriors
- Construction
- 1st
- Prime Realty Group
- Real Estate
- 1st
- Wisconsin Hearing Aide Center
- Professional, Scientific, and Technical Services
Presented by
5300 Green Bay Rd
Hmm, there seems to have been an error sending your message. Please try again.
Thanks! Your message was sent.












