Log In/Sign Up
Your email has been sent.
5303 36 St NW 74,855 SF Industrial Building Edmonton, AB T6B 3V8 $18,500,000 CAD ($247.14 CAD/SF)



Investment Highlights
- Easily accessible to high load corridor Roadways
Executive Summary
Located in the desirable Pylypow Industrial Park in southeast Edmonton. State of the art Stand Alone manufacturing facility built in 2015. Easily accessible to high load corridor Roadways. Great Exposure along 34th Street.
Property Facts
| Price | $18,500,000 CAD | Rentable Building Area | 74,855 SF |
| Price Per SF | $247.14 CAD | No. Stories | 2 |
| Sale Type | Investment or Owner User | Year Built | 2015 |
| Property Type | Industrial | Tenancy | Single |
| Property Subtype | Manufacturing | Parking Ratio | 0.27/1,000 SF |
| Building Class | B | No. Drive In / Grade-Level Doors | 7 |
| Lot Size | 6.97 AC | ||
| Zoning | BE - Business employment | ||
| Price | $18,500,000 CAD |
| Price Per SF | $247.14 CAD |
| Sale Type | Investment or Owner User |
| Property Type | Industrial |
| Property Subtype | Manufacturing |
| Building Class | B |
| Lot Size | 6.97 AC |
| Rentable Building Area | 74,855 SF |
| No. Stories | 2 |
| Year Built | 2015 |
| Tenancy | Single |
| Parking Ratio | 0.27/1,000 SF |
| No. Drive In / Grade-Level Doors | 7 |
| Zoning | BE - Business employment |
Amenities
- Bus Line
- Signage
Utilities
- Lighting - Fluorescent
- Gas
- Water
- Sewer
- Heating
Space Availability
- Space
- Size
- Space Use
- Build-Out
- Available
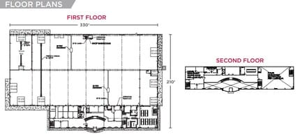
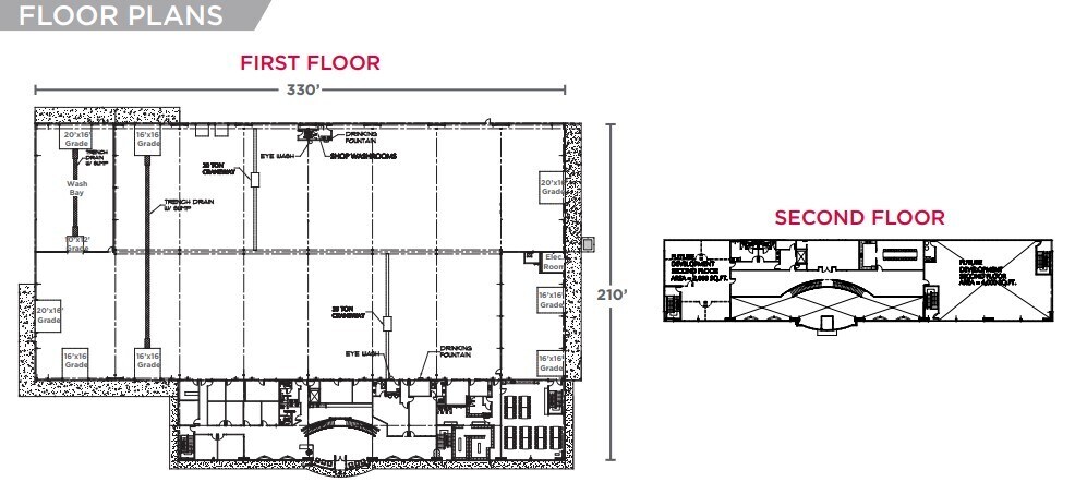
Located in the desirable Pylypow Industrial Park in south east Edmonton. Main Floor Office: 12,222 SF Second Floor Office: 9,833 SF Warehouse: 52,800 SF Total: 74,855 SF
9,833 square feet available for lease. 2nd floor office space.
| Space | Size | Space Use | Build-Out | Available |
| 1st Floor | 65,022 SF | Industrial | Partial Build-Out | 30 Days |
| 2nd Floor | 9,833 SF | Office | Full Build-Out | 30 Days |
1st Floor
| Size |
| 65,022 SF |
| Space Use |
| Industrial |
| Build-Out |
| Partial Build-Out |
| Available |
| 30 Days |
2nd Floor
| Size |
| 9,833 SF |
| Space Use |
| Office |
| Build-Out |
| Full Build-Out |
| Available |
| 30 Days |
1 of 1
Videos
Matterport 3D Exterior
Matterport 3D Tour
Photos
Street View
Street
Map
1st Floor
| Size | 65,022 SF |
| Space Use | Industrial |
| Build-Out | Partial Build-Out |
| Available | 30 Days |
Located in the desirable Pylypow Industrial Park in south east Edmonton. Main Floor Office: 12,222 SF Second Floor Office: 9,833 SF Warehouse: 52,800 SF Total: 74,855 SF
2nd Floor
| Size | 9,833 SF |
| Space Use | Office |
| Build-Out | Full Build-Out |
| Available | 30 Days |
9,833 square feet available for lease. 2nd floor office space.
Somewhat walkable
30/100
Exceptionally drivable
100/100
Limited public transit
30/100
Moderately bikeable
60/100
1 of 5
Videos
Matterport 3D Exterior
Matterport 3D Tour
Photos
Street View
Street
Map
Presented by
5303 36 St NW
Already a member? Log In
Hmm, there seems to have been an error sending your message. Please try again.
Thanks! Your message was sent.



