Your email has been sent.
Highlights
- Excellent access to 57, 60, and 91 Freeways
Features
All Available Space(1)
Display Rental Rate as
- Space
- Size
- Term
- Rental Rate
- Space Use
- Build-Out
- Available
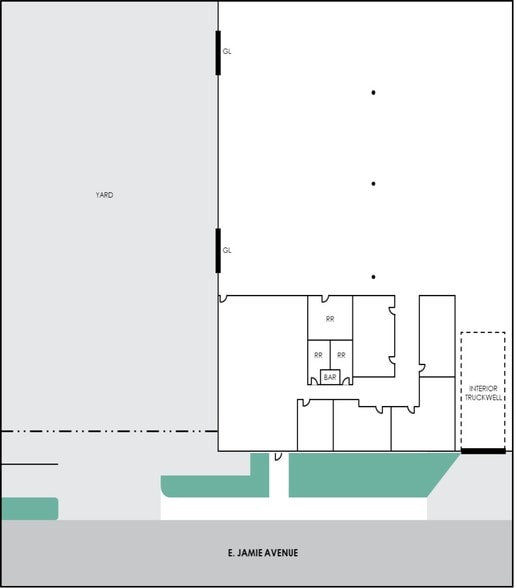
Position your business for success at 531 E. Jamie Avenue, a highly functional freestanding industrial building in the thriving La Habra submarket. This 10,800-square-foot property combines efficient warehouse space with 2,500 square feet of office, creating an ideal environment for distribution, light manufacturing, or service operations. The building features a dock-high loading door, two ground-level doors (12’x12’ and 12’x14’), and a large fenced concrete yard, ensuring smooth logistics and secure outdoor storage. Inside, skylights provide natural light, while office and warehouse restrooms enhance convenience for staff. The property offers 16-foot minimum clearance height, 400 amps of power (verify), and concrete tilt-up construction for durability. Located on a 0.47-acre parcel, this site delivers excellent functionality and flexibility for a range of industrial users. Strategically positioned near the 57 Freeway, with quick access to major routes including the 60, 91, and 39, the property connects you to Orange County and Greater Los Angeles markets. Surrounding communities such as Brea, Fullerton, and Whittier provide a strong labor pool and customer base. This location offers proximity to retail amenities, residential neighborhoods, and key business corridors, making it a prime choice for companies seeking operational efficiency and regional reach.
- Listed rate may not include certain utilities, building services and property expenses
- 2 Drive Ins
- 1 Loading Dock
- Freestanding industrial building with fenced yard
- 16-foot minimum clearance and skylights
- Includes 2,500 SF of dedicated office space
- Space is in Excellent Condition
- Private Restrooms
- Dock-high loading plus two ground-level doors
| Space | Size | Term | Rental Rate | Space Use | Build-Out | Available |
| 1st Floor | 10,800 SF | Negotiable | $25.45 CAD/SF/YR $2.12 CAD/SF/MO $274,904 CAD/YR $22,909 CAD/MO | Industrial | Full Build-Out | Now |
1st Floor
| Size |
| 10,800 SF |
| Term |
| Negotiable |
| Rental Rate |
| $25.45 CAD/SF/YR $2.12 CAD/SF/MO $274,904 CAD/YR $22,909 CAD/MO |
| Space Use |
| Industrial |
| Build-Out |
| Full Build-Out |
| Available |
| Now |
1st Floor
| Size | 10,800 SF |
| Term | Negotiable |
| Rental Rate | $25.45 CAD/SF/YR |
| Space Use | Industrial |
| Build-Out | Full Build-Out |
| Available | Now |
Position your business for success at 531 E. Jamie Avenue, a highly functional freestanding industrial building in the thriving La Habra submarket. This 10,800-square-foot property combines efficient warehouse space with 2,500 square feet of office, creating an ideal environment for distribution, light manufacturing, or service operations. The building features a dock-high loading door, two ground-level doors (12’x12’ and 12’x14’), and a large fenced concrete yard, ensuring smooth logistics and secure outdoor storage. Inside, skylights provide natural light, while office and warehouse restrooms enhance convenience for staff. The property offers 16-foot minimum clearance height, 400 amps of power (verify), and concrete tilt-up construction for durability. Located on a 0.47-acre parcel, this site delivers excellent functionality and flexibility for a range of industrial users. Strategically positioned near the 57 Freeway, with quick access to major routes including the 60, 91, and 39, the property connects you to Orange County and Greater Los Angeles markets. Surrounding communities such as Brea, Fullerton, and Whittier provide a strong labor pool and customer base. This location offers proximity to retail amenities, residential neighborhoods, and key business corridors, making it a prime choice for companies seeking operational efficiency and regional reach.
- Listed rate may not include certain utilities, building services and property expenses
- Includes 2,500 SF of dedicated office space
- 2 Drive Ins
- Space is in Excellent Condition
- 1 Loading Dock
- Private Restrooms
- Freestanding industrial building with fenced yard
- Dock-high loading plus two ground-level doors
- 16-foot minimum clearance and skylights
Warehouse Facility Facts
Presented by
531 Jamie Ave
Hmm, there seems to have been an error sending your message. Please try again.
Thanks! Your message was sent.



