Log In/Sign Up
Your email has been sent.
535 E Turkeyfoot Lake Rd 7,500 SF Industrial Building Akron, OH 44319 $476,178 CAD ($63.49 CAD/SF)



Investment Highlights
- Positioned on 2.31 acres with frontage along Turkeyfoot Lake Road for strong visibility.
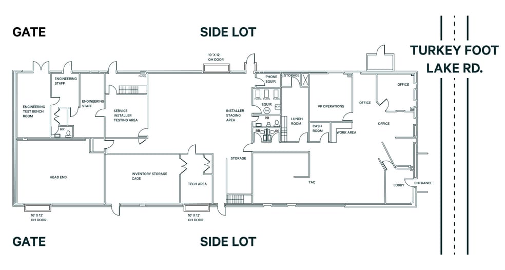
- Equipped with three 10’ x 12’ drive-in doors to accommodate efficient access for vehicles and goods.
- Close proximity to major transportation routes including I-77, enhancing connectivity within the Akron-Canton region.
- Combination of 2,800 SF office and 4,700 SF warehouse space, delivering operational flexibility.
- Zoned B-1 General Business, allowing a range of uses across service, trade, and light industrial sectors.
- Opportunity to improve and reposition for value-add return through renovations and site improvements.
Executive Summary
Available for $350,000, this ±7,500 SF industrial property offers significant value-add potential in the highly desirable Portage Lakes area of Summit County. Set on a 2.31-acre parcel, the site provides a flexible combination of 2,800 SF of office space and 4,700 SF of warehouse space, making it an attractive option for owner-users or investors seeking redevelopment or repositioning opportunities.
The property features three 10’ x 12’ drive-in doors, accommodating various loading operations, and is supported by 200A 120/208V power service. Its B-1 General Business zoning allows for a range of potential uses. Convenient access to I-77 and key regional corridors positions the site within a strong labor market and close to retail, residential, and commercial activity in southern Akron.
Given its location, acreage, and flexible structure, this asset offers a compelling opportunity to enhance functionality through modernization while capitalizing on long-term growth in the area.
The property features three 10’ x 12’ drive-in doors, accommodating various loading operations, and is supported by 200A 120/208V power service. Its B-1 General Business zoning allows for a range of potential uses. Convenient access to I-77 and key regional corridors positions the site within a strong labor market and close to retail, residential, and commercial activity in southern Akron.
Given its location, acreage, and flexible structure, this asset offers a compelling opportunity to enhance functionality through modernization while capitalizing on long-term growth in the area.
Property Facts
1 1
Somewhat walkable
30/100
Exceptionally drivable
100/100
Property Taxes
| Parcel Number | 28-07493 | Improvements Assessment | $142,920 CAD |
| Land Assessment | $53,099 CAD | Total Assessment | $196,020 CAD |
Property Taxes
Parcel Number
28-07493
Land Assessment
$53,099 CAD
Improvements Assessment
$142,920 CAD
Total Assessment
$196,020 CAD
1 of 7
Videos
Matterport 3D Exterior
Matterport 3D Tour
Photos
Street View
Street
Map
1 of 1
Presented by
535 E Turkeyfoot Lake Rd
Already a member? Log In
Hmm, there seems to have been an error sending your message. Please try again.
Thanks! Your message was sent.
