Log In/Sign Up
Your email has been sent.
535 State Route 3 - New Destiny Ministries 15,300 SF Specialty Building Offered at $2,199,936 CAD in Cahokia, IL 62206



Investment Highlights
- Located in a HUBZone
- AVerage Daily Traffic is about 13,500 VPD
- ADA Compliant Bathrooms
- 5.35 Acres for Future Development
Executive Summary
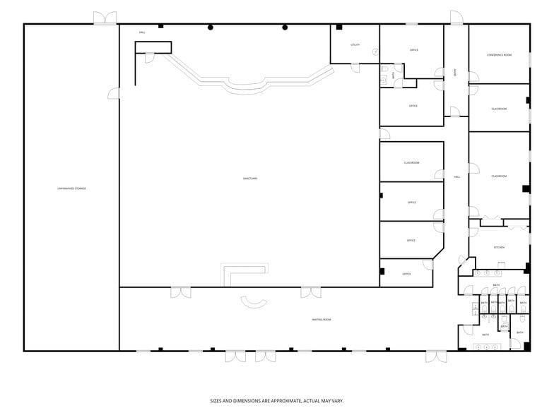
This exceptional 15,000 square foot church facility presents a rare commercial real estate opportunity just minutes from downtown St. Louis — located in Cahokia, Illinois, a federally designated HUBZone with significant incentives for business and community investment. Set on 5.35 acres with ample parking and room for future expansion, this versatile institutional property is ideal for St. Louis-area religious organizations, nonprofits, educational institutions, or community-focused enterprises looking for more space at a fraction of the cost.
Property Highlights include: 750-seat main sanctuary, suitable for large worship services, events, and assemblies. Specialized Features: Heated baptismal pool, multiple classrooms, and dedicated office spaces. There are ADA-compliant restrooms throughout. The church consists of 4 parcels totaling 5.35 acres with abundant on-site parking and expansion potential. Located in Cahokia, IL, just minutes from downtown St. Louis via I-255 and the Stan Musial Veterans Memorial Bridge. As a bonus the property is located within a federally designated HUBZone, unlocking potential tax benefits and government contracting opportunities. This property supports a wide range of institutional and community uses, including active congregations, faith-based organizations, charter or private schools, daycare or early childhood education centers, event and banquet venues, nonprofit headquarters, and government or municipal facilities. Located in the St. Louis Metro Area, this is ideal for St. Louis-based organizations seeking room to grow, Cahokia offers a compelling alternative to high-cost city real estate — with the same regional accessibility and none of the urban price premium. This facility delivers 15,000 square feet, a 750-person capacity sanctuary, and 5.35 acres of land at a value that would be nearly impossible to replicate across the river. Whether you're relocating, expanding, or planning a new location, this property puts your organization within easy reach of the entire St. Louis metropolitan market. Why Cahokia, IL - it's situated in the St. Louis Metro East region and provides easy access to downtown St. Louis in just minutes via Interstate 255 and major regional connectors. The location offers high visibility(about 13,500 VPD) and strong connectivity to the broader bi-state market spanning Missouri and Illinois, making it an ideal hub for any organization serving the greater St. Louis community. Owner will be installing one HVAC unit and putting on a new metal roof. This property includes 4 parcels: 06-03.0-314-003, 06-03.0-314-004, 06-03.0-314-012, 06-03.0-314-010
Property Highlights include: 750-seat main sanctuary, suitable for large worship services, events, and assemblies. Specialized Features: Heated baptismal pool, multiple classrooms, and dedicated office spaces. There are ADA-compliant restrooms throughout. The church consists of 4 parcels totaling 5.35 acres with abundant on-site parking and expansion potential. Located in Cahokia, IL, just minutes from downtown St. Louis via I-255 and the Stan Musial Veterans Memorial Bridge. As a bonus the property is located within a federally designated HUBZone, unlocking potential tax benefits and government contracting opportunities. This property supports a wide range of institutional and community uses, including active congregations, faith-based organizations, charter or private schools, daycare or early childhood education centers, event and banquet venues, nonprofit headquarters, and government or municipal facilities. Located in the St. Louis Metro Area, this is ideal for St. Louis-based organizations seeking room to grow, Cahokia offers a compelling alternative to high-cost city real estate — with the same regional accessibility and none of the urban price premium. This facility delivers 15,000 square feet, a 750-person capacity sanctuary, and 5.35 acres of land at a value that would be nearly impossible to replicate across the river. Whether you're relocating, expanding, or planning a new location, this property puts your organization within easy reach of the entire St. Louis metropolitan market. Why Cahokia, IL - it's situated in the St. Louis Metro East region and provides easy access to downtown St. Louis in just minutes via Interstate 255 and major regional connectors. The location offers high visibility(about 13,500 VPD) and strong connectivity to the broader bi-state market spanning Missouri and Illinois, making it an ideal hub for any organization serving the greater St. Louis community. Owner will be installing one HVAC unit and putting on a new metal roof. This property includes 4 parcels: 06-03.0-314-003, 06-03.0-314-004, 06-03.0-314-012, 06-03.0-314-010
Property Facts
Amenities
- Air Conditioning
- Smoke Detector
1 1
Somewhat walkable
20/100
Exceptionally drivable
100/100
Limited public transit
30/100
Fairly bikeable
40/100
Property Taxes
| Parcel Numbers | Improvements Assessment | $0 CAD | |
| Land Assessment | $18,658 CAD | Total Assessment | $18,658 CAD |
Property Taxes
Parcel Numbers
Land Assessment
$18,658 CAD
Improvements Assessment
$0 CAD
Total Assessment
$18,658 CAD
1 of 21
Videos
Matterport 3D Exterior
Matterport 3D Tour
Photos
Street View
Street
Map
1 of 1
Presented by
535 State Route 3 - New Destiny Ministries
Already a member? Log In
Hmm, there seems to have been an error sending your message. Please try again.
Thanks! Your message was sent.
