Log In/Sign Up
Your email has been sent.
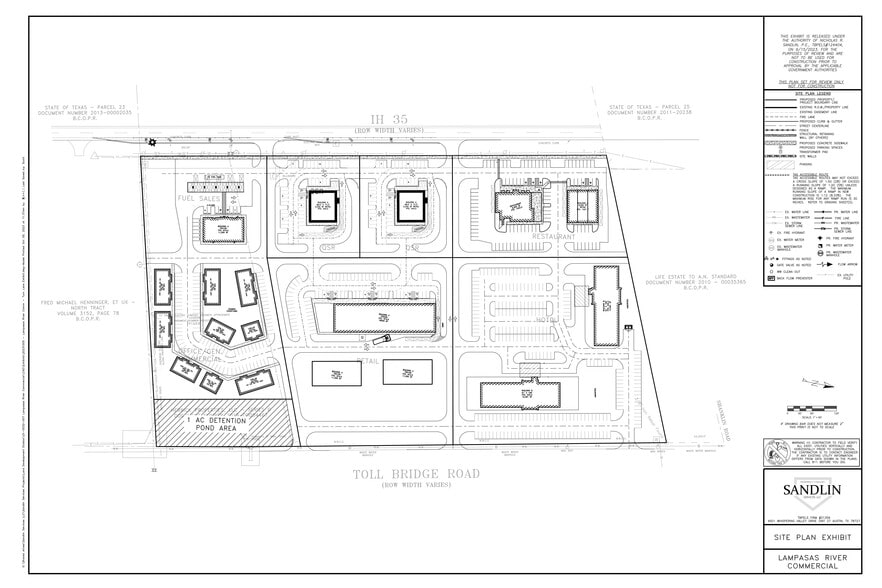
5353 N I-35 - I-35 Frontage 1-5AC Mixed Use Commercial Lots 19.47 Acres of Commercial Land in Belton, TX 76513


INVESTMENT HIGHLIGHTS
- I-35 Highway Frontage Lots - Incredible Visibility Opportunity
- Belton is Growing Fast, especially in the Commercial Corridor Districts along the highway
- Expo Center recently rebranded by Cadence Bank, 5 minutes from site
- Property situated north of the I-35 exit ramp, Exit 290/Shanklin Rd.
- Major new developments in arms reach of subject site taking place
- Special pricing available to Major Brand Hotel Operators, inquire within
EXECUTIVE SUMMARY
Sales of any part of the property includes all the shared common area items for the entire site like detention, crossroad(s), including if any replating/rezoning steps needed at the property. Feasibility Periods will expire upon recording of a final replat for any portion of the property being purchased, current estimates are 6 months.
From Northbound Exit 290 (Shanklin Rd.) the property access is an est. 1/2 mile along the Frontage Rd. The City will be conducting new, road-widening improvements on Toll Bridge Rd. to help accommodate the increased density of traffic flow in the immediate area, mainly from the new, est. 1900 single-family homes being developed just one minute down the road, developer has already given land for the new elementary schools as well. All new and upgraded utility infrastructure by the City is located on the subject property, including Atmos Gas. The utility easement and stubs are located along Toll Bridge Rd.
Owner is preparing to break ground with an initial, est. 15K sf multi-tenant Retail building on the site, which will have room for a sit-down restaurant with outside patio.
Special pricing available to Major Brand Hotel Operators, inquire within.
Lot Pricing w/All Utilities:
Frontage Rd. = $18.00sf with focus on Gas/Convenience, Drive-Thru/QSR, Sit-Down Food;
Back lots = $10-4.00sf with focus on Hotels (2 adjacent 2.5AC proforma sites, up to 4-stories per current code, 5-minutes to Cadence EXPO Center), Community Indoor Sports/Event Center, Specialty Business, Single/Multi-Tenant Retail, Office/Medical Condo Park setting. See attached Concept Design, subject to customized lot definition and use per each lot sale.
From Northbound Exit 290 (Shanklin Rd.) the property access is an est. 1/2 mile along the Frontage Rd. The City will be conducting new, road-widening improvements on Toll Bridge Rd. to help accommodate the increased density of traffic flow in the immediate area, mainly from the new, est. 1900 single-family homes being developed just one minute down the road, developer has already given land for the new elementary schools as well. All new and upgraded utility infrastructure by the City is located on the subject property, including Atmos Gas. The utility easement and stubs are located along Toll Bridge Rd.
Owner is preparing to break ground with an initial, est. 15K sf multi-tenant Retail building on the site, which will have room for a sit-down restaurant with outside patio.
Special pricing available to Major Brand Hotel Operators, inquire within.
Lot Pricing w/All Utilities:
Frontage Rd. = $18.00sf with focus on Gas/Convenience, Drive-Thru/QSR, Sit-Down Food;
Back lots = $10-4.00sf with focus on Hotels (2 adjacent 2.5AC proforma sites, up to 4-stories per current code, 5-minutes to Cadence EXPO Center), Community Indoor Sports/Event Center, Specialty Business, Single/Multi-Tenant Retail, Office/Medical Condo Park setting. See attached Concept Design, subject to customized lot definition and use per each lot sale.
PROPERTY FACTS
1 LOT AVAILABLE
Lot
| Lot Size | 19.47 AC |
| Lot Size | 19.47 AC |
1-5AC mixed-use lots within 19.47AC on the Northbound frontage road near intersection of I-35 & Shanklin Rd., Exit 290. Property is flat w/no floodplain. All utilities available at site: Electricity, Water, Sewer, Gas. Est. 1,000 feet of frontage.
DESCRIPTION
The property is flat with no flood plain issues and is AG Exempt for tax purposes. Belton P&Z is very familiar with this site for any inquiries about your use or other needs.
1 1
PROPERTY TAXES
| Parcel Number | 99276 | Improvements Assessment | $0 CAD |
| Land Assessment | $1,465,237 CAD | Total Assessment | $1,465,237 CAD |
PROPERTY TAXES
Parcel Number
99276
Land Assessment
$1,465,237 CAD
Improvements Assessment
$0 CAD
Total Assessment
$1,465,237 CAD
1 of 3
VIDEOS
MATTERPORT 3D EXTERIOR
MATTERPORT 3D TOUR
PHOTOS
STREET VIEW
STREET
MAP
1 of 1
Presented by
Ferris Commercial Real Estate
5353 N I-35 - I-35 Frontage 1-5AC Mixed Use Commercial Lots
Already a member? Log In
Hmm, there seems to have been an error sending your message. Please try again.
Thanks! Your message was sent.
