Your email has been sent.
Sorrento Towers 5355 Mira Sorrento Pl 2,077 - 47,212 SF of 4-Star Office Space Available in San Diego, CA 92121



HIGHLIGHTS
- Entire campus has been renovated with newer and modernized common areas
- Shared executive conference room and training rooms with a dedicated break room on the 2nd floor
- Free covered parking
- Fully renovated fitness center with showers and lockers
- On-site property management
- Updated outdoor patio areas and event space
ALL AVAILABLE SPACES(6)
Display Rental Rate as
- SPACE
- SIZE
- TERM
- RENTAL RATE
- SPACE USE
- CONDITION
- AVAILABLE
Contiguous with Suite 265 for 4,735 SF
- Listed lease rate plus proportional share of electrical cost
- Mostly Open Floor Plan Layout
- 1 Conference Room
- Secure Storage
- Fully Built-Out as Standard Office
- 3 Private Offices
- Can be combined with additional space(s) for up to 4,735 SF of adjacent space
- On-Site property manager and security
Creative office build-out with open to structure ceilings. Glass conference room, 2 private offices, cafe-style break room, reception area, and bull pen area for cubes. Contiguous with Suite 260 for 4,735 SF
- Listed lease rate plus proportional share of electrical cost
- Mostly Open Floor Plan Layout
- 1 Conference Room
- Can be combined with additional space(s) for up to 4,735 SF of adjacent space
- Reception Area
- Plenty of Natural Light
- Conferencing and Training Center
- Fully Built-Out as Standard Office
- 2 Private Offices
- Space is in Excellent Condition
- Central Air Conditioning
- Kitchen
- New Fitness Center and Locker Room
- WI-FI Access
Full floor can be leased on a direct basis with Landlord. Please call brokers for further detail.
- Listed lease rate plus proportional share of electrical cost
- Mostly Open Floor Plan Layout
- 3 Conference Rooms
- Central Air Conditioning
- Laboratory
- Private Restrooms
- Natural Light
- New Fitness Center and Locker Room
- WI-FI Access
- Fully Built-Out as Standard Office
- 16 Private Offices
- Space is in Excellent Condition
- Kitchen
- Elevator Access
- Secure Storage
- Plenty of Natural Light
- Conferencing and Training Center
Conference room, huddle room, 5 private offices, reception, break room, storage room, IT room and open office Contiguous with Suite 650 for 12,598 SF
- Listed lease rate plus proportional share of electrical cost
- Mostly Open Floor Plan Layout
- 1 Conference Room
- Can be combined with additional space(s) for up to 12,598 SF of adjacent space
- Kitchen
- Plenty of Natural Light
- Conferencing and Training Center
- Fully Built-Out as Standard Office
- 5 Private Offices
- Space is in Excellent Condition
- Reception Area
- Natural Light
- New Fitness Center and Locker Room
- WI-FI Access
Contiguous with Suite 600 for 12,598 SF
- Listed lease rate plus proportional share of electrical cost
- Mostly Open Floor Plan Layout
- 1 Conference Room
- Natural Light
- Partially Built-Out as Standard Office
- 11 Private Offices
- Can be combined with additional space(s) for up to 12,598 SF of adjacent space
- High Image Glass Facade Exterior
Modern, open office layout with double door reception off the elevator lobby. Current layout includes private offices, glass conference room, open break room, and an IT/Storage Room.
- Listed lease rate plus proportional share of electrical cost
- Mostly Open Floor Plan Layout
- 1 Conference Room
- Reception Area
- Laboratory
- Print/Copy Room
- Open-Plan
- New Fitness Center and Locker Room
- WI-FI Access
- Fully Built-Out as Standard Office
- 4 Private Offices
- Space is in Excellent Condition
- Kitchen
- Elevator Access
- Natural Light
- Plenty of natural light
- Conferencing and Training Center
| Space | Size | Term | Rental Rate | Space Use | Condition | Available |
| 2nd Floor, Ste 260 | 2,077 SF | Negotiable | $72.87 CAD/SF/YR $6.07 CAD/SF/MO $151,345 CAD/YR $12,612 CAD/MO | Office | Full Build-Out | Now |
| 2nd Floor, Ste 265 | 2,658 SF | Negotiable | $72.87 CAD/SF/YR $6.07 CAD/SF/MO $193,681 CAD/YR $16,140 CAD/MO | Office | Full Build-Out | Now |
| 3rd Floor, Ste 300 | 21,487 SF | Negotiable | $72.87 CAD/SF/YR $6.07 CAD/SF/MO $1,565,694 CAD/YR $130,474 CAD/MO | Office | Full Build-Out | 90 Days |
| 6th Floor, Ste 600 | 5,611 SF | Negotiable | $72.87 CAD/SF/YR $6.07 CAD/SF/MO $408,857 CAD/YR $34,071 CAD/MO | Office | Full Build-Out | Now |
| 6th Floor, Ste 650 | 6,987 SF | Negotiable | $72.87 CAD/SF/YR $6.07 CAD/SF/MO $509,122 CAD/YR $42,427 CAD/MO | Office | Partial Build-Out | 2026-04-01 |
| 7th Floor, Ste 700 | 8,392 SF | Negotiable | $72.87 CAD/SF/YR $6.07 CAD/SF/MO $611,500 CAD/YR $50,958 CAD/MO | Office | Full Build-Out | Now |
2nd Floor, Ste 260
| Size |
| 2,077 SF |
| Term |
| Negotiable |
| Rental Rate |
| $72.87 CAD/SF/YR $6.07 CAD/SF/MO $151,345 CAD/YR $12,612 CAD/MO |
| Space Use |
| Office |
| Condition |
| Full Build-Out |
| Available |
| Now |
2nd Floor, Ste 265
| Size |
| 2,658 SF |
| Term |
| Negotiable |
| Rental Rate |
| $72.87 CAD/SF/YR $6.07 CAD/SF/MO $193,681 CAD/YR $16,140 CAD/MO |
| Space Use |
| Office |
| Condition |
| Full Build-Out |
| Available |
| Now |
3rd Floor, Ste 300
| Size |
| 21,487 SF |
| Term |
| Negotiable |
| Rental Rate |
| $72.87 CAD/SF/YR $6.07 CAD/SF/MO $1,565,694 CAD/YR $130,474 CAD/MO |
| Space Use |
| Office |
| Condition |
| Full Build-Out |
| Available |
| 90 Days |
6th Floor, Ste 600
| Size |
| 5,611 SF |
| Term |
| Negotiable |
| Rental Rate |
| $72.87 CAD/SF/YR $6.07 CAD/SF/MO $408,857 CAD/YR $34,071 CAD/MO |
| Space Use |
| Office |
| Condition |
| Full Build-Out |
| Available |
| Now |
6th Floor, Ste 650
| Size |
| 6,987 SF |
| Term |
| Negotiable |
| Rental Rate |
| $72.87 CAD/SF/YR $6.07 CAD/SF/MO $509,122 CAD/YR $42,427 CAD/MO |
| Space Use |
| Office |
| Condition |
| Partial Build-Out |
| Available |
| 2026-04-01 |
7th Floor, Ste 700
| Size |
| 8,392 SF |
| Term |
| Negotiable |
| Rental Rate |
| $72.87 CAD/SF/YR $6.07 CAD/SF/MO $611,500 CAD/YR $50,958 CAD/MO |
| Space Use |
| Office |
| Condition |
| Full Build-Out |
| Available |
| Now |
2nd Floor, Ste 260
| Size | 2,077 SF |
| Term | Negotiable |
| Rental Rate | $72.87 CAD/SF/YR |
| Space Use | Office |
| Condition | Full Build-Out |
| Available | Now |
Contiguous with Suite 265 for 4,735 SF
- Listed lease rate plus proportional share of electrical cost
- Fully Built-Out as Standard Office
- Mostly Open Floor Plan Layout
- 3 Private Offices
- 1 Conference Room
- Can be combined with additional space(s) for up to 4,735 SF of adjacent space
- Secure Storage
- On-Site property manager and security
2nd Floor, Ste 265
| Size | 2,658 SF |
| Term | Negotiable |
| Rental Rate | $72.87 CAD/SF/YR |
| Space Use | Office |
| Condition | Full Build-Out |
| Available | Now |
Creative office build-out with open to structure ceilings. Glass conference room, 2 private offices, cafe-style break room, reception area, and bull pen area for cubes. Contiguous with Suite 260 for 4,735 SF
- Listed lease rate plus proportional share of electrical cost
- Fully Built-Out as Standard Office
- Mostly Open Floor Plan Layout
- 2 Private Offices
- 1 Conference Room
- Space is in Excellent Condition
- Can be combined with additional space(s) for up to 4,735 SF of adjacent space
- Central Air Conditioning
- Reception Area
- Kitchen
- Plenty of Natural Light
- New Fitness Center and Locker Room
- Conferencing and Training Center
- WI-FI Access
3rd Floor, Ste 300
| Size | 21,487 SF |
| Term | Negotiable |
| Rental Rate | $72.87 CAD/SF/YR |
| Space Use | Office |
| Condition | Full Build-Out |
| Available | 90 Days |
Full floor can be leased on a direct basis with Landlord. Please call brokers for further detail.
- Listed lease rate plus proportional share of electrical cost
- Fully Built-Out as Standard Office
- Mostly Open Floor Plan Layout
- 16 Private Offices
- 3 Conference Rooms
- Space is in Excellent Condition
- Central Air Conditioning
- Kitchen
- Laboratory
- Elevator Access
- Private Restrooms
- Secure Storage
- Natural Light
- Plenty of Natural Light
- New Fitness Center and Locker Room
- Conferencing and Training Center
- WI-FI Access
6th Floor, Ste 600
| Size | 5,611 SF |
| Term | Negotiable |
| Rental Rate | $72.87 CAD/SF/YR |
| Space Use | Office |
| Condition | Full Build-Out |
| Available | Now |
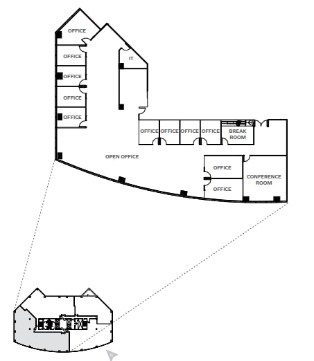
Conference room, huddle room, 5 private offices, reception, break room, storage room, IT room and open office Contiguous with Suite 650 for 12,598 SF
- Listed lease rate plus proportional share of electrical cost
- Fully Built-Out as Standard Office
- Mostly Open Floor Plan Layout
- 5 Private Offices
- 1 Conference Room
- Space is in Excellent Condition
- Can be combined with additional space(s) for up to 12,598 SF of adjacent space
- Reception Area
- Kitchen
- Natural Light
- Plenty of Natural Light
- New Fitness Center and Locker Room
- Conferencing and Training Center
- WI-FI Access
6th Floor, Ste 650
| Size | 6,987 SF |
| Term | Negotiable |
| Rental Rate | $72.87 CAD/SF/YR |
| Space Use | Office |
| Condition | Partial Build-Out |
| Available | 2026-04-01 |
Contiguous with Suite 600 for 12,598 SF
- Listed lease rate plus proportional share of electrical cost
- Partially Built-Out as Standard Office
- Mostly Open Floor Plan Layout
- 11 Private Offices
- 1 Conference Room
- Can be combined with additional space(s) for up to 12,598 SF of adjacent space
- Natural Light
- High Image Glass Facade Exterior
7th Floor, Ste 700
| Size | 8,392 SF |
| Term | Negotiable |
| Rental Rate | $72.87 CAD/SF/YR |
| Space Use | Office |
| Condition | Full Build-Out |
| Available | Now |
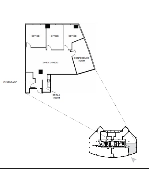
Modern, open office layout with double door reception off the elevator lobby. Current layout includes private offices, glass conference room, open break room, and an IT/Storage Room.
- Listed lease rate plus proportional share of electrical cost
- Fully Built-Out as Standard Office
- Mostly Open Floor Plan Layout
- 4 Private Offices
- 1 Conference Room
- Space is in Excellent Condition
- Reception Area
- Kitchen
- Laboratory
- Elevator Access
- Print/Copy Room
- Natural Light
- Open-Plan
- Plenty of natural light
- New Fitness Center and Locker Room
- Conferencing and Training Center
- WI-FI Access
PROPERTY OVERVIEW
Sorrento Towers serves as the “gateway” to San Diego’s technology hub, Sorrento Mesa. Towers is made up of two Class A office buildings totaling 295,000 SF, located next to numerous fast casual and sit down dining options. This campus setting provides the ultimate environment for today’s most innovative companies. Sorrento Towers provides unparalleled amenities, which include: a cutting edge fitness center complete with shower and locker facilities, state-of-the art conference center, outdoor seating and gathering areas, covered parking and on-site management. The project is ideally situated on the western edge of Sorrento Mesa, which provides direct access to Interstate 805 and is in close proximity to the Amtrak station. Direct access to retail and food service amenities.
- Conferencing Facility
- Convenience Store
- Courtyard
- Fitness Center
- Food Court
- Food Service
- Property Manager on Site
- Signage
- Energy Star Labeled
- Natural Light
- Shower Facilities
- Outdoor Seating
PROPERTY FACTS
SUSTAINABILITY
SUSTAINABILITY
LEED Certification Developed by the U.S. Green Building Council (USGBC), the Leadership in Energy and Environmental Design (LEED) is a green building certification program focused on the design, construction, operation, and maintenance of green buildings, homes, and neighborhoods, which aims to help building owners and operators be environmentally responsible and use resources efficiently. LEED certification is a globally recognized symbol of sustainability achievement and leadership. To achieve LEED certification, a project earns points by adhering to prerequisites and credits that address carbon, energy, water, waste, transportation, materials, health and indoor environmental quality. Projects go through a verification and review process and are awarded points that correspond to a level of LEED certification: Platinum (80+ points) Gold (60-79 points) Silver (50-59 points) Certified (40-49 points)
Presented by
Sorrento Towers | 5355 Mira Sorrento Pl
Hmm, there seems to have been an error sending your message. Please try again.
Thanks! Your message was sent.














