Your email has been sent.
536 Broad St 820 - 2,541 SF Medical Condo Units Offered at $280,791 - $876,614 CAD Per Unit in Weymouth, MA 02189



Investment Highlights
- Ideal opportunity for medical end user
- Strategically situated just 3 miles from South Shore Hospital
- Ideally positioned within a dense residential neighborhood
- Large parking lot with 70 surface parking spaces
- 1 mile away from East Weymouth Commuter Rail Station
Data Room Click Here to Access
- Offering Memorandum
2 Units Available
Unit 3
| Unit Size | 820 SF | Condo Use | Medical |
| Price | $280,791 CAD | Sale Type | Owner User |
| Price Per SF | $342.43 CAD | No. Parking Spaces | 70 |
| Unit Size | 820 SF |
| Price | $280,791 CAD |
| Price Per SF | $342.43 CAD |
| Condo Use | Medical |
| Sale Type | Owner User |
| No. Parking Spaces | 70 |
Description
Conviser Property Group is pleased to present for sale a prime medical office condominium located at 536 Broad Street, Units #3, Weymouth, MA ("Property"). This efficient and affordable ±820 square foot corner unit foot medical or professional office condominium is ideal for an owner-user seeking a manageable footprint at an accessible price point. The space features 3 rooms, a bathroom, and kitchenette.
-Ideal opportunity for small medical or professional end user
-Large parking lot with 70 surface parking spaces
-Strategically situated just 3 miles from South Shore Hospital
-1 mile away from East Weymouth Commuter Rail Station
-Ideally positioned within a dense residential neighborhood
Sale Notes
Conviser Property Group is pleased to present for sale a prime medical office condominium located at 536 Broad Street, Units #3, Weymouth, MA ("Property"). This efficient and affordable ±820 square foot corner unit foot medical or professional office condominium is ideal for an owner-user seeking a manageable footprint at an accessible price point. The space features 3 rooms, a bathroom, and kitchenette.
-Ideal opportunity for small medical or professional end user
-Large parking lot with 70 surface parking spaces
-Strategically situated just 3 miles from South Shore Hospital
-1 mile away from East Weymouth Commuter Rail Station
-Ideally positioned within a dense residential neighborhood
Unit 6-10
| Unit Size | 2,541 SF | Condo Use | Medical |
| Price | $876,614 CAD | Sale Type | Owner User |
| Price Per SF | $344.99 CAD | No. Parking Spaces | 70 |
| Unit Size | 2,541 SF |
| Price | $876,614 CAD |
| Price Per SF | $344.99 CAD |
| Condo Use | Medical |
| Sale Type | Owner User |
| No. Parking Spaces | 70 |
Description
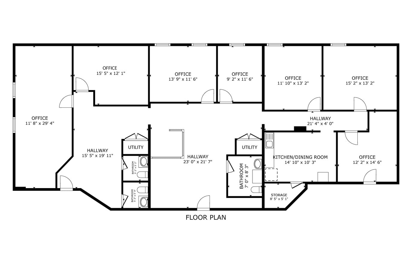
Conviser Property Group is pleased to present for sale a prime medical office condominium located at 536 Broad Street, Units #6–10, Weymouth, MA (“Property”). This highly functional ±2,541 square foot corner unit offers a rare turnkey opportunity for a medical end user seeking immediate occupancy in a professionally managed medical building. The space features 10 rooms, 3 private bathrooms, and a dedicated kitchenette, providing an efficient and comfortable environment for staff and visitors. Its corner positioning ensures abundant natural light and excellent visibility within the building.
Conviser Property Group is pleased to present for sale a prime medical office condominium located at 536 Broad Street, Units #6–10, Weymouth, MA (“Property”). This highly functional ±2,541 square foot corner unit offers a rare turnkey opportunity for a medical end user seeking immediate occupancy in a professionally managed medical building. The space features 10 rooms, 3 private bathrooms, and a dedicated kitchenette, providing an efficient and comfortable environment for staff and visitors. Its corner positioning ensures abundant natural light and excellent visibility within the building.
- Ideal opportunity for medical end user
- Large parking lot with 70 surface parking spaces
- Strategically situated just 3 miles from South Shore Hospital
- 1 mile away from East Weymouth Commuter Rail Station
Ideally positioned within a dense residential neighborhood
Sale Notes
Conviser Property Group is pleased to present for sale a prime medical office condominium located at 536 Broad Street, Units #6–10, Weymouth, MA (“Property”). This highly functional ±2,541 square foot corner unit offers a rare turnkey opportunity for a medical end user seeking immediate occupancy in a professionally managed medical building. The space features 10 rooms, 3 private bathrooms, and a dedicated kitchenette, providing an efficient and comfortable environment for staff and visitors. Its corner positioning ensures abundant natural light and excellent visibility within the building.
Conviser Property Group is pleased to present for sale a prime medical office condominium located at 536 Broad Street, Units #6–10, Weymouth, MA (“Property”). This highly functional ±2,541 square foot corner unit offers a rare turnkey opportunity for a medical end user seeking immediate occupancy in a professionally managed medical building. The space features 10 rooms, 3 private bathrooms, and a dedicated kitchenette, providing an efficient and comfortable environment for staff and visitors. Its corner positioning ensures abundant natural light and excellent visibility within the building.
- Ideal opportunity for medical end user
- Large parking lot with 70 surface parking spaces
- Strategically situated just 3 miles from South Shore Hospital
- 1 mile away from East Weymouth Commuter Rail Station
Ideally positioned within a dense residential neighborhood
floor plan unit 6-10
Property Facts
Presented by
536 Broad St
Hmm, there seems to have been an error sending your message. Please try again.
Thanks! Your message was sent.

