Log In/Sign Up
Your email has been sent.
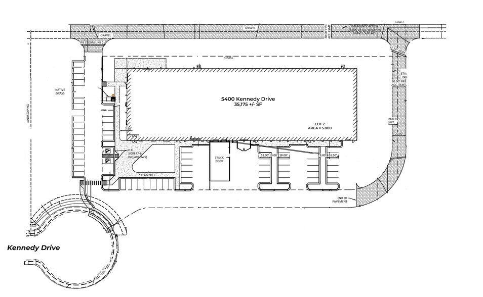
5400 Kennedy
Longmont, CO 80503
Land For Sale
·
5.01 AC


Property Facts
| Sale Type | Investment or Owner User | Property Subtype | Commercial |
| No. Lots | 1 | Total Lot Size | 5.01 AC |
| Property Type | Land | Cross Streets | N. 75th Street |
| Zoning | N-PE | ||
| Sale Type | Investment or Owner User |
| No. Lots | 1 |
| Property Type | Land |
| Property Subtype | Commercial |
| Total Lot Size | 5.01 AC |
| Cross Streets | N. 75th Street |
| Zoning | N-PE |
1 Lot Available
Lot 2
| Price | $1,295,477 CAD | Lot Size | 5.01 AC |
| Price Per AC | $258,578.24 CAD |
| Price | $1,295,477 CAD |
| Price Per AC | $258,578.24 CAD |
| Lot Size | 5.01 AC |
Located in Southwest Longmont, near the Seagate campus. Easy access to the Longmont business community, several amenities and approximately 15 minutes to Boulder. Land for sale with an approved building of 35,892 square feet.
Description
Land for sale with an approved building of 35,892 square feet. Located in Southwest Longmont, near the Seagate campus. Easy access to the Longmont business community, several amenities and approximately 15 minutes to Boulder. 75 parking spaces. Cul de sac location.
1 of 3
Videos
Matterport 3D Exterior
Matterport 3D Tour
Photos
Street View
Street
Map
