Your email has been sent.
Park Highlights
- Direct access to Phoenix Metro Light Rail.
- Equipped with grade-level loading and truckwells.
- Ample on-site parking for tenants and visitors.
- Convenient connectivity to all major freeways.
- HVAC and evaporative cooling throughout the property.
- Close proximity to Sky Harbor International Airport.
Park Facts
| Total Space Available | 4,505 SF | Park Type | Industrial Park |
| Total Space Available | 4,505 SF |
| Park Type | Industrial Park |
All Available Space(1)
Display Rental Rate as
- Space
- Size
- Term
- Rental Rate
- Space Use
- Build-Out
- Available
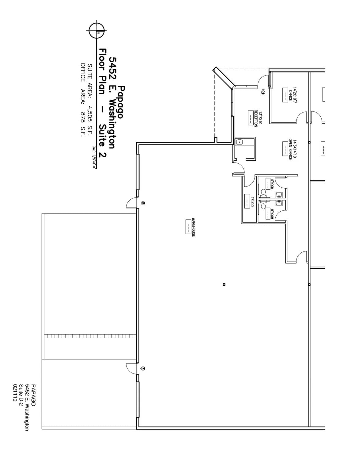
Suite 2 at 5452 E. Washington Street offers ±4,505 SF of functional space with 20% office build-out, a reception area, and one private office. The suite includes two restrooms, a break room, and 100% HVAC for comfort. Operational features include two overhead doors and a truckwell, providing efficient loading and distribution capabilities. This space is ideal for businesses requiring a blend of office and warehouse functionality in a highly accessible Phoenix location.
- Lease rate does not include utilities, property expenses or building services
- 2 Drive Ins
- Reception Area
- Dedicated truckwell access
- Includes 900 SF of dedicated office space
- Central Air Conditioning
- Two overhead loading doors
- 20% office build-out
| Space | Size | Term | Rental Rate | Space Use | Build-Out | Available |
| 1st Floor - 2 | 4,505 SF | Negotiable | $22.16 CAD/SF/YR $1.85 CAD/SF/MO $99,816 CAD/YR $8,318 CAD/MO | Industrial | Spec Suite | Now |
5452 E Washington St - 1st Floor - 2
5452 E Washington St - 1st Floor - 2
| Size | 4,505 SF |
| Term | Negotiable |
| Rental Rate | $22.16 CAD/SF/YR |
| Space Use | Industrial |
| Build-Out | Spec Suite |
| Available | Now |
Suite 2 at 5452 E. Washington Street offers ±4,505 SF of functional space with 20% office build-out, a reception area, and one private office. The suite includes two restrooms, a break room, and 100% HVAC for comfort. Operational features include two overhead doors and a truckwell, providing efficient loading and distribution capabilities. This space is ideal for businesses requiring a blend of office and warehouse functionality in a highly accessible Phoenix location.
- Lease rate does not include utilities, property expenses or building services
- Includes 900 SF of dedicated office space
- 2 Drive Ins
- Central Air Conditioning
- Reception Area
- Two overhead loading doors
- Dedicated truckwell access
- 20% office build-out
Select Tenants at This Property
- Floor
- Tenant Name
- Industry
- 1st
- Cornoyer Commission Designs
- Retailer
- 1st
- Jeffery Allen & Mary Ellen Dornberg
- -
- 1st
- Joshua Dopp Dopp
- Manufacturing
- 1st
- Sun State Builders Inc
- Construction
Park Overview
Papago Business Center is a well-positioned industrial and office complex located along East Washington Street in Phoenix, Arizona. The property offers excellent connectivity with immediate access to major freeways and proximity to the Phoenix Metro Light Rail, providing convenient transportation options for employees and clients. Designed for functionality, the business center features grade-level loading and truckwells, accommodating a variety of operational needs. Each building is equipped with HVAC and evaporative cooling systems to ensure a comfortable working environment. The site layout supports efficient traffic flow and includes ample parking for tenants and visitors. Surrounded by a mix of commercial and residential developments, the location benefits from strong regional accessibility and visibility. Its strategic position near Sky Harbor International Airport and major arterial routes makes it an attractive choice for businesses seeking a versatile and accessible space in the Phoenix metropolitan area.
Presented by
Papago Business Center | Phoenix, AZ 85034
Hmm, there seems to have been an error sending your message. Please try again.
Thanks! Your message was sent.






