Your email has been sent.
Highlights
- $3 PSF/ Per Year Procuring Broker Commission! This building is near Union Square and all modes of public transportation.
All Available Spaces(2)
Display Rental Rate as
- Space
- Size
- Term
- Rental Rate
- Space Use
- Build-Out
- Available
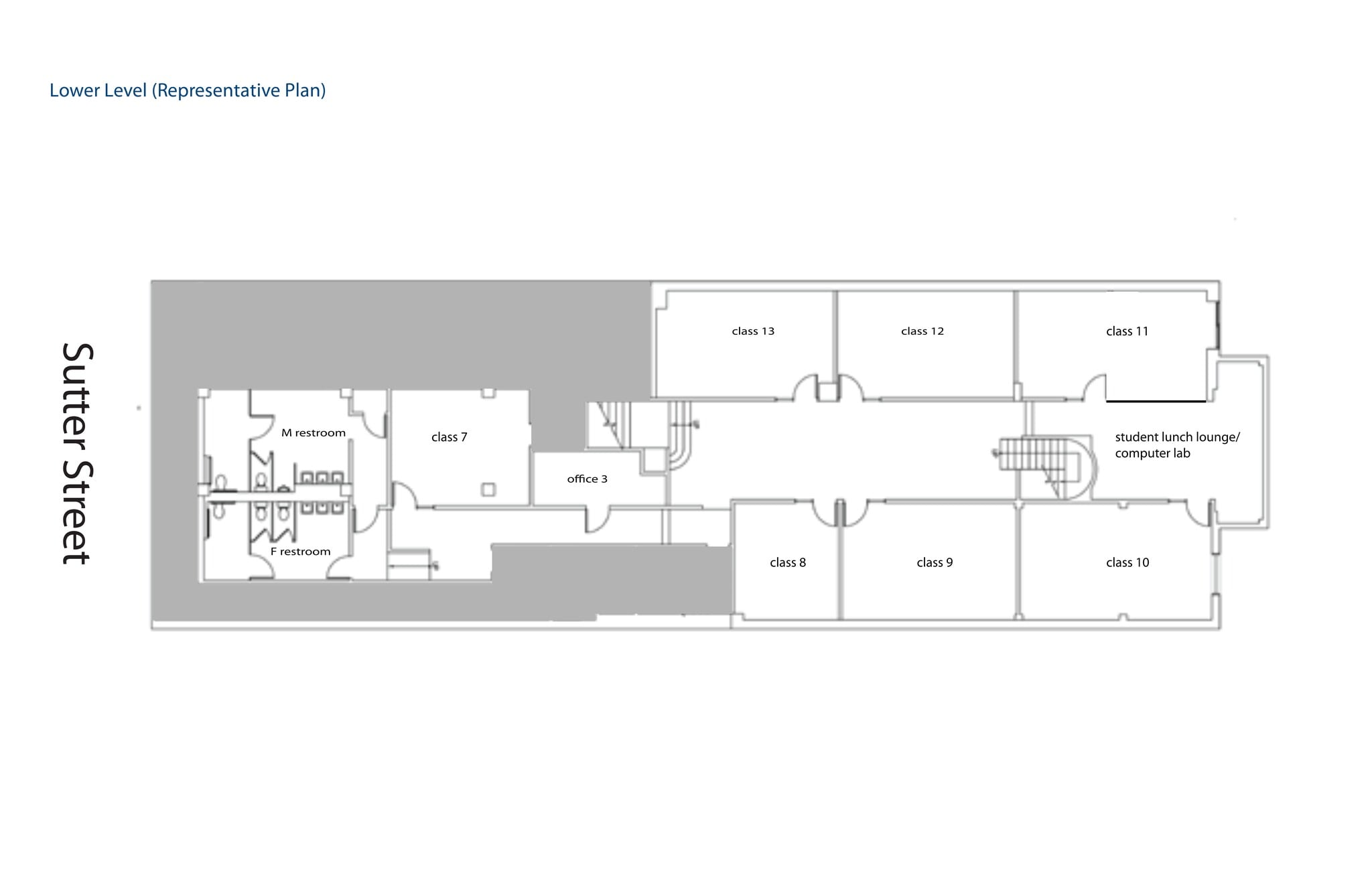
This expansive space is currently configured for educational use by its existing tenant and offers excellent street frontage and prominent signage opportunities. The layout includes 13 classrooms/offices, a welcoming lounge area, a loft break room, and generous storage facilities. Conveniently accessible via both an elevator and an internal stairway, the space also features four restrooms and a reception area, making it well-suited for a variety of uses. Great for a variety of uses, the owner is open to most uses. The ground floor and lower level are connected for a contiguous 9144sqf.
- Fully Built-Out as Standard Office
- 13 Private Offices
- Reception Area
- Elevator Access
- Natural Light
- Mix of private rooms and open space
- Private patio in rear
- Mostly Open Floor Plan Layout
- Finished Ceilings: 11’
- Private Restrooms
- Secure Storage
- Two floors plus a mezzanine
- Frontage on Sutter Street with dedicated entrance
- retail, educational & entertainment proposed uses
Great space for a salon,art galley, workspace, any creative use. Consists of 2 open rooms with a doorway between. Bathroom in the suite. 555 Sutter is home to many stylists, salons, artists, and other creative users.
- Listed rate may not include certain utilities, building services and property expenses
- Mostly Open Floor Plan Layout
- 1 Conference Room
- Finished Ceilings: 11’
- Fully Built-Out as Standard Office
- 3 Private Offices
- 3 Workstations
| Space | Size | Term | Rental Rate | Space Use | Build-Out | Available |
| 1st Floor | 9,144 SF | Negotiable | Upon Request Upon Request Upon Request Upon Request | Office/Retail | Full Build-Out | Now |
| 3rd Floor, Ste 305 | 1,082 SF | Negotiable | $39.40 CAD/SF/YR $3.28 CAD/SF/MO $42,635 CAD/YR $3,553 CAD/MO | Office/Retail | Full Build-Out | Now |
1st Floor
| Size |
| 9,144 SF |
| Term |
| Negotiable |
| Rental Rate |
| Upon Request Upon Request Upon Request Upon Request |
| Space Use |
| Office/Retail |
| Build-Out |
| Full Build-Out |
| Available |
| Now |
3rd Floor, Ste 305
| Size |
| 1,082 SF |
| Term |
| Negotiable |
| Rental Rate |
| $39.40 CAD/SF/YR $3.28 CAD/SF/MO $42,635 CAD/YR $3,553 CAD/MO |
| Space Use |
| Office/Retail |
| Build-Out |
| Full Build-Out |
| Available |
| Now |
1st Floor
| Size | 9,144 SF |
| Term | Negotiable |
| Rental Rate | Upon Request |
| Space Use | Office/Retail |
| Build-Out | Full Build-Out |
| Available | Now |
This expansive space is currently configured for educational use by its existing tenant and offers excellent street frontage and prominent signage opportunities. The layout includes 13 classrooms/offices, a welcoming lounge area, a loft break room, and generous storage facilities. Conveniently accessible via both an elevator and an internal stairway, the space also features four restrooms and a reception area, making it well-suited for a variety of uses. Great for a variety of uses, the owner is open to most uses. The ground floor and lower level are connected for a contiguous 9144sqf.
- Fully Built-Out as Standard Office
- Mostly Open Floor Plan Layout
- 13 Private Offices
- Finished Ceilings: 11’
- Reception Area
- Private Restrooms
- Elevator Access
- Secure Storage
- Natural Light
- Two floors plus a mezzanine
- Mix of private rooms and open space
- Frontage on Sutter Street with dedicated entrance
- Private patio in rear
- retail, educational & entertainment proposed uses
3rd Floor, Ste 305
| Size | 1,082 SF |
| Term | Negotiable |
| Rental Rate | $39.40 CAD/SF/YR |
| Space Use | Office/Retail |
| Build-Out | Full Build-Out |
| Available | Now |
Great space for a salon,art galley, workspace, any creative use. Consists of 2 open rooms with a doorway between. Bathroom in the suite. 555 Sutter is home to many stylists, salons, artists, and other creative users.
- Listed rate may not include certain utilities, building services and property expenses
- Fully Built-Out as Standard Office
- Mostly Open Floor Plan Layout
- 3 Private Offices
- 1 Conference Room
- 3 Workstations
- Finished Ceilings: 11’
Property Overview
555 Sutter is home to many stylists, salons, artists, and other creative users. The property is conveniently located along the busy Sutter Street corridor, only a few blocks from Powell Street Bart and just steps away from exciting Union Square. We have availability at 3 buildings we manage and lease on Sutter St, 555 through 575 Sutter St. Inquire about availability at all 3 buildings. At 559 Sutter St. we have a 3,000sqf retail on the ground floor available an also have 2 full floor suites available, one at 6,056 SF and a second suite at 5,627 SF. New Affordable Lease Opportunities with Maximum Flexibility!
- Bus Line
Property Facts
Presented by
547-555 Sutter St
Hmm, there seems to have been an error sending your message. Please try again.
Thanks! Your message was sent.









