Log In/Sign Up
Your email has been sent.
55 E 87th St - The Parc 1,249 - 1,432 SF Office/Medical Condo Units Offered at $1,098,593 - $1,512,456 CAD Per Unit in New York, NY 10128


Investment Highlights
- Parking Garage on Block
- Low Maintenance
2 Units Available
- Unit
- Unit Size
- Condo Use
- Price
- NOI
| Sale Type | Owner User |
| Sale Type | Owner User |
Description
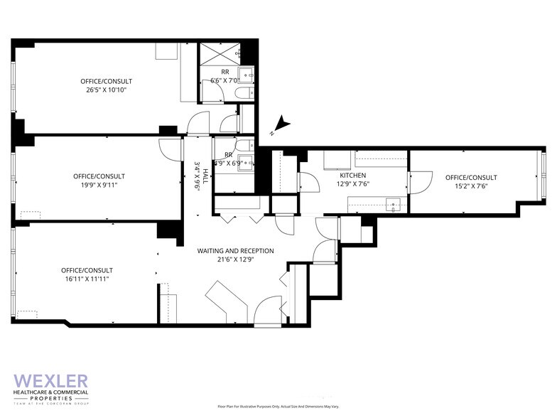
Available for sale, 55 East 87th Street, Suite 1C, located on the Upper East Side between Madison Avenue and Park Avenue, is a low-maintenance co-op ideal for a variety of medical practices.
The office features four oversized rooms, a waiting and reception area, a kitchen, and two restrooms. This 1,432 square-foot suite is adaptable to any medical specialty.
55 East 87th Street is easily accessible by public transportation via the 4, 5, 6, N, Q and R trains at 86th St as well as Upper East Side bus routes. The building is proximate to Lenox Hill Hospital, Mount Sinai, and NYC Health + Hospitals.
Owner financing available.
The office features four oversized rooms, a waiting and reception area, a kitchen, and two restrooms. This 1,432 square-foot suite is adaptable to any medical specialty.
55 East 87th Street is easily accessible by public transportation via the 4, 5, 6, N, Q and R trains at 86th St as well as Upper East Side bus routes. The building is proximate to Lenox Hill Hospital, Mount Sinai, and NYC Health + Hospitals.
Owner financing available.
| Sale Type | Owner User |
| Sale Type | Owner User |
Description
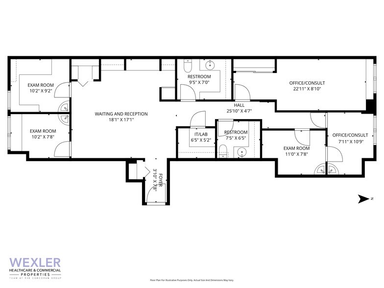
Available for sale, 55 East 87th Street, Suite 1G, located on the Upper East Side between Madison Avenue and Park Avenue, is a low-maintenance co-op ideal for a variety of medical practices.
The office features a large waiting and reception area, three exam rooms, two offices/consults, a lab, and two restrooms. This 1,249 square-foot suite is adaptable to any medical specialty.
55 East 87th Street is easily accessible by public transportation via the 4, 5, 6, N, Q and R trains at 86th St as well as Upper East Side bus routes. The building is proximate to Lenox Hill Hospital, Mount Sinai, and NYC Health + Hospitals.
For current maintenance and flip tax, please see the brochure below.
Owner financing available.
The office features a large waiting and reception area, three exam rooms, two offices/consults, a lab, and two restrooms. This 1,249 square-foot suite is adaptable to any medical specialty.
55 East 87th Street is easily accessible by public transportation via the 4, 5, 6, N, Q and R trains at 86th St as well as Upper East Side bus routes. The building is proximate to Lenox Hill Hospital, Mount Sinai, and NYC Health + Hospitals.
For current maintenance and flip tax, please see the brochure below.
Owner financing available.
| Unit | Unit Size | Condo Use | Price | NOI |
| Unit 1C | 1,432 SF | Office/Medical | $1,512,456 CAD ($1,056.18 CAD/SF) | - |
| Unit 1G | 1,249 SF | Office/Medical | $1,098,593 CAD ($879.58 CAD/SF) | - |
Unit 1C
| Unit Size |
| 1,432 SF |
| Condo Use |
| Office/Medical |
| Price |
| $1,512,456 CAD ($1,056.18 CAD/SF) |
| NOI |
| - |
Unit 1G
| Unit Size |
| 1,249 SF |
| Condo Use |
| Office/Medical |
| Price |
| $1,098,593 CAD ($879.58 CAD/SF) |
| NOI |
| - |
1 of 11
Videos
Matterport 3D Exterior
Matterport 3D Tour
Photos
Street View
Street
Map
Unit 1C
| Unit Size | 1,432 SF |
| Condo Use | Office/Medical |
| Price | $1,512,456 CAD ($1,056.18 CAD/SF) |
| NOI | - |
| Sale Type | Owner User |
| Description | |
| Available for sale, 55 East 87th Street, Suite 1C, located on the Upper East Side between Madison Avenue and Park Avenue, is a low-maintenance co-op ideal for a variety of medical practices.<br> <br> The office features four oversized rooms, a waiting and reception area, a kitchen, and two restrooms. This 1,432 square-foot suite is adaptable to any medical specialty.<br> <br> 55 East 87th Street is easily accessible by public transportation via the 4, 5, 6, N, Q and R trains at 86th St as well as Upper East Side bus routes. The building is proximate to Lenox Hill Hospital, Mount Sinai, and NYC Health + Hospitals.<br> <br> Owner financing available.</li></ul> |
1 of 7
Videos
Matterport 3D Exterior
Matterport 3D Tour
Photos
Street View
Street
Map
Unit 1G
| Unit Size | 1,249 SF |
| Condo Use | Office/Medical |
| Price | $1,098,593 CAD ($879.58 CAD/SF) |
| NOI | - |
| Sale Type | Owner User |
| Description | |
| Available for sale, 55 East 87th Street, Suite 1G, located on the Upper East Side between Madison Avenue and Park Avenue, is a low-maintenance co-op ideal for a variety of medical practices.<br> <br> The office features a large waiting and reception area, three exam rooms, two offices/consults, a lab, and two restrooms. This 1,249 square-foot suite is adaptable to any medical specialty.<br> <br> 55 East 87th Street is easily accessible by public transportation via the 4, 5, 6, N, Q and R trains at 86th St as well as Upper East Side bus routes. The building is proximate to Lenox Hill Hospital, Mount Sinai, and NYC Health + Hospitals.<br> <br> For current maintenance and flip tax, please see the brochure below.<br> Owner financing available.</li></ul> |
Property Facts
The following property facts and amenities apply to the entire building. Details for individual condo units may vary and are listed in the unit information above.
| Total Building Size | 156,729 SF | Typical Floor Size | 11,195 SF |
| Property Type | Multifamily | Year Built | 1963 |
| Property Subtype | Apartment | Lot Size | 0.41 AC |
| Building Class | C | Parking Ratio | 0.36/1,000 SF |
| Floors | 14 | ||
| Zoning | R8B - R8B Zoning in NYC is high density residential zoning district. This is contextual zoning which means following the Quality Housing Program Requirement | ||
| Total Building Size | 156,729 SF |
| Property Type | Multifamily |
| Property Subtype | Apartment |
| Building Class | C |
| Floors | 14 |
| Typical Floor Size | 11,195 SF |
| Year Built | 1963 |
| Lot Size | 0.41 AC |
| Parking Ratio | 0.36/1,000 SF |
| Zoning | R8B - R8B Zoning in NYC is high density residential zoning district. This is contextual zoning which means following the Quality Housing Program Requirement |
Amenities
Site Amenities
- Doorman
1 1
Exceptionally walkable
100/100
Somewhat drivable
30/100
Exceptional public transit
100/100
Exceptionally bikeable
90/100
1 of 3
Videos
Matterport 3D Exterior
Matterport 3D Tour
Photos
Street View
Street
Map
1 of 1
Presented by
55 E 87th St - The Parc
Already a member? Log In
Hmm, there seems to have been an error sending your message. Please try again.
Thanks! Your message was sent.




