Your email has been sent.
Highlights
- Vibrant common areas with public art and onsite coffee shop, brewery, and distillery.
- Greenspace, large outdoor patio, and bike parking.
- Central twin cities location with proximity to I-94
- Large elevator within building that can handle freight.
- Free surface parking lot.
- Vibrant mix of creative tenants - photographers, marketing firms, video production, content creation, tattoo artists, and more!
All Available Spaces(8)
Display Rental Rate as
- Space
- Size
- Term
- Rental Rate
- Space Use
- Build-Out
- Available
First floor professional office space St. Paul's creative Vandalia Tower.
- Lease rate does not include utilities, property expenses or building services
- 1 Private Office
- Kitchen
- Move-in ready
- Single private office & kitchenette
- Steps from lobby and restrooms
- Fully Built-Out as Standard Office
- Central Air and Heating
- Natural Light
- Functional layout with open area
- Ideal for small teams and growing firms
- Two entrances
Prominent first floor office/retail space with direct plaza access at St. Paul's creative Vandalia Tower.
- Lease rate does not include utilities, property expenses or building services
- 1 Private Office
- Central Air and Heating
- Natural Light
- Single private office/conference room
- Large industrial windows and natural light
- Vibrant mix of creative co-tenants in building
- Fully Built-Out as Standard Office
- 1 Conference Room
- Kitchen
- Flexible layout
- Direct access to plaza
- Steps from lobby and restrooms
Perfect for production, this maker space is located on the interior second floor of St. Paul's Vandalia Tower. Lease rate is $8.00 - $10.00 NNN.
- Lease rate does not include utilities, property expenses or building services
- Tenant improvement allowance
- Industrial features
- Close proximity to south exit and common restrooms
- Open Floor Plan Layout
- Two separate entrances
- Flexible layout options
- Free parking
Unique and affordable individual artist spaces on the second level of St. Paul's Vandalia Tower. Lease rate is $600 per month.
- Open Floor Plan Layout
- Distinctive vibe with glass block windows
- Move in ready
- Production /maker spaces suited for artists
- Shared commissary kitchen with water access
- Free parking
Unique and affordable individual artist spaces on the second level of St. Paul's Vandalia Tower. Lease rate is $600 per month.
- Open Floor Plan Layout
- Distinctive vibe with glass block windows
- Move in ready
- Production/maker spaces suited for artists
- Shared commissary kitchen with water access
- Free parking
Large third floor creative office space in St. Paul's Vandalia Tower. Flexible layout options with option to demise or combine with Suite 306. Lease rate is between $18.00 - $20.00 NNN.
- Fully Built-Out as Standard Office
- Central Air and Heating
- Tenant improvement allowance
- Plentiful natural light
- Free parking
- Open Floor Plan Layout
- Natural Light
- Large windows facing Vandalia Street
- Direct access off elevator
Third floor creative office space in St. Paul's Vandalia Tower.
- Open Floor Plan Layout
- Natural Light
- Large windows facing Vandalia Street
- Opportunity to combine with Suite 302
- Free parking onsite
- Central Air and Heating
- Tenant improvement allowance
- Open floorplan with flexible layout options
- Creative mix of co-tenants
Move-in ready modern industrial office space on the third floor of St. Paul's Vandalia Tower.
- Listed rate may not include certain utilities, building services and property expenses
- Mostly Open Floor Plan Layout
- Open office, huddle room, conference room, kitchen
- Large industrial windows facing courtyard
- Vibrant mix of creative co-tenants
- Fully Built-Out as Standard Office
- 1 Conference Room
- Second generation modern industrial buildout
- Free parking
| Space | Size | Term | Rental Rate | Space Use | Build-Out | Available |
| 1st Floor, Ste 120 | 1,108 SF | Negotiable | $27.34 CAD/SF/YR $2.28 CAD/SF/MO $30,295 CAD/YR $2,525 CAD/MO | Office | Full Build-Out | 30 Days |
| 1st Floor, Ste 122 | 2,492 SF | Negotiable | $30.08 CAD/SF/YR $2.51 CAD/SF/MO $74,950 CAD/YR $6,246 CAD/MO | Office | Full Build-Out | 30 Days |
| 2nd Floor, Ste 218 | 1,460 SF | Negotiable | Upon Request Upon Request Upon Request Upon Request | Office | - | Now |
| 2nd Floor, Ste 221C | 171 SF | Negotiable | $57.57 CAD/SF/YR $4.80 CAD/SF/MO $9,844 CAD/YR $820.35 CAD/MO | Office | Full Build-Out | Pending |
| 2nd Floor, Ste 221D | 171 SF | Negotiable | $57.57 CAD/SF/YR $4.80 CAD/SF/MO $9,844 CAD/YR $820.35 CAD/MO | Office | Full Build-Out | Now |
| 3rd Floor, Ste 302 | 5,927 SF | Negotiable | Upon Request Upon Request Upon Request Upon Request | Office | Full Build-Out | Now |
| 3rd Floor, Ste 306 | 3,200 SF | Negotiable | Upon Request Upon Request Upon Request Upon Request | Office | Full Build-Out | Now |
| 3rd Floor, Ste 309 | 1,815 SF | Negotiable | Upon Request Upon Request Upon Request Upon Request | Office | Full Build-Out | 60 Days |
1st Floor, Ste 120
| Size |
| 1,108 SF |
| Term |
| Negotiable |
| Rental Rate |
| $27.34 CAD/SF/YR $2.28 CAD/SF/MO $30,295 CAD/YR $2,525 CAD/MO |
| Space Use |
| Office |
| Build-Out |
| Full Build-Out |
| Available |
| 30 Days |
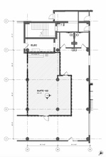
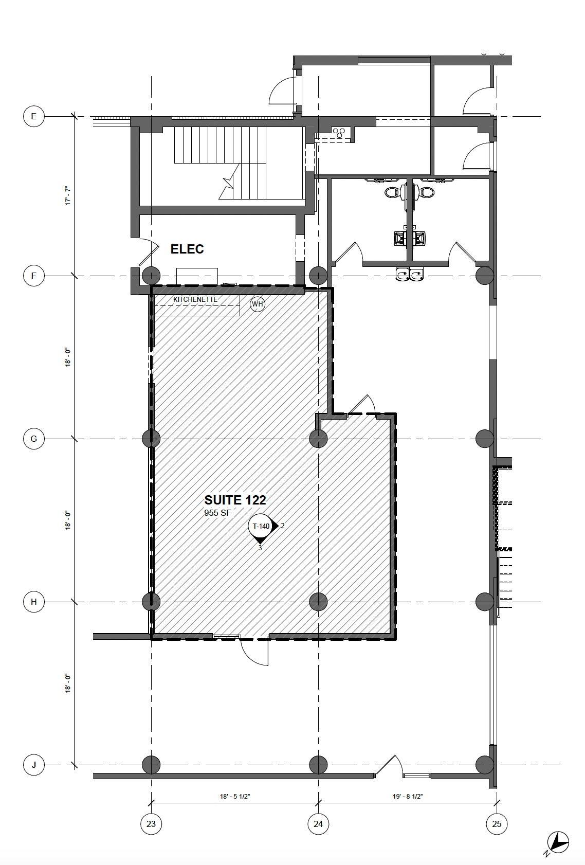
1st Floor, Ste 122
| Size |
| 2,492 SF |
| Term |
| Negotiable |
| Rental Rate |
| $30.08 CAD/SF/YR $2.51 CAD/SF/MO $74,950 CAD/YR $6,246 CAD/MO |
| Space Use |
| Office |
| Build-Out |
| Full Build-Out |
| Available |
| 30 Days |
2nd Floor, Ste 218
| Size |
| 1,460 SF |
| Term |
| Negotiable |
| Rental Rate |
| Upon Request Upon Request Upon Request Upon Request |
| Space Use |
| Office |
| Build-Out |
| - |
| Available |
| Now |
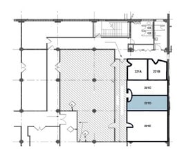
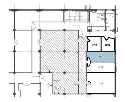
2nd Floor, Ste 221C
| Size |
| 171 SF |
| Term |
| Negotiable |
| Rental Rate |
| $57.57 CAD/SF/YR $4.80 CAD/SF/MO $9,844 CAD/YR $820.35 CAD/MO |
| Space Use |
| Office |
| Build-Out |
| Full Build-Out |
| Available |
| Pending |
2nd Floor, Ste 221D
| Size |
| 171 SF |
| Term |
| Negotiable |
| Rental Rate |
| $57.57 CAD/SF/YR $4.80 CAD/SF/MO $9,844 CAD/YR $820.35 CAD/MO |
| Space Use |
| Office |
| Build-Out |
| Full Build-Out |
| Available |
| Now |
3rd Floor, Ste 302
| Size |
| 5,927 SF |
| Term |
| Negotiable |
| Rental Rate |
| Upon Request Upon Request Upon Request Upon Request |
| Space Use |
| Office |
| Build-Out |
| Full Build-Out |
| Available |
| Now |
3rd Floor, Ste 306
| Size |
| 3,200 SF |
| Term |
| Negotiable |
| Rental Rate |
| Upon Request Upon Request Upon Request Upon Request |
| Space Use |
| Office |
| Build-Out |
| Full Build-Out |
| Available |
| Now |
3rd Floor, Ste 309
| Size |
| 1,815 SF |
| Term |
| Negotiable |
| Rental Rate |
| Upon Request Upon Request Upon Request Upon Request |
| Space Use |
| Office |
| Build-Out |
| Full Build-Out |
| Available |
| 60 Days |
1st Floor, Ste 120
| Size | 1,108 SF |
| Term | Negotiable |
| Rental Rate | $27.34 CAD/SF/YR |
| Space Use | Office |
| Build-Out | Full Build-Out |
| Available | 30 Days |
First floor professional office space St. Paul's creative Vandalia Tower.
- Lease rate does not include utilities, property expenses or building services
- Fully Built-Out as Standard Office
- 1 Private Office
- Central Air and Heating
- Kitchen
- Natural Light
- Move-in ready
- Functional layout with open area
- Single private office & kitchenette
- Ideal for small teams and growing firms
- Steps from lobby and restrooms
- Two entrances
1st Floor, Ste 122
| Size | 2,492 SF |
| Term | Negotiable |
| Rental Rate | $30.08 CAD/SF/YR |
| Space Use | Office |
| Build-Out | Full Build-Out |
| Available | 30 Days |
Prominent first floor office/retail space with direct plaza access at St. Paul's creative Vandalia Tower.
- Lease rate does not include utilities, property expenses or building services
- Fully Built-Out as Standard Office
- 1 Private Office
- 1 Conference Room
- Central Air and Heating
- Kitchen
- Natural Light
- Flexible layout
- Single private office/conference room
- Direct access to plaza
- Large industrial windows and natural light
- Steps from lobby and restrooms
- Vibrant mix of creative co-tenants in building
2nd Floor, Ste 218
| Size | 1,460 SF |
| Term | Negotiable |
| Rental Rate | Upon Request |
| Space Use | Office |
| Build-Out | - |
| Available | Now |
Perfect for production, this maker space is located on the interior second floor of St. Paul's Vandalia Tower. Lease rate is $8.00 - $10.00 NNN.
- Lease rate does not include utilities, property expenses or building services
- Open Floor Plan Layout
- Tenant improvement allowance
- Two separate entrances
- Industrial features
- Flexible layout options
- Close proximity to south exit and common restrooms
- Free parking
2nd Floor, Ste 221C
| Size | 171 SF |
| Term | Negotiable |
| Rental Rate | $57.57 CAD/SF/YR |
| Space Use | Office |
| Build-Out | Full Build-Out |
| Available | Pending |
Unique and affordable individual artist spaces on the second level of St. Paul's Vandalia Tower. Lease rate is $600 per month.
- Open Floor Plan Layout
- Production /maker spaces suited for artists
- Distinctive vibe with glass block windows
- Shared commissary kitchen with water access
- Move in ready
- Free parking
2nd Floor, Ste 221D
| Size | 171 SF |
| Term | Negotiable |
| Rental Rate | $57.57 CAD/SF/YR |
| Space Use | Office |
| Build-Out | Full Build-Out |
| Available | Now |
Unique and affordable individual artist spaces on the second level of St. Paul's Vandalia Tower. Lease rate is $600 per month.
- Open Floor Plan Layout
- Production/maker spaces suited for artists
- Distinctive vibe with glass block windows
- Shared commissary kitchen with water access
- Move in ready
- Free parking
3rd Floor, Ste 302
| Size | 5,927 SF |
| Term | Negotiable |
| Rental Rate | Upon Request |
| Space Use | Office |
| Build-Out | Full Build-Out |
| Available | Now |
Large third floor creative office space in St. Paul's Vandalia Tower. Flexible layout options with option to demise or combine with Suite 306. Lease rate is between $18.00 - $20.00 NNN.
- Fully Built-Out as Standard Office
- Open Floor Plan Layout
- Central Air and Heating
- Natural Light
- Tenant improvement allowance
- Large windows facing Vandalia Street
- Plentiful natural light
- Direct access off elevator
- Free parking
3rd Floor, Ste 306
| Size | 3,200 SF |
| Term | Negotiable |
| Rental Rate | Upon Request |
| Space Use | Office |
| Build-Out | Full Build-Out |
| Available | Now |
Third floor creative office space in St. Paul's Vandalia Tower.
- Open Floor Plan Layout
- Central Air and Heating
- Natural Light
- Tenant improvement allowance
- Large windows facing Vandalia Street
- Open floorplan with flexible layout options
- Opportunity to combine with Suite 302
- Creative mix of co-tenants
- Free parking onsite
3rd Floor, Ste 309
| Size | 1,815 SF |
| Term | Negotiable |
| Rental Rate | Upon Request |
| Space Use | Office |
| Build-Out | Full Build-Out |
| Available | 60 Days |
Move-in ready modern industrial office space on the third floor of St. Paul's Vandalia Tower.
- Listed rate may not include certain utilities, building services and property expenses
- Fully Built-Out as Standard Office
- Mostly Open Floor Plan Layout
- 1 Conference Room
- Open office, huddle room, conference room, kitchen
- Second generation modern industrial buildout
- Large industrial windows facing courtyard
- Free parking
- Vibrant mix of creative co-tenants
Property Overview
With its unique and esoteric mix of dynamic maker tenants, Vandalia Tower is home to a community of creatives. The entrepreneurial energy is felt at the forefront, with local photography and pops of color from vibrant artwork throughout the building's lobby and common areas. Sunlight pours into all three levels of the building through large industrial windows and skylights, providing a light, airy, industrial feel in combination with white walls, exposed beams, and a mix of hardwood and polished concrete floors. Located at the corner of Vandalia Street and Wabash Ave, Vandalia Tower sits at the intersection of St. Anthony Park and Hamline-Midway neighborhoods and falls within St. Paul's Creative Enterprise Zone (CEZ). Rooted in its history of King Koil Mattress Factory, the building complex creates its own energy with onsite amenities like Lake Monster Brewing, local food trucks, SK Coffee Bar and Roastery, the recently opened King Coil distillery named after the rich history of the building. Along with its food and beverage scene, the property is also activated by Paikka events and attractive greenspace, amongst an otherwise industrious area. With close proximity to I-94, the property is centrally located and easily accessible to and from both St. Paul and Minneapolis.
- Signage
- Air Conditioning
Property Facts
Presented by
Vandalia Tower | 550 Vandalia St
Hmm, there seems to have been an error sending your message. Please try again.
Thanks! Your message was sent.

























