Your email has been sent.
Highlights
- LEED Platinum certified Class A tower with panoramic Bay views and efficient, modern floor plates.
- Premier South Financial District location with immediate access to retail, dining, culture, and major transit.
- Exceptional amenity center offering fitness, wellness, golf simulator, conferencing, and entertainment spaces.
- Floor-to-ceiling glass architecture designed by renowned firms Kohn Pedersen Fox and Heller Manus.
All Available Spaces(8)
Display Rental Rate as
- Space
- Size
- Term
- Rental Rate
- Space Use
- Build-Out
- Available
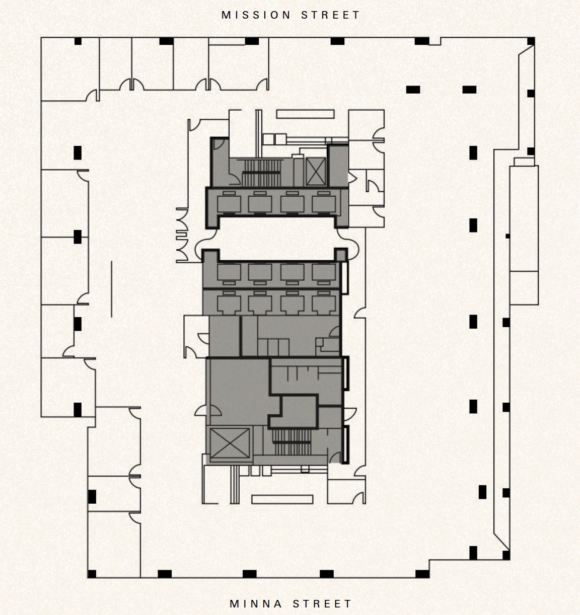
This creative floor includes high exposed ceilings, plaza views, five private offices, seven conference rooms, three phone rooms, two copy rooms, two kitchens, and an open plan layout.
- Fully Built-Out as Standard Office
- 5 Private Offices
- Finished Ceilings: 10’ - 11’
- Exposed Ceiling
- Plaza Views
- Open Floor Plan Layout
- 7 Conference Rooms
- Space is in Excellent Condition
- Open-Plan
Available 9/1/26, Brand new spec suite, Creative open plan, Exposed ceiling, Abundant natural light, 2 medium conference rooms, Kitchen, and Storage/IT room
- Mostly Open Floor Plan Layout
- 1 Conference Room
- Space is in Excellent Condition
- Print/Copy Room
- Secure Storage
- Abundant Amount of Light
- 2 Private Offices
- Finished Ceilings: 10’ - 11’
- Elevator Access
- Exposed Ceiling
- Natural Light
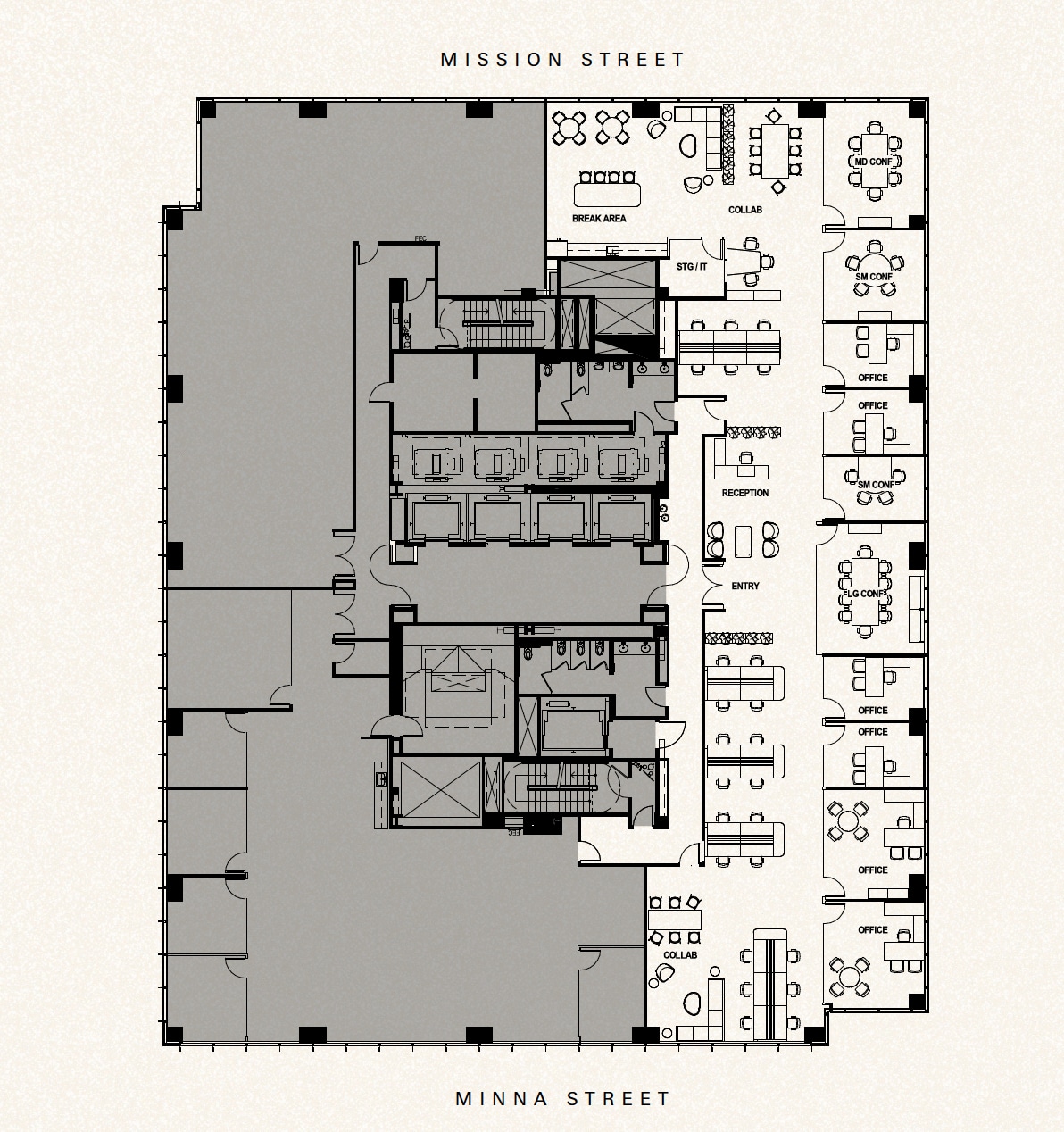
This provide abundant natural light along with four private offices, four conference rooms, a kitchen and break area, a copy and print room, a storage and IT room, a mother’s room, three phone rooms, and double-door identity off the elevator lobby.
- Fully Built-Out as Standard Office
- 4 Private Offices
- Finished Ceilings: 10’ - 11’
- Elevator Access
- Secure Storage
- Mostly Open Floor Plan Layout
- 4 Conference Rooms
- Space is in Excellent Condition
- Print/Copy Room
- Natural Light
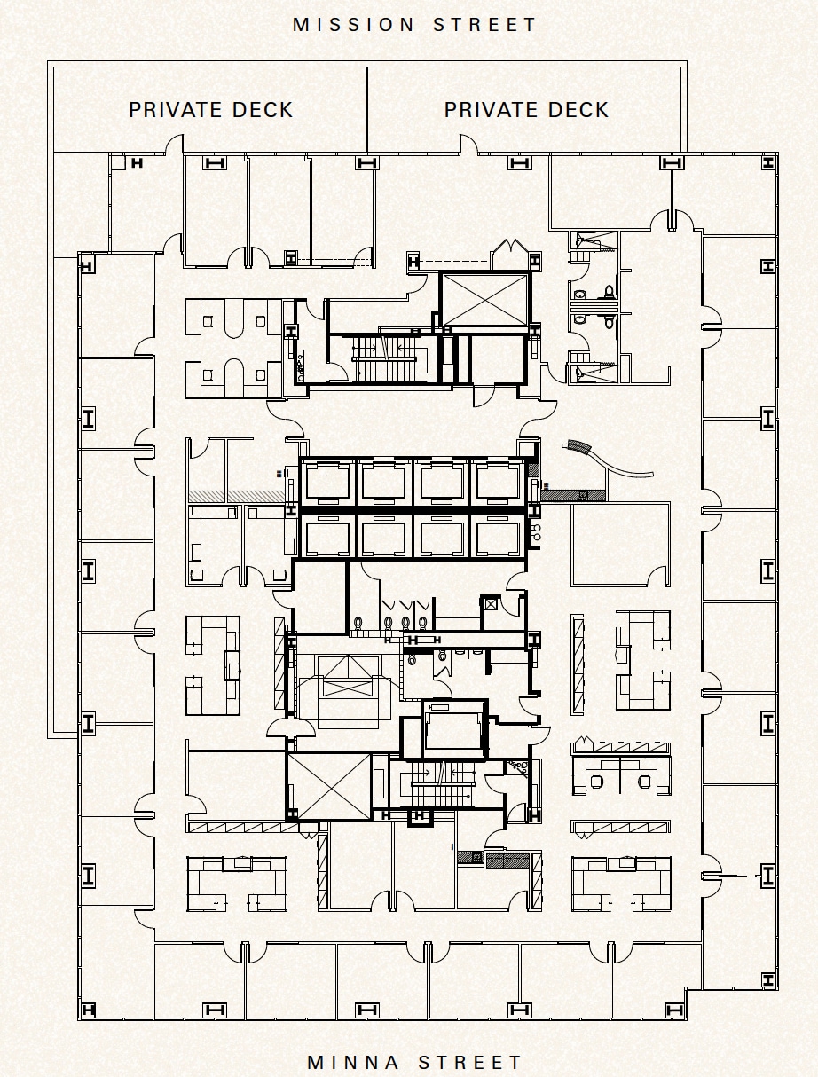
Available on 05/01/27, 45 private Offices, 12 workstations, 4 conference rooms, Kitchenette, and 2 teams rooms
- Fully Built-Out as Standard Office
- 45 Private Offices
- 12 Workstations
- Mostly Open Floor Plan Layout
- 4 Conference Rooms
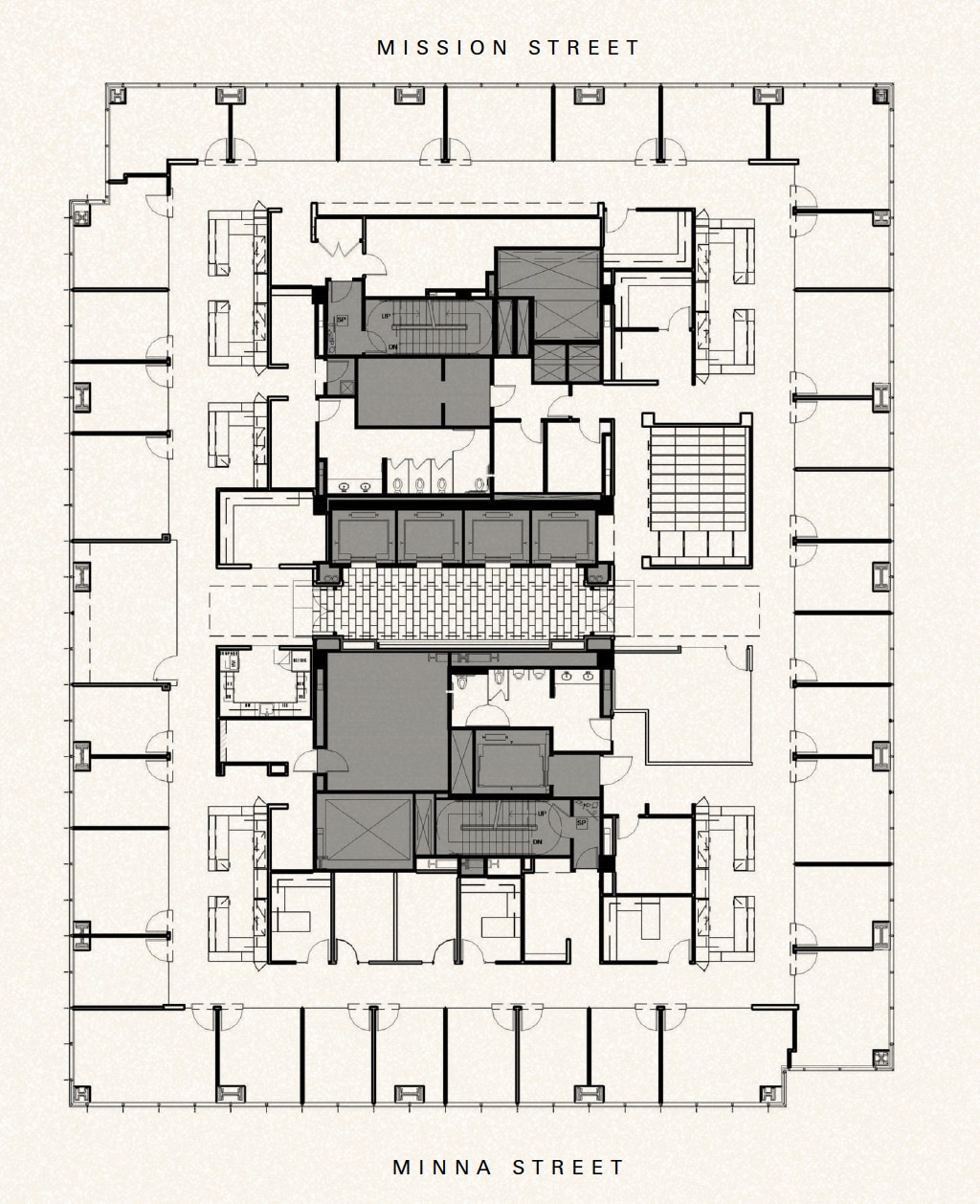
This brand-new creative spec suite features exposed ceilings, seven private offices, three conference rooms, an IT and storage closet, a reception area, an open work area with space for twenty-four workstations, and double-door identity.
- Open Floor Plan Layout
- 2 Conference Rooms
- Finished Ceilings: 10’ - 11’
- Reception Area
- Print/Copy Room
- Double-Door Identity
- 15 Private Offices
- 24 Workstations
- Space is in Excellent Condition
- Elevator Access
- Exposed Ceiling
Brand new spec suite, Incredible views, 5 private offices, 3 conference rooms, Kitchen / Break Area, Reception, and IT/storage/copy room
- Fully Built-Out as Standard Office
- 5 Private Offices
- Finished Ceilings: 10’ - 11’
- Reception Area
- Exposed Ceiling
- Outstanding Views
- Mostly Open Floor Plan Layout
- 3 Conference Rooms
- Space is in Excellent Condition
- Print/Copy Room
- Secure Storage
Brand new spec suite, Incredible views, 2 private offices, 2 conference rooms, Kitchen / Break area, and Reception
- Open Floor Plan Layout
- 2 Conference Rooms
- 2 Private Offices
- Reception Area
Brand new spec suite, Incredible views, 3 private offices, 2 conference rooms, Kitchen / break area, Reception, and IT/storage/copy room
- Open Floor Plan Layout
- Reception Area
- Secure Storage
- 3 Private Offices
- Print/Copy Room
| Space | Size | Term | Rental Rate | Space Use | Build-Out | Available |
| 3rd Floor, Ste 300 | 10,000-21,582 SF | Negotiable | Upon Request Upon Request Upon Request Upon Request | Office | Full Build-Out | 2027-07-01 |
| 18th Floor, Ste 1850 | 4,176 SF | Negotiable | Upon Request Upon Request Upon Request Upon Request | Office | Spec Suite | Now |
| 19th Floor, Ste 1950 | 9,836 SF | Negotiable | Upon Request Upon Request Upon Request Upon Request | Office | Full Build-Out | Now |
| 25th Floor, Ste 2500 | 16,148 SF | Negotiable | Upon Request Upon Request Upon Request Upon Request | Office | Full Build-Out | 2027-02-01 |
| 26th Floor, Ste 2600 | 7,585 SF | Negotiable | Upon Request Upon Request Upon Request Upon Request | Office | Spec Suite | Now |
| 27th Floor, Ste 2700 | 7,492 SF | Negotiable | Upon Request Upon Request Upon Request Upon Request | Office | Full Build-Out | 2026-10-01 |
| 27th Floor, Ste 2725 | 3,790 SF | Negotiable | Upon Request Upon Request Upon Request Upon Request | Office | Spec Suite | 2026-10-01 |
| 27th Floor, Ste 2750 | 4,913 SF | Negotiable | Upon Request Upon Request Upon Request Upon Request | Office | Spec Suite | 2026-10-01 |
3rd Floor, Ste 300
| Size |
| 10,000-21,582 SF |
| Term |
| Negotiable |
| Rental Rate |
| Upon Request Upon Request Upon Request Upon Request |
| Space Use |
| Office |
| Build-Out |
| Full Build-Out |
| Available |
| 2027-07-01 |
18th Floor, Ste 1850
| Size |
| 4,176 SF |
| Term |
| Negotiable |
| Rental Rate |
| Upon Request Upon Request Upon Request Upon Request |
| Space Use |
| Office |
| Build-Out |
| Spec Suite |
| Available |
| Now |
19th Floor, Ste 1950
| Size |
| 9,836 SF |
| Term |
| Negotiable |
| Rental Rate |
| Upon Request Upon Request Upon Request Upon Request |
| Space Use |
| Office |
| Build-Out |
| Full Build-Out |
| Available |
| Now |
25th Floor, Ste 2500
| Size |
| 16,148 SF |
| Term |
| Negotiable |
| Rental Rate |
| Upon Request Upon Request Upon Request Upon Request |
| Space Use |
| Office |
| Build-Out |
| Full Build-Out |
| Available |
| 2027-02-01 |
26th Floor, Ste 2600
| Size |
| 7,585 SF |
| Term |
| Negotiable |
| Rental Rate |
| Upon Request Upon Request Upon Request Upon Request |
| Space Use |
| Office |
| Build-Out |
| Spec Suite |
| Available |
| Now |
27th Floor, Ste 2700
| Size |
| 7,492 SF |
| Term |
| Negotiable |
| Rental Rate |
| Upon Request Upon Request Upon Request Upon Request |
| Space Use |
| Office |
| Build-Out |
| Full Build-Out |
| Available |
| 2026-10-01 |
27th Floor, Ste 2725
| Size |
| 3,790 SF |
| Term |
| Negotiable |
| Rental Rate |
| Upon Request Upon Request Upon Request Upon Request |
| Space Use |
| Office |
| Build-Out |
| Spec Suite |
| Available |
| 2026-10-01 |
27th Floor, Ste 2750
| Size |
| 4,913 SF |
| Term |
| Negotiable |
| Rental Rate |
| Upon Request Upon Request Upon Request Upon Request |
| Space Use |
| Office |
| Build-Out |
| Spec Suite |
| Available |
| 2026-10-01 |
3rd Floor, Ste 300
| Size | 10,000-21,582 SF |
| Term | Negotiable |
| Rental Rate | Upon Request |
| Space Use | Office |
| Build-Out | Full Build-Out |
| Available | 2027-07-01 |
This creative floor includes high exposed ceilings, plaza views, five private offices, seven conference rooms, three phone rooms, two copy rooms, two kitchens, and an open plan layout.
- Fully Built-Out as Standard Office
- Open Floor Plan Layout
- 5 Private Offices
- 7 Conference Rooms
- Finished Ceilings: 10’ - 11’
- Space is in Excellent Condition
- Exposed Ceiling
- Open-Plan
- Plaza Views
18th Floor, Ste 1850
| Size | 4,176 SF |
| Term | Negotiable |
| Rental Rate | Upon Request |
| Space Use | Office |
| Build-Out | Spec Suite |
| Available | Now |
Available 9/1/26, Brand new spec suite, Creative open plan, Exposed ceiling, Abundant natural light, 2 medium conference rooms, Kitchen, and Storage/IT room
- Mostly Open Floor Plan Layout
- 2 Private Offices
- 1 Conference Room
- Finished Ceilings: 10’ - 11’
- Space is in Excellent Condition
- Elevator Access
- Print/Copy Room
- Exposed Ceiling
- Secure Storage
- Natural Light
- Abundant Amount of Light
19th Floor, Ste 1950
| Size | 9,836 SF |
| Term | Negotiable |
| Rental Rate | Upon Request |
| Space Use | Office |
| Build-Out | Full Build-Out |
| Available | Now |
This provide abundant natural light along with four private offices, four conference rooms, a kitchen and break area, a copy and print room, a storage and IT room, a mother’s room, three phone rooms, and double-door identity off the elevator lobby.
- Fully Built-Out as Standard Office
- Mostly Open Floor Plan Layout
- 4 Private Offices
- 4 Conference Rooms
- Finished Ceilings: 10’ - 11’
- Space is in Excellent Condition
- Elevator Access
- Print/Copy Room
- Secure Storage
- Natural Light
25th Floor, Ste 2500
| Size | 16,148 SF |
| Term | Negotiable |
| Rental Rate | Upon Request |
| Space Use | Office |
| Build-Out | Full Build-Out |
| Available | 2027-02-01 |
Available on 05/01/27, 45 private Offices, 12 workstations, 4 conference rooms, Kitchenette, and 2 teams rooms
- Fully Built-Out as Standard Office
- Mostly Open Floor Plan Layout
- 45 Private Offices
- 4 Conference Rooms
- 12 Workstations
26th Floor, Ste 2600
| Size | 7,585 SF |
| Term | Negotiable |
| Rental Rate | Upon Request |
| Space Use | Office |
| Build-Out | Spec Suite |
| Available | Now |
This brand-new creative spec suite features exposed ceilings, seven private offices, three conference rooms, an IT and storage closet, a reception area, an open work area with space for twenty-four workstations, and double-door identity.
- Open Floor Plan Layout
- 15 Private Offices
- 2 Conference Rooms
- 24 Workstations
- Finished Ceilings: 10’ - 11’
- Space is in Excellent Condition
- Reception Area
- Elevator Access
- Print/Copy Room
- Exposed Ceiling
- Double-Door Identity
27th Floor, Ste 2700
| Size | 7,492 SF |
| Term | Negotiable |
| Rental Rate | Upon Request |
| Space Use | Office |
| Build-Out | Full Build-Out |
| Available | 2026-10-01 |
Brand new spec suite, Incredible views, 5 private offices, 3 conference rooms, Kitchen / Break Area, Reception, and IT/storage/copy room
- Fully Built-Out as Standard Office
- Mostly Open Floor Plan Layout
- 5 Private Offices
- 3 Conference Rooms
- Finished Ceilings: 10’ - 11’
- Space is in Excellent Condition
- Reception Area
- Print/Copy Room
- Exposed Ceiling
- Secure Storage
- Outstanding Views
27th Floor, Ste 2725
| Size | 3,790 SF |
| Term | Negotiable |
| Rental Rate | Upon Request |
| Space Use | Office |
| Build-Out | Spec Suite |
| Available | 2026-10-01 |
Brand new spec suite, Incredible views, 2 private offices, 2 conference rooms, Kitchen / Break area, and Reception
- Open Floor Plan Layout
- 2 Private Offices
- 2 Conference Rooms
- Reception Area
27th Floor, Ste 2750
| Size | 4,913 SF |
| Term | Negotiable |
| Rental Rate | Upon Request |
| Space Use | Office |
| Build-Out | Spec Suite |
| Available | 2026-10-01 |
Brand new spec suite, Incredible views, 3 private offices, 2 conference rooms, Kitchen / break area, Reception, and IT/storage/copy room
- Open Floor Plan Layout
- 3 Private Offices
- Reception Area
- Print/Copy Room
- Secure Storage
Property Overview
555 Mission Street stands as a signature Class A tower in San Francisco’s South Financial District, celebrated for its floor-to-ceiling glass façade, illuminated crown, and striking architectural presence crafted by Kohn Pedersen Fox and Heller Manus Architects. The building’s efficient floor plates, panoramic Bay views, and 13-foot ceiling heights create a modern workplace environment that blends functionality with aesthetic appeal. Tenants benefit from a robust amenity center that includes a state-of-the-art fitness facility, golf simulator and lounge, conference center, entertainment bar, wellness rooms, and flexible work suites, all supported by on-site property management and 24-hour security. Positioned amid a vibrant mix of retail, dining, cultural venues, and strong transit connections, 555 Mission Street offers an elevated tenant experience in one of the city’s most sought-after commercial corridors.
- 24 Hour Access
- Atrium
- Banking
- Bus Line
- Controlled Access
- Commuter Rail
- Courtyard
- Metro/Subway
- Property Manager on Site
- Security System
- Energy Star Labeled
- Roof Terrace
- High Ceilings
- Natural Light
- Monument Signage
- Outdoor Seating
- Air Conditioning
- Balcony
Property Facts
Sustainability
Sustainability
LEED Certification Developed by the U.S. Green Building Council (USGBC), the Leadership in Energy and Environmental Design (LEED) is a green building certification program focused on the design, construction, operation, and maintenance of green buildings, homes, and neighborhoods, which aims to help building owners and operators be environmentally responsible and use resources efficiently. LEED certification is a globally recognized symbol of sustainability achievement and leadership. To achieve LEED certification, a project earns points by adhering to prerequisites and credits that address carbon, energy, water, waste, transportation, materials, health and indoor environmental quality. Projects go through a verification and review process and are awarded points that correspond to a level of LEED certification: Platinum (80+ points) Gold (60-79 points) Silver (50-59 points) Certified (40-49 points)
Presented by
555 Mission St
Hmm, there seems to have been an error sending your message. Please try again.
Thanks! Your message was sent.



















