Your email has been sent.
5600-5704 McWhinney Blvd - 5628-5636 McWhinney- Bldg D 2,790 - 8,248 SF Retail Condo Units in Loveland, CO 80538



Executive Summary
Located within the thriving Loveland Yards development at 5600 - 5704 McWhinney Blvd in Loveland, CO, these retail units offer exceptional ownership potential in one of Northern Colorado’s fastest growing commercial corridors. Loveland Yards is strategically positioned at the intersection of I-25 and Highway 34, providing high visibility and excellent regional access - with significant exposure to passing traffic and proximity to major retail, dining, office, and service destinations. All available units benefit from Loveland Yards’ flexible zoning for light industrial, office, retail, and flex space, high ceilings, and the ability for owners to capitalize on both operational use and long-term real estate equity growth. Units are demisable and can be tailored to your business or investment strategy.
5 Units Available
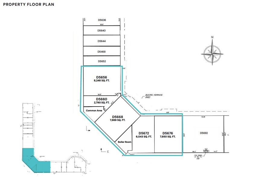
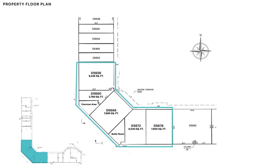
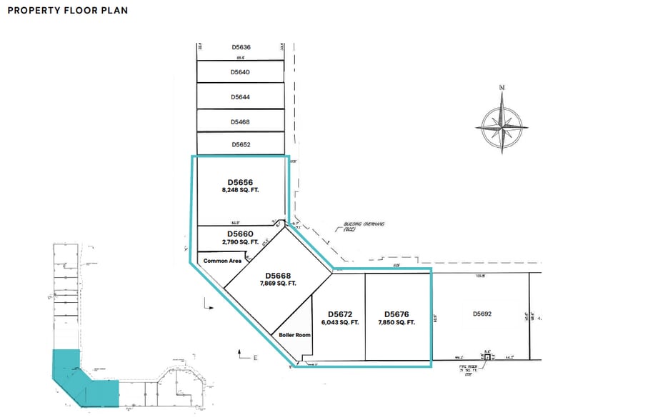
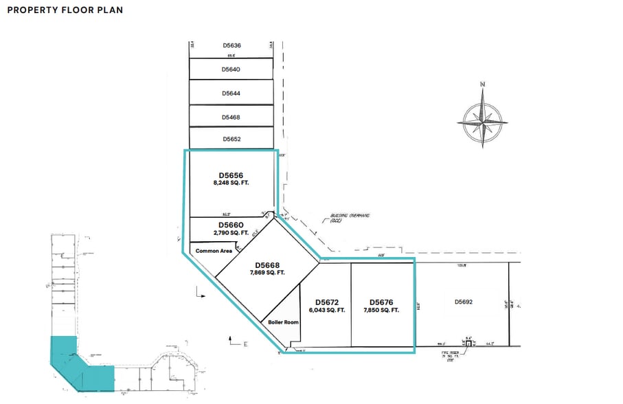
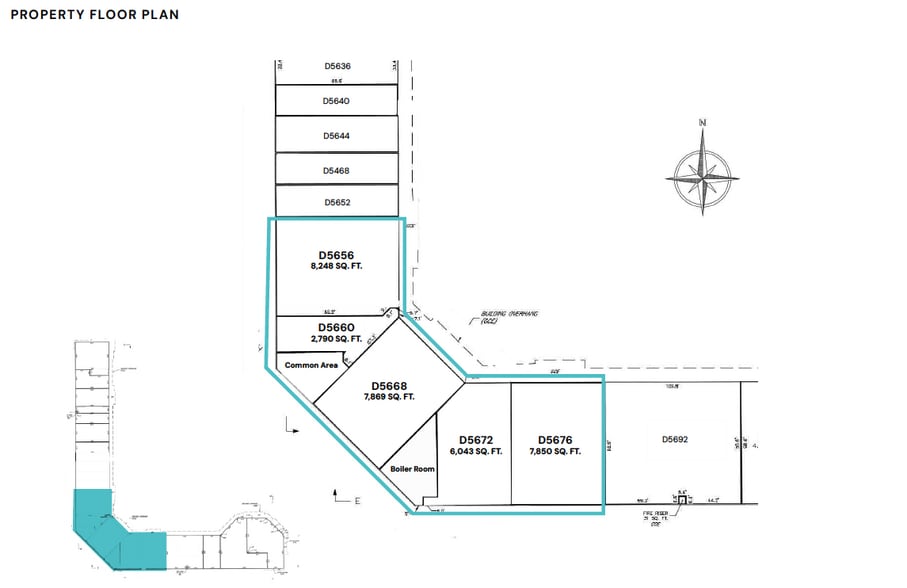
Unit D5656
| Unit Size | 8,248 SF | Sale Type | Investment |
| Condo Use | Retail | NOI | $250,467.18 CAD |
| Unit Size | 8,248 SF |
| Condo Use | Retail |
| Sale Type | Investment |
| NOI | $250,467.18 CAD |
Sale Notes
Schuman Companies is pleased to offer the opportunity to purchase the 970 Crossfit at The Loveland Yards.
Initial lease term goes through 1/31/2026.
Current NOI $183,210 per year. $15 NNN rental rate currently.
Units total 12,214 sf equals only $214/ sf.
Call Alex for further details- 970-219-1493.
Loveland1
Loveland2
Loveland8
Loveland9
Loveland10
Floor Plate
Unit D5660
| Unit Size | 2,790 SF | Sale Type | Investment |
| Condo Use | Retail |
| Unit Size | 2,790 SF |
| Condo Use | Retail |
| Sale Type | Investment |
Loveland1
Loveland2
Loveland9
Loveland8
Loveland10
Floor Plate
Unit D5668
| Unit Size | 7,869 SF | Sale Type | Investment |
| Condo Use | Retail |
| Unit Size | 7,869 SF |
| Condo Use | Retail |
| Sale Type | Investment |
Loveland1
Loveland2
Loveland8
Loveland9
Loveland10
Floor Plate
Unit D5672
| Unit Size | 6,043 SF | Sale Type | Investment |
| Condo Use | Retail |
| Unit Size | 6,043 SF |
| Condo Use | Retail |
| Sale Type | Investment |
Loveland1
Loveland2
Loveland8
Loveland9
Loveland10
Floor Plate
Unit D5676
| Unit Size | 7,850 SF | Sale Type | Investment |
| Condo Use | Retail |
| Unit Size | 7,850 SF |
| Condo Use | Retail |
| Sale Type | Investment |
Loveland1
Loveland2
Loveland8
Loveland9
Loveland10
Floor Plate
Property Facts
| Total Building Size | 136,934 SF | Typical Floor Size | 136,934 SF |
| Property Type | Retail | Year Built | 1995 |
| Building Class | B | Lot Size | 16.79 AC |
| Floors | 1 | Parking Ratio | 2.56/1,000 SF |
| Zoning | B | ||
| Total Building Size | 136,934 SF |
| Property Type | Retail |
| Building Class | B |
| Floors | 1 |
| Typical Floor Size | 136,934 SF |
| Year Built | 1995 |
| Lot Size | 16.79 AC |
| Parking Ratio | 2.56/1,000 SF |
| Zoning | B |
Amenities
- Dedicated Turn Lane
- Freeway Visibility
- Pylon Sign
- Signage
Nearby Major Retailers
Presented by
5600-5704 McWhinney Blvd - 5628-5636 McWhinney- Bldg D
Hmm, there seems to have been an error sending your message. Please try again.
Thanks! Your message was sent.






