Your email has been sent.
Highlights
- 2.75AC Lot
- Office + Warehouse
- HWY Frontage
- Edmond City Limits
Features
All Available Space(1)
Display Rental Rate as
- Space
- Size
- Term
- Rental Rate
- Space Use
- Build-Out
- Available
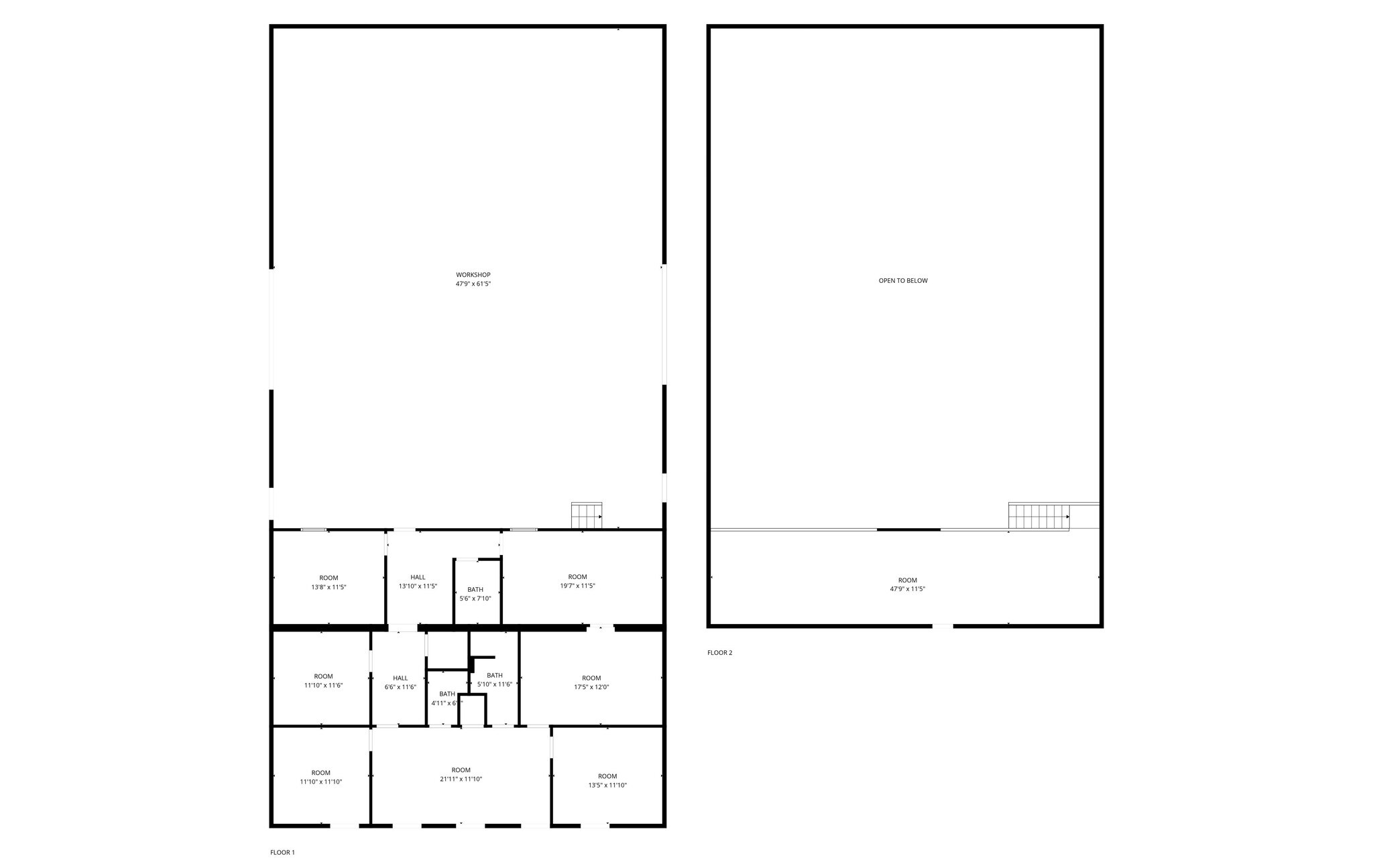
Now Available: Exceptional industrial opportunity in Edmond, Oklahoma, offering excellent visibility and accessibility along I-35. The property features a 5,000 SF office/warehouse and a 12,000 SF warehouse situated on 2.75 acres at the northeast corner of Industrial Blvd and Sorghum Mill Road. Conveniently located just south of the rapidly expanding I-35 & Waterloo corridor—home to Wendy’s, Taco Bell, Braum’s, Starbucks, and several new developments—this site is ideal for tenants seeking yard space, visibility, convenience, and value.
- Listed rate may not include certain utilities, building services and property expenses
- 8 Drive Ins
- Private Restrooms
- Yard
- HWY Frontage
- Edmond City Limits
- Includes 1,800 SF of dedicated office space
- Central Air and Heating
- Shower Facilities
- 2.75AC Lot
- Office + Warehouse
| Space | Size | Term | Rental Rate | Space Use | Build-Out | Available |
| 1st Floor | 17,000 SF | Negotiable | $14.35 CAD/SF/YR $1.20 CAD/SF/MO $244,027 CAD/YR $20,336 CAD/MO | Industrial | Partial Build-Out | Now |
1st Floor
| Size |
| 17,000 SF |
| Term |
| Negotiable |
| Rental Rate |
| $14.35 CAD/SF/YR $1.20 CAD/SF/MO $244,027 CAD/YR $20,336 CAD/MO |
| Space Use |
| Industrial |
| Build-Out |
| Partial Build-Out |
| Available |
| Now |
1st Floor
| Size | 17,000 SF |
| Term | Negotiable |
| Rental Rate | $14.35 CAD/SF/YR |
| Space Use | Industrial |
| Build-Out | Partial Build-Out |
| Available | Now |
Now Available: Exceptional industrial opportunity in Edmond, Oklahoma, offering excellent visibility and accessibility along I-35. The property features a 5,000 SF office/warehouse and a 12,000 SF warehouse situated on 2.75 acres at the northeast corner of Industrial Blvd and Sorghum Mill Road. Conveniently located just south of the rapidly expanding I-35 & Waterloo corridor—home to Wendy’s, Taco Bell, Braum’s, Starbucks, and several new developments—this site is ideal for tenants seeking yard space, visibility, convenience, and value.
- Listed rate may not include certain utilities, building services and property expenses
- Includes 1,800 SF of dedicated office space
- 8 Drive Ins
- Central Air and Heating
- Private Restrooms
- Shower Facilities
- Yard
- 2.75AC Lot
- HWY Frontage
- Office + Warehouse
- Edmond City Limits
Property Overview
Now Available: Exceptional industrial opportunity in Edmond, Oklahoma, offering excellent visibility and accessibility along I-35. The property features a 5,000 SF office/warehouse and a 12,000 SF warehouse situated on 2.75 acres at the northeast corner of Industrial Blvd and Sorghum Mill Road. Conveniently located just south of the rapidly expanding I-35 & Waterloo corridor—home to Wendy’s, Taco Bell, Braum’s, Starbucks, and several new developments—this site is ideal for tenants seeking yard space, visibility, convenience, and value.
Warehouse Facility Facts
Presented by
5600 N Industrial Blvd
Hmm, there seems to have been an error sending your message. Please try again.
Thanks! Your message was sent.






