Your email has been sent.
Northwest Central Office Bldg 5600 NW Central Dr 579 - 8,045 SF of Office Space Available in Houston, TX 77092



Highlights
- Quality, affordable office space with plenty of windows and a spacious lobby atrium.
- Conveniently located off of Hwy 290 with easy access to Beltway 8, restaurants, shopping, hotels and banks.
All Available Spaces(6)
Display Rental Rate as
- Space
- Size
- Term
- Rental Rate
- Space Use
- Build-Out
- Available
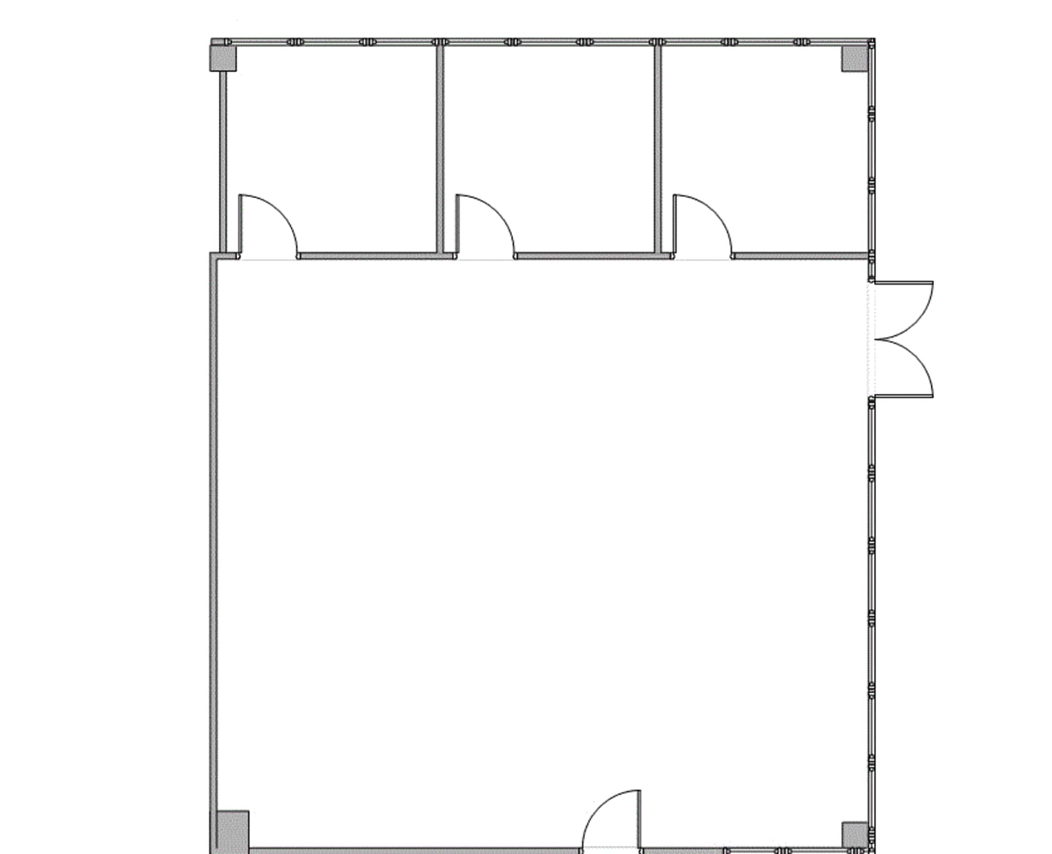
2 Entrances with 3 Window Offices and one large bullpen.
- Listed lease rate plus proportional share of electrical cost
- Open Floor Plan Layout
- 3 Private Offices
- Fully Built-Out as Standard Office
- Fits 6 - 12 People
Reception Area, 1 interior office and 1 large window office.
- Listed lease rate plus proportional share of electrical cost
- Fits 4 - 10 People
- Fully Built-Out as Standard Office
- 1 Private Office
- Listed lease rate plus proportional share of electrical cost
- Open Floor Plan Layout
- Partially Built-Out as Standard Office
- Fits 3 - 8 People
Reception, Window Office, Copy Area
- Listed lease rate plus proportional share of electrical cost
- Fits 2 - 5 People
- 1 Workstation
- Fully Built-Out as Standard Office
- 1 Private Office
- Space is in Excellent Condition
Reception Area with 1 Window Office Overlooking the Atrium and Copy Area.
- Listed lease rate plus proportional share of electrical cost
- Fits 2 - 4 People
- Fully Built-Out as Standard Office
- 1 Private Office
Reception, One Window Office, 1 Interior Office, Break Room with Sink, Storage room and Large window Bullpen.
- Listed lease rate plus proportional share of electrical cost
- Fits 8 - 24 People
- Fully Built-Out as Standard Office
- 1 Private Office
| Space | Size | Term | Rental Rate | Space Use | Build-Out | Available |
| 1st Floor, Ste 104 | 1,754 SF | Negotiable | $21.93 CAD/SF/YR $1.83 CAD/SF/MO $38,459 CAD/YR $3,205 CAD/MO | Office | Full Build-Out | Now |
| 1st Floor, Ste 155 | 1,210 SF | Negotiable | $21.93 CAD/SF/YR $1.83 CAD/SF/MO $26,531 CAD/YR $2,211 CAD/MO | Office | Full Build-Out | Now |
| 1st Floor, Ste 175 | 983 SF | Negotiable | $21.93 CAD/SF/YR $1.83 CAD/SF/MO $21,554 CAD/YR $1,796 CAD/MO | Office | Partial Build-Out | Now |
| 2nd Floor, Ste 240 | 579 SF | Negotiable | $21.93 CAD/SF/YR $1.83 CAD/SF/MO $12,695 CAD/YR $1,058 CAD/MO | Office | Full Build-Out | Now |
| 2nd Floor, Ste 241 | 617 SF | Negotiable | $21.93 CAD/SF/YR $1.83 CAD/SF/MO $13,529 CAD/YR $1,127 CAD/MO | Office | Full Build-Out | Now |
| 2nd Floor, Ste 260 | 2,902 SF | Negotiable | $21.93 CAD/SF/YR $1.83 CAD/SF/MO $63,631 CAD/YR $5,303 CAD/MO | Office | Full Build-Out | Now |
1st Floor, Ste 104
| Size |
| 1,754 SF |
| Term |
| Negotiable |
| Rental Rate |
| $21.93 CAD/SF/YR $1.83 CAD/SF/MO $38,459 CAD/YR $3,205 CAD/MO |
| Space Use |
| Office |
| Build-Out |
| Full Build-Out |
| Available |
| Now |
1st Floor, Ste 155
| Size |
| 1,210 SF |
| Term |
| Negotiable |
| Rental Rate |
| $21.93 CAD/SF/YR $1.83 CAD/SF/MO $26,531 CAD/YR $2,211 CAD/MO |
| Space Use |
| Office |
| Build-Out |
| Full Build-Out |
| Available |
| Now |
1st Floor, Ste 175
| Size |
| 983 SF |
| Term |
| Negotiable |
| Rental Rate |
| $21.93 CAD/SF/YR $1.83 CAD/SF/MO $21,554 CAD/YR $1,796 CAD/MO |
| Space Use |
| Office |
| Build-Out |
| Partial Build-Out |
| Available |
| Now |
2nd Floor, Ste 240
| Size |
| 579 SF |
| Term |
| Negotiable |
| Rental Rate |
| $21.93 CAD/SF/YR $1.83 CAD/SF/MO $12,695 CAD/YR $1,058 CAD/MO |
| Space Use |
| Office |
| Build-Out |
| Full Build-Out |
| Available |
| Now |
2nd Floor, Ste 241
| Size |
| 617 SF |
| Term |
| Negotiable |
| Rental Rate |
| $21.93 CAD/SF/YR $1.83 CAD/SF/MO $13,529 CAD/YR $1,127 CAD/MO |
| Space Use |
| Office |
| Build-Out |
| Full Build-Out |
| Available |
| Now |
2nd Floor, Ste 260
| Size |
| 2,902 SF |
| Term |
| Negotiable |
| Rental Rate |
| $21.93 CAD/SF/YR $1.83 CAD/SF/MO $63,631 CAD/YR $5,303 CAD/MO |
| Space Use |
| Office |
| Build-Out |
| Full Build-Out |
| Available |
| Now |
1st Floor, Ste 104
| Size | 1,754 SF |
| Term | Negotiable |
| Rental Rate | $21.93 CAD/SF/YR |
| Space Use | Office |
| Build-Out | Full Build-Out |
| Available | Now |
2 Entrances with 3 Window Offices and one large bullpen.
- Listed lease rate plus proportional share of electrical cost
- Fully Built-Out as Standard Office
- Open Floor Plan Layout
- Fits 6 - 12 People
- 3 Private Offices
1st Floor, Ste 155
| Size | 1,210 SF |
| Term | Negotiable |
| Rental Rate | $21.93 CAD/SF/YR |
| Space Use | Office |
| Build-Out | Full Build-Out |
| Available | Now |
Reception Area, 1 interior office and 1 large window office.
- Listed lease rate plus proportional share of electrical cost
- Fully Built-Out as Standard Office
- Fits 4 - 10 People
- 1 Private Office
1st Floor, Ste 175
| Size | 983 SF |
| Term | Negotiable |
| Rental Rate | $21.93 CAD/SF/YR |
| Space Use | Office |
| Build-Out | Partial Build-Out |
| Available | Now |
- Listed lease rate plus proportional share of electrical cost
- Partially Built-Out as Standard Office
- Open Floor Plan Layout
- Fits 3 - 8 People
2nd Floor, Ste 240
| Size | 579 SF |
| Term | Negotiable |
| Rental Rate | $21.93 CAD/SF/YR |
| Space Use | Office |
| Build-Out | Full Build-Out |
| Available | Now |
Reception, Window Office, Copy Area
- Listed lease rate plus proportional share of electrical cost
- Fully Built-Out as Standard Office
- Fits 2 - 5 People
- 1 Private Office
- 1 Workstation
- Space is in Excellent Condition
2nd Floor, Ste 241
| Size | 617 SF |
| Term | Negotiable |
| Rental Rate | $21.93 CAD/SF/YR |
| Space Use | Office |
| Build-Out | Full Build-Out |
| Available | Now |
Reception Area with 1 Window Office Overlooking the Atrium and Copy Area.
- Listed lease rate plus proportional share of electrical cost
- Fully Built-Out as Standard Office
- Fits 2 - 4 People
- 1 Private Office
2nd Floor, Ste 260
| Size | 2,902 SF |
| Term | Negotiable |
| Rental Rate | $21.93 CAD/SF/YR |
| Space Use | Office |
| Build-Out | Full Build-Out |
| Available | Now |
Reception, One Window Office, 1 Interior Office, Break Room with Sink, Storage room and Large window Bullpen.
- Listed lease rate plus proportional share of electrical cost
- Fully Built-Out as Standard Office
- Fits 8 - 24 People
- 1 Private Office
Property Overview
The office space for rent at 5600 Northwest Central Drive will allow you to give your business the professional location that it deserves. Consisting of 62,101 square feet of space, your clients and employees will enjoy the easy access that this location provides. Fully renovated in 2010, this building excels in appearance, convenience, and safety. Its proximity to a movie theater, shopping centers, and restaurants will allow to relax after work or entertain clients. The Cinemark Tinseltown is across the street, and numerous places to eat and shop are only a short distance down Highway 290.
- Atrium
- Controlled Access
- Property Manager on Site
- Security System
Property Facts
Presented by
Northwest Central Office Bldg | 5600 NW Central Dr
Hmm, there seems to have been an error sending your message. Please try again.
Thanks! Your message was sent.












