Your email has been sent.
Quad at Niles Niles, IL 60714 3,095 - 18,361 SF of Industrial Space Available



Park Highlights
- Institutionally owned and professionally managed
- Gas & electric utilities are separately metered
- Public transportation on Howard Street.
- ¼ mile west of Eden’s Expressway (I-94).
- ¼ mile west of Eden’s Expressway (I-94)
- Public transportation on Howard Street
- Gas & electric utilities are separately metered.
- Institutionally owned and professionally managed.
Park Facts
| Total Space Available | 18,361 SF | Cross Streets | N Central Ave |
| Park Type | Industrial Park |
| Total Space Available | 18,361 SF |
| Park Type | Industrial Park |
| Cross Streets | N Central Ave |
All Available Spaces(3)
Display Rental Rate as
- Space
- Size
- Term
- Rental Rate
- Space Use
- Build-Out
- Available
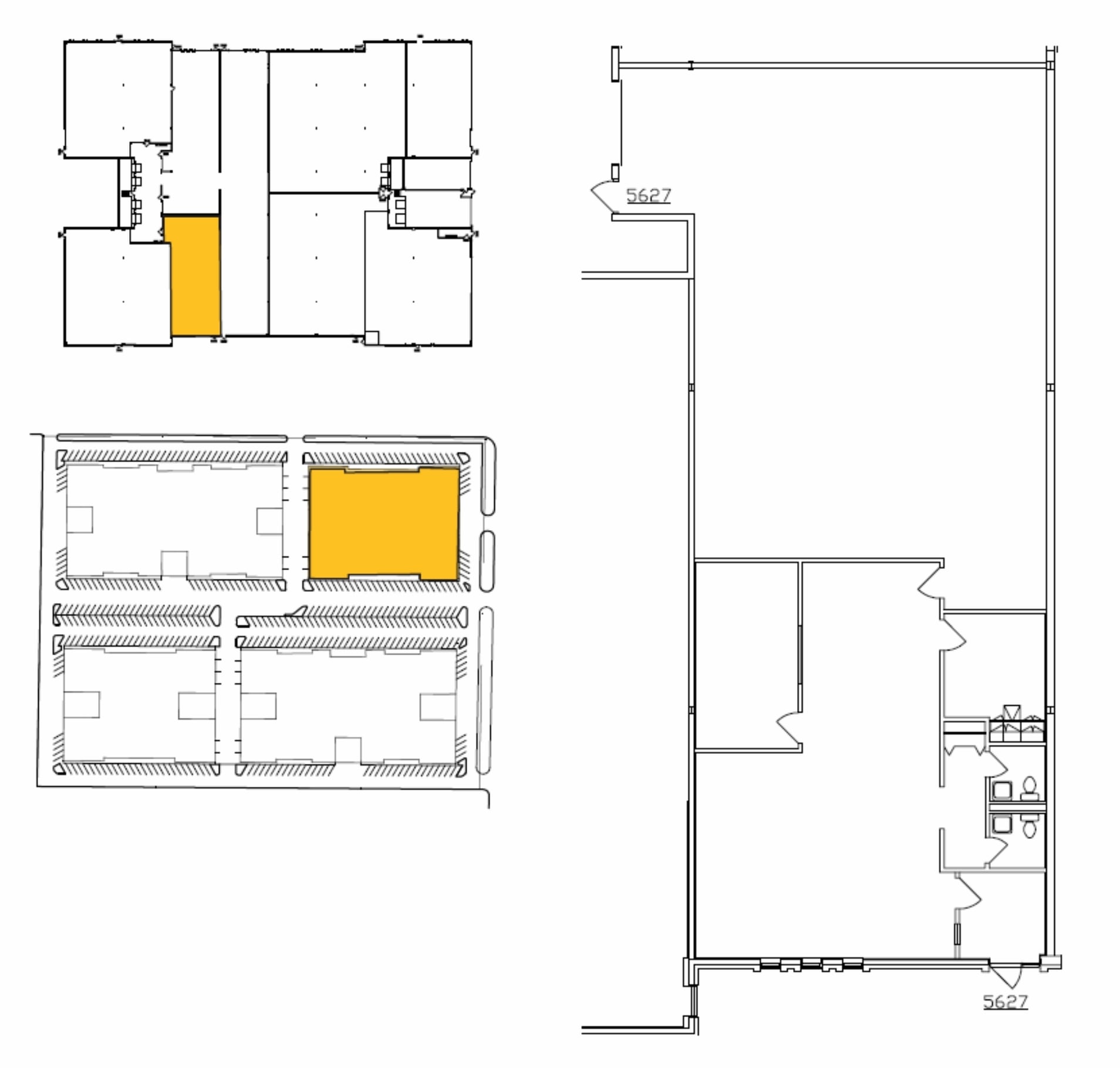
Location: Howard Plaza III Space Available: 6,416 SF Office: 1,137 SF (17%) Total Building Size: 92,986 SF Construction: Masonry/Steel Ceiling Height: 14’ Clear Loading: Four common exterior depressed docks with levelers
- Lease rate does not include certain property expenses
- 4 Loading Docks
- Gas-fired hanging unit heaters
- Includes 1,137 SF of dedicated office space
- Central Air Conditioning
- Gas-fired forced air heat; roof top AC
| Space | Size | Term | Rental Rate | Space Use | Build-Out | Available |
| 1st Floor - 5647 | 6,416 SF | Negotiable | $11.94 CAD/SF/YR $0.99 CAD/SF/MO $76,588 CAD/YR $6,382 CAD/MO | Industrial | Partial Build-Out | Now |
5633-5675 W Howard St - 1st Floor - 5647
- Space
- Size
- Term
- Rental Rate
- Space Use
- Build-Out
- Available
New paint and carpet.
- Lease rate does not include certain property expenses
- 1 Loading Dock
- Includes 1,770 SF of dedicated office space
- Private Restrooms
Four common depressed docks with levelers
- Lease rate does not include certain property expenses
- 4 Loading Docks
- Includes 836 SF of dedicated office space
| Space | Size | Term | Rental Rate | Space Use | Build-Out | Available |
| 1st Floor - 5687 | 8,850 SF | Negotiable | $11.94 CAD/SF/YR $0.99 CAD/SF/MO $105,643 CAD/YR $8,804 CAD/MO | Industrial | Full Build-Out | Now |
| 1st Floor - 5705 | 3,095 SF | Negotiable | $11.60 CAD/SF/YR $0.97 CAD/SF/MO $35,890 CAD/YR $2,991 CAD/MO | Industrial | Full Build-Out | Now |
5677-5707 W Howard St - 1st Floor - 5687
5677-5707 W Howard St - 1st Floor - 5705
5633-5675 W Howard St - 1st Floor - 5647
| Size | 6,416 SF |
| Term | Negotiable |
| Rental Rate | $11.94 CAD/SF/YR |
| Space Use | Industrial |
| Build-Out | Partial Build-Out |
| Available | Now |
Location: Howard Plaza III Space Available: 6,416 SF Office: 1,137 SF (17%) Total Building Size: 92,986 SF Construction: Masonry/Steel Ceiling Height: 14’ Clear Loading: Four common exterior depressed docks with levelers
- Lease rate does not include certain property expenses
- Includes 1,137 SF of dedicated office space
- 4 Loading Docks
- Central Air Conditioning
- Gas-fired hanging unit heaters
- Gas-fired forced air heat; roof top AC
5677-5707 W Howard St - 1st Floor - 5687
| Size | 8,850 SF |
| Term | Negotiable |
| Rental Rate | $11.94 CAD/SF/YR |
| Space Use | Industrial |
| Build-Out | Full Build-Out |
| Available | Now |
New paint and carpet.
- Lease rate does not include certain property expenses
- Includes 1,770 SF of dedicated office space
- 1 Loading Dock
- Private Restrooms
5677-5707 W Howard St - 1st Floor - 5705
| Size | 3,095 SF |
| Term | Negotiable |
| Rental Rate | $11.60 CAD/SF/YR |
| Space Use | Industrial |
| Build-Out | Full Build-Out |
| Available | Now |
Four common depressed docks with levelers
- Lease rate does not include certain property expenses
- Includes 836 SF of dedicated office space
- 4 Loading Docks
Select Tenants at This Property
- Floor
- Tenant Name
- Industry
- 1st
- Candy Controls
- Manufacturing
- 1st
- Dimensions Kosher
- Accommodation and Food Services
- 1st
- Insta Food Services
- Wholesaler
- 1st
- Lee Global Inc
- Wholesaler
- 1st
- Nature's Sources
- Retailer
- 1st
- Nordisco
- Retailer
- 1st
- Scientific Home Services
- Construction
- 1st
- Seaton Sound
- Retailer
- 1st
- United Magic Stitch, Inc
- Manufacturing
- 1st
- Urban Ink Pros
- Manufacturing
Presented by
Quad at Niles | Niles, IL 60714
Hmm, there seems to have been an error sending your message. Please try again.
Thanks! Your message was sent.





