Your email has been sent.
5613 Olde Wadsworth Blvd 1,500 SF of Office Space Available in Arvada, CO 80002



Highlights
- Full-Floor Upstairs Suite (~1,500 SF) Available
- Walk to Light Rail (2 Min) + Olde Town Core
- Ideal for Boutique Office or Professional Service
- Main Floor Fully Leased to Established Tenant
- 2–3 Private Offices + Open Workspace Layout
- On-Site + Abundant Nearby Public Parking
Space Availability (1)
Display Rental Rate as
- Space
- Size
- Ceiling
- Term
- Rental Rate
- Rent Type
| Space | Size | Ceiling | Term | Rental Rate | Rent Type | |
| 2nd Floor | 1,500 SF | 8’ - 12’ | 2-4 Years | $34.51 CAD/SF/YR $2.88 CAD/SF/MO $51,760 CAD/YR $4,313 CAD/MO | Triple Net (NNN) |
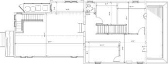
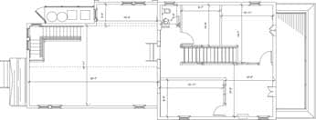
2nd Floor
Second-floor office space located in the heart of Olde Town Arvada, offering a functional and character-rich layout ideal for a variety of professional users. The suite includes three private offices (one of which can be utilized as a conference room), a flexible front room suitable for reception, lounge, or break area use, and an open-plan workspace featuring vaulted ceilings and abundant natural light. A private balcony provides additional outdoor space, creating a unique and inviting work environment. The space is fully built out and move-in ready, with hardwood floors and a layout that supports a range of configurations for small teams or growing businesses. Ideally positioned in a highly walkable district, the property is surrounded by Olde Town’s restaurants, coffee shops, and retail amenities. The RTD light rail station is a 2-minute walk away, and multiple public parking options are available within a 5-minute walk, in addition to two dedicated on-site parking spaces. Operating expenses are allocated on a pro-rata basis based on square footage and include property taxes, insurance, and common area maintenance. A unique alternative to traditional office space, this suite is well-suited for professional services, creative firms, boutique agencies, or small teams seeking a distinctive and well-located workspace
- Lease rate does not include utilities, property expenses or building services
- Fully Built-Out as Standard Office
- Fits 4 - 12 People
- 3 Private Offices
- 1 Conference Room
- Finished Ceilings: 8’ - 12’
- Space is in Excellent Condition
- Plug & Play
- Central Air and Heating
- Reception Area
- Balcony
- Private Restrooms
- High Ceilings
- Natural Light
- Hardwood Floors
- Smoke Detector
- Olde Town Arvada + 2-min to light rail
- Walkable + nearby public parking options
- 3 offices + flexible reception/break area
- Open workspace with vaulted ceilings
- Hardwood floors + abundant natural light
- Private balcony + 2 on-site parking spaces
Rent Types
The rent amount and type that the tenant (lessee) will be responsible to pay to the landlord (lessor) throughout the lease term is negotiated prior to both parties signing a lease agreement. The rent type will vary depending upon the services provided. For example, triple net rents are typically lower than full service rents due to additional expenses the tenant is required to pay in addition to the base rent. Contact the listing broker for a full understanding of any associated costs or additional expenses for each rent type.
1. Full Service: A rental rate that includes normal building standard services as provided by the landlord within a base year rental.
2. Double Net (NN): Tenant pays for only two of the building expenses; the landlord and tenant determine the specific expenses prior to signing the lease agreement.
3. Triple Net (NNN): A lease in which the tenant is responsible for all expenses associated with their proportional share of occupancy of the building.
4. Modified Gross: Modified Gross is a general type of lease rate where typically the tenant will be responsible for their proportional share of one or more of the expenses. The landlord will pay the remaining expenses. See the below list of common Modified Gross rental rate structures: 4. Plus All Utilities: A type of Modified Gross Lease where the tenant is responsible for their proportional share of utilities in addition to the rent. 4. Plus Cleaning: A type of Modified Gross Lease where the tenant is responsible for their proportional share of cleaning in addition to the rent. 4. Plus Electric: A type of Modified Gross Lease where the tenant is responsible for their proportional share of the electrical cost in addition to the rent. 4. Plus Electric & Cleaning: A type of Modified Gross Lease where the tenant is responsible for their proportional share of the electrical and cleaning cost in addition to the rent. 4. Plus Utilities and Char: A type of Modified Gross Lease where the tenant is responsible for their proportional share of the utilities and cleaning cost in addition to the rent. 4. Industrial Gross: A type of Modified Gross lease where the tenant pays one or more of the expenses in addition to the rent. The landlord and tenant determine these prior to signing the lease agreement.
5. Tenant Electric: The landlord pays for all services and the tenant is responsible for their usage of lights and electrical outlets in the space they occupy.
6. Negotiable or Upon Request: Used when the leasing contact does not provide the rent or service type.
7. TBD: To be determined; used for buildings for which no rent or service type is known, commonly utilized when the buildings are not yet built.
Select Tenants at 5613 Olde Wadsworth Blvd, Arvada, CO 80002
- Tenant
- Description
- US Locations
- Reach
- Christopher Koehler
- -
- 1
- -
- Global Refuge International
- Restaurant
- 1
- -
- Mrs K
- Restaurant
- 1
- -
- Nutrition Therapy Institute
- Educational Services
- 1
- -
- Thrive Realty
- -
- 1
- -
| Tenant | Description | US Locations | Reach |
| Christopher Koehler | - | 1 | - |
| Global Refuge International | Restaurant | 1 | - |
| Mrs K | Restaurant | 1 | - |
| Nutrition Therapy Institute | Educational Services | 1 | - |
| Thrive Realty | - | 1 | - |
Property Facts
| Total Space Available | 1,500 SF | Gross Leasable Area | 3,386 SF |
| Property Type | Retail | Year Built/Renovated | 1889/2009 |
| Property Subtype | Storefront Retail/Office | Parking Ratio | 1.77/1,000 SF |
| Total Space Available | 1,500 SF |
| Property Type | Retail |
| Property Subtype | Storefront Retail/Office |
| Gross Leasable Area | 3,386 SF |
| Year Built/Renovated | 1889/2009 |
| Parking Ratio | 1.77/1,000 SF |
About the Property
Located in the heart of Olde Town Arvada, this unique mixed-use property blends historic character with modern functionality, offering an ideal setting for boutique office, creative, or professional users. The property benefits from exceptional walkability, with immediate access to shops, restaurants, and the Olde Town light rail station just minutes away. The main level is fully leased to an established floral and event studio, creating a well-maintained and active environment while allowing the upper level to operate as a private, dedicated workspace. The second floor offers approximately 1,500 square feet and is ideally suited for a single tenant seeking a cohesive, full-floor office presence. The layout includes a mix of private offices and open workspace, supporting a variety of uses from professional services to creative firms or small team environments. For added flexibility, the space can also be configured for multiple tenants, with the ability to lease individual offices or define a smaller suite while maintaining functional shared areas. Tenants benefit from a combination of on-site parking and multiple nearby public parking options within a short walk, providing convenient access for both employees and clients. This is a rare opportunity to establish a presence in one of Arvada’s most desirable and high-traffic districts, within a space that balances character, flexibility, and accessibility.
Nearby Major Retailers
Presented by
Goudy Arvada Properties LLC
5613 Olde Wadsworth Blvd
Hmm, there seems to have been an error sending your message. Please try again.
Thanks! Your message was sent.


