Your email has been sent.
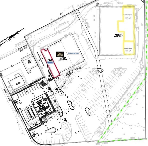
Washington Square 562 E Washington St 1,500 - 6,570 SF of Office/Medical Space Available in North Attleboro, MA 02760



Space Availability (1)
Display Rental Rate as
- Space
- Size
- Term
- Rental Rate
- Rent Type
| Space | Size | Term | Rental Rate | Rent Type | ||
| 1st Floor, Ste 562 | 1,500-6,570 SF | 1-5 Years | Upon Request Upon Request Upon Request Upon Request | Triple Net (NNN) |
562 E Washington St - 1st Floor - Ste 562
1,500-6,570 sq ft available. Zoned C-30.
- Lease rate does not include utilities, property expenses or building services
- Partially Built-Out as Standard Office
- Mostly Open Floor Plan Layout
- Fits 4 - 53 People
- Central Air and Heating
- Established business location
Rent Types
The rent amount and type that the tenant (lessee) will be responsible to pay to the landlord (lessor) throughout the lease term is negotiated prior to both parties signing a lease agreement. The rent type will vary depending upon the services provided. For example, triple net rents are typically lower than full service rents due to additional expenses the tenant is required to pay in addition to the base rent. Contact the listing broker for a full understanding of any associated costs or additional expenses for each rent type.
1. Full Service: A rental rate that includes normal building standard services as provided by the landlord within a base year rental.
2. Double Net (NN): Tenant pays for only two of the building expenses; the landlord and tenant determine the specific expenses prior to signing the lease agreement.
3. Triple Net (NNN): A lease in which the tenant is responsible for all expenses associated with their proportional share of occupancy of the building.
4. Modified Gross: Modified Gross is a general type of lease rate where typically the tenant will be responsible for their proportional share of one or more of the expenses. The landlord will pay the remaining expenses. See the below list of common Modified Gross rental rate structures: 4. Plus All Utilities: A type of Modified Gross Lease where the tenant is responsible for their proportional share of utilities in addition to the rent. 4. Plus Cleaning: A type of Modified Gross Lease where the tenant is responsible for their proportional share of cleaning in addition to the rent. 4. Plus Electric: A type of Modified Gross Lease where the tenant is responsible for their proportional share of the electrical cost in addition to the rent. 4. Plus Electric & Cleaning: A type of Modified Gross Lease where the tenant is responsible for their proportional share of the electrical and cleaning cost in addition to the rent. 4. Plus Utilities and Char: A type of Modified Gross Lease where the tenant is responsible for their proportional share of the utilities and cleaning cost in addition to the rent. 4. Industrial Gross: A type of Modified Gross lease where the tenant pays one or more of the expenses in addition to the rent. The landlord and tenant determine these prior to signing the lease agreement.
5. Tenant Electric: The landlord pays for all services and the tenant is responsible for their usage of lights and electrical outlets in the space they occupy.
6. Negotiable or Upon Request: Used when the leasing contact does not provide the rent or service type.
7. TBD: To be determined; used for buildings for which no rent or service type is known, commonly utilized when the buildings are not yet built.
Property Facts
| Total Space Available | 6,570 SF | Frontage | 243’ on Washington St |
| Min. Divisible | 1,500 SF | Gross Leasable Area | 32,988 SF |
| Center Type | Neighborhood Center | Total Land Area | 4.67 AC |
| Parking | 310 Spaces | Year Built | 1970 |
| Center Properties | 2 |
| Total Space Available | 6,570 SF |
| Min. Divisible | 1,500 SF |
| Center Type | Neighborhood Center |
| Parking | 310 Spaces |
| Center Properties | 2 |
| Frontage | 243’ on Washington St |
| Gross Leasable Area | 32,988 SF |
| Total Land Area | 4.67 AC |
| Year Built | 1970 |
About the Property
Looking for a long term tenant that fits well with current tenants. Current Tenants include: Rockland Federal Credit Union, Quan's Kitchen Restaurant, Sherwin Williams, Peak Pediatrics, North Attleboro Pharmacy, Route 1 Cinema Pub.
- Banking
- Signage
- Tenant Controlled HVAC
- Drive Thru
- Air Conditioning
Nearby Major Retailers
Presented by
TBFW LLC
Washington Square | 562 E Washington St
Hmm, there seems to have been an error sending your message. Please try again.
Thanks! Your message was sent.



