Your email has been sent.
Industrial Shop/Office w/Wash-Bay 5620 FM 1788 (Lot 4) 11,375 SF of Industrial Space Available in Midland, TX 79706



Highlights
- 11,375 SF on ± 6.18 Acres
- Up to 2,000 SF Unfinished Mezzanine Ideal for Apartment Space or Breakroom
- (7) 14’x16’ Overhead Doors
- 2,000 SF Office | 7,500 SF Shop
- 10-ton Crane
- 3-Phase Power, 20 GPM Water Capacity, Fiber Internet
Features
All Available Space(1)
Display Rental Rate as
- Space
- Size
- Term
- Rental Rate
- Space Use
- Build-Out
- Available
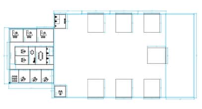
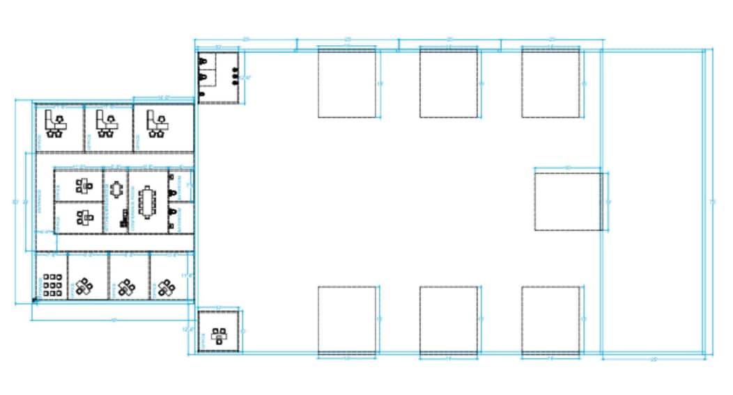
This property offers a 11,375 SF newly constructed industrial building situated on 6.182 acres. The office is 2,000 SF with 7 private offices, a large conference room, 2 bathrooms, a kitchen/breakroom, and a storage office. The second-floor space features up to 2,000 SF unfinished mezzanine plumbed for 2 bathrooms, showers, and a kitchen - ideal for an additional breakroom or apartment set up. The fully insulated warehouse offers a 10-ton crane, 3 drive-through bays with (6) 14’x16’ OH doors, an additional office, and a bathroom with a shower. At the rear of the building is a covered 1,875 SF wash-bay and an additional 14'x16' overhead door. The property has fiber internet access, is fully fenced and secured, and is serviced by 3-Phase/ 600-amp power and 20 GPM water capacity. Contact Dakota Flowers or Amy Brasher Barnett for additional details.
- Lease rate does not include utilities, property expenses or building services
- 7 Drive Ins
- Private Restrooms
- Includes 4,000 SF of dedicated office space
- Space is in Excellent Condition
| Space | Size | Term | Rental Rate | Space Use | Build-Out | Available |
| 1st Floor | 11,375 SF | Negotiable | $27.24 CAD/SF/YR $2.27 CAD/SF/MO $309,891 CAD/YR $25,824 CAD/MO | Industrial | Partial Build-Out | Now |
1st Floor
| Size |
| 11,375 SF |
| Term |
| Negotiable |
| Rental Rate |
| $27.24 CAD/SF/YR $2.27 CAD/SF/MO $309,891 CAD/YR $25,824 CAD/MO |
| Space Use |
| Industrial |
| Build-Out |
| Partial Build-Out |
| Available |
| Now |
1st Floor
| Size | 11,375 SF |
| Term | Negotiable |
| Rental Rate | $27.24 CAD/SF/YR |
| Space Use | Industrial |
| Build-Out | Partial Build-Out |
| Available | Now |
This property offers a 11,375 SF newly constructed industrial building situated on 6.182 acres. The office is 2,000 SF with 7 private offices, a large conference room, 2 bathrooms, a kitchen/breakroom, and a storage office. The second-floor space features up to 2,000 SF unfinished mezzanine plumbed for 2 bathrooms, showers, and a kitchen - ideal for an additional breakroom or apartment set up. The fully insulated warehouse offers a 10-ton crane, 3 drive-through bays with (6) 14’x16’ OH doors, an additional office, and a bathroom with a shower. At the rear of the building is a covered 1,875 SF wash-bay and an additional 14'x16' overhead door. The property has fiber internet access, is fully fenced and secured, and is serviced by 3-Phase/ 600-amp power and 20 GPM water capacity. Contact Dakota Flowers or Amy Brasher Barnett for additional details.
- Lease rate does not include utilities, property expenses or building services
- Includes 4,000 SF of dedicated office space
- 7 Drive Ins
- Space is in Excellent Condition
- Private Restrooms
Property Overview
This property offers a 11,375 SF newly constructed industrial building situated on 6.182 acres. The office is 2,000 SF with 7 private offices, a large conference room, 2 bathrooms, a kitchen/breakroom, and a storage office. The second-floor space features up to 2,000 SF unfinished mezzanine plumbed for 2 bathrooms, showers, and a kitchen - ideal for an additional breakroom or apartment set up. The fully insulated warehouse offers a 10-ton crane, 3 drive-through bays with (6) 14’x16’ OH doors, an additional office, and a bathroom with a shower. At the rear of the building is a covered 1,875 SF wash-bay and an additional 14'x16' overhead door. The property has fiber internet access, is fully fenced and secured, and is serviced by 3-Phase/ 600-amp power and 20 GPM water capacity. Contact Dakota Flowers or Amy Brasher Barnett for additional details.
Warehouse Facility Facts
Presented by
Industrial Shop/Office w/Wash-Bay | 5620 FM 1788 (Lot 4)
Hmm, there seems to have been an error sending your message. Please try again.
Thanks! Your message was sent.


